PO1 2LP - 3 bedroom cottage for sale in High Street, Old Portsmouth,…

View on Property Piper

3 bedroom cottage for sale in High Street, Old Portsmouth, PO1

Summary - High Street, Old Portsmouth PO1 2LP

3 bed 3 bath Cottage

**Standout Features:**
- Grade II listed cottage built in 1802
- Recently renovated with character and contemporary styling
- Three spacious double bedrooms, two with en-suite shower rooms
- Newly installed electrics, plumbing, and central heating
- New roof and double-glazed timber windows
- Private courtyard garden, perfect for outdoor relaxation
- Located in historic Old Portsmouth, offering a vibrant atmosphere
- Excellent broadband connectivity and mobile signal

**Concise Summary:**
Discover the charm of Felton Cottage, a beautifully renovated Grade II listed property in the heart of Old Portsmouth. Blending character features with contemporary style, this spacious three-bedroom home boasts two en-suite shower rooms and a stylish additional bathroom, all outfitted with new installations. Enjoy minimal maintenance for years to come with upgraded electrics, plumbing, a new roof, and double-glazed windows.

This cottage is ideal for both families and investors, featuring a cozy private courtyard garden for outdoor enjoyment. With a potential for custom kitchen installation at a revised purchase price, buyers can personalize the home to their taste. The location is excellent, near high-caliber schools and amenities, while being part of a resident's parking scheme. With a long lease remaining, this property will attract those looking for a blend of historical charm and modern convenience—don’t miss out on making Felton Cottage your next home!

Property Details

Image Descriptions

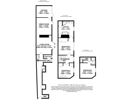
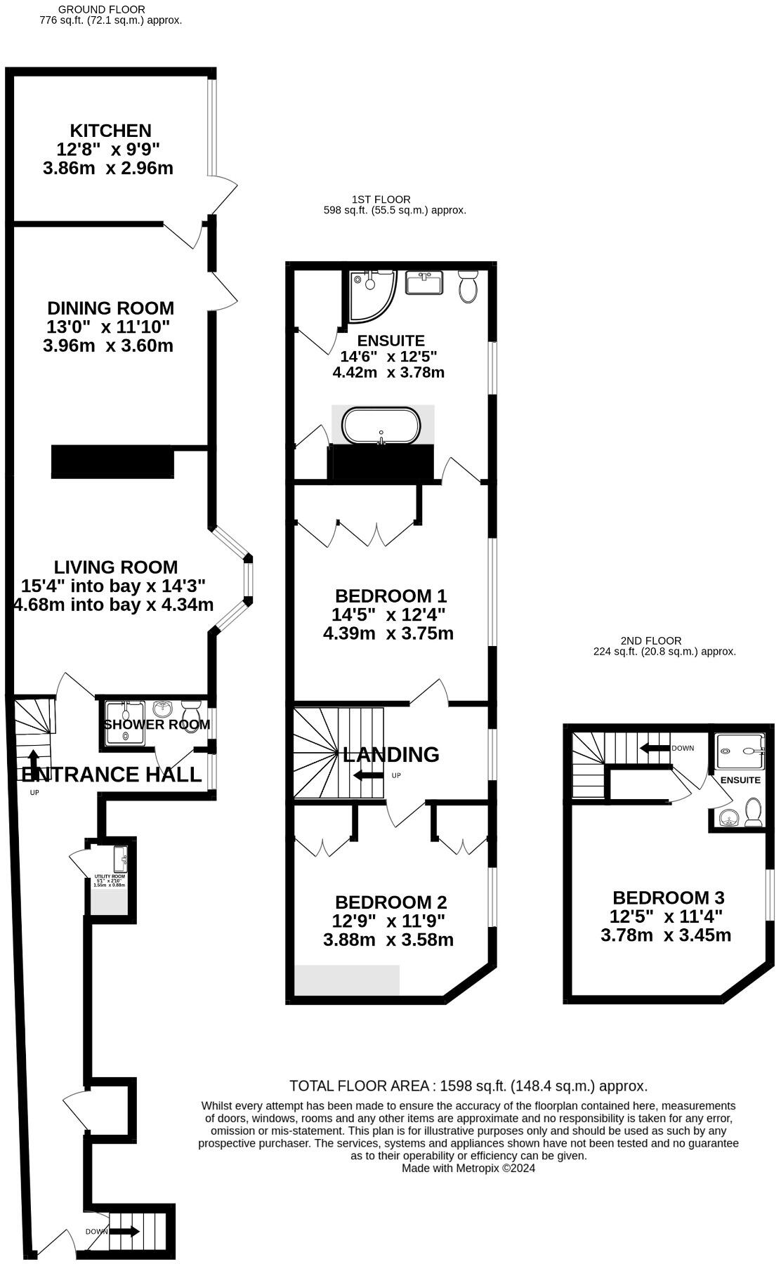
Floorplan Description

Rooms

Textual Property Features

Detected Visual Features

Nearby Schools

Nearest Bars And Restaurants

,,,,}

Nearest General Shops

,,}

Nearest Grocery shops

,,}

Nearest Supermarkets

,,}

Nearest Religious buildings

,,}

Nearest Medical buildings

,,,}

Nearest Airports

}

Nearest Leisure Facilities

,,,,}

Nearest Tourist attractions

,,}

Nearest Train stations

,,,,}

Nearest Bus stations and stops

,,,,}

Nearest Hotels

,,}

Tags

Local Market Stats

AirBnB Data

Similar Properties

Meta

High Res Images

Compatible Images

Low res Images

Thumbnails

Raw Images

High Res Floorplan Images

Compatible Floorplan Images

Low res Floorplan Images

FloorplanImages Thumbnail

Raw Floorplan Images