Spacious open-plan family home in a quiet cul-de-sac, close to Belper town centre.
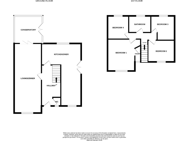
Four bedrooms including principal with ensuite
Open-plan kitchen/diner plus conservatory for family living
Large driveway with parking for several cars
Manageable rear garden with patio and lawn
Quiet cul-de-sac, walking distance to town and station
Modest overall size (approx. 786 sq ft) — rooms can be compact
EPC Band D; moderate council tax and typical 1990s construction
Very low local crime; fast broadband and excellent mobile signal
This four-bedroom detached home in a quiet Belper cul-de-sac offers a practical family layout and easy access to the town centre. The open-plan kitchen/diner and adjoining conservatory create generous day-to-day living space, while the lounge/diner and separate conservatory provide flexibility for family life and entertaining.
Practical features include an ensuite to the principal bedroom, downstairs WC, fitted storage, and a large driveway with off-street parking for several cars. The rear garden is a manageable, lawned plot with a patio and established borders—suitable for children or low-maintenance outdoor time.
Location is a strong selling point: within walking distance of shops, leisure facilities, bus routes and the railway station, and close to the A38 for road links. Local schools are nearby (Ofsted ratings vary from Outstanding to Requires Improvement), and the neighbourhood is very low crime and affluent.
Points to note: the property is of modest overall size (approximately 786 sq ft), EPC band D, and council tax is moderate. Constructed in the early 1990s with double glazing updated post-2002, buyers should expect standard upkeep rather than a major renovation.
4 bedroom detached house for sale in Heydon Close, Belper, DE56 — £399,950 • 4 bed • 2 bath • 1254 ft²
4 bedroom property for sale in Morrell Wood Drive, Belper, DE56 — £377,250 • 4 bed • 3 bath • 1292 ft²
4 bedroom detached house for sale in Martindale Court, Belper, Derbyshire, DE56 — £400,000 • 4 bed • 2 bath • 1288 ft²
4 bedroom detached house for sale in Ashford Rise, Belper, Derbyshire, DE56 — £350,000 • 4 bed • 2 bath • 1004 ft²
4 bedroom semi-detached house for sale in Wheeldon Avenue, Belper, DE56 — £290,000 • 4 bed • 2 bath • 964 ft²
4 bedroom detached house for sale in Ashford Rise, Belper, DE56 — £365,000 • 4 bed • 3 bath • 1055 ft²






































































































































































