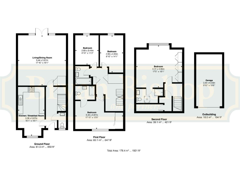
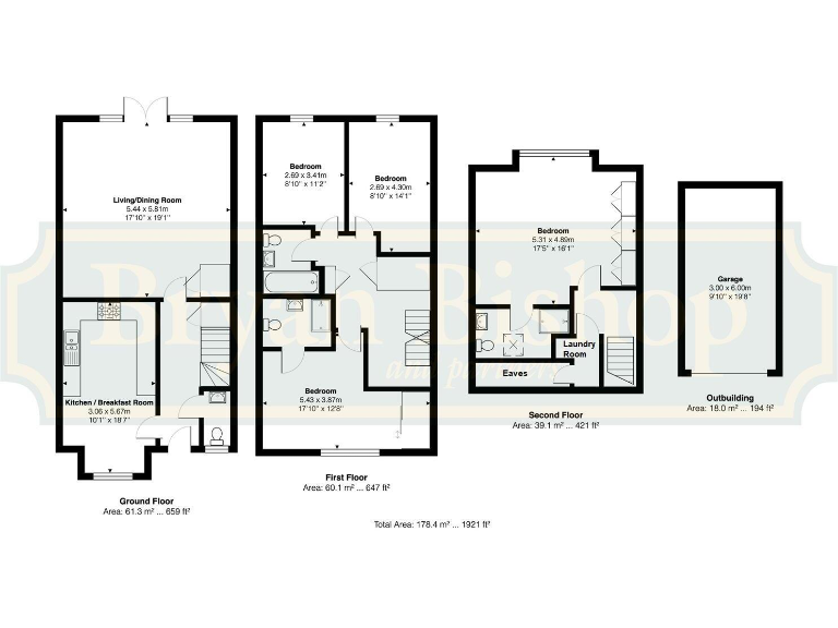
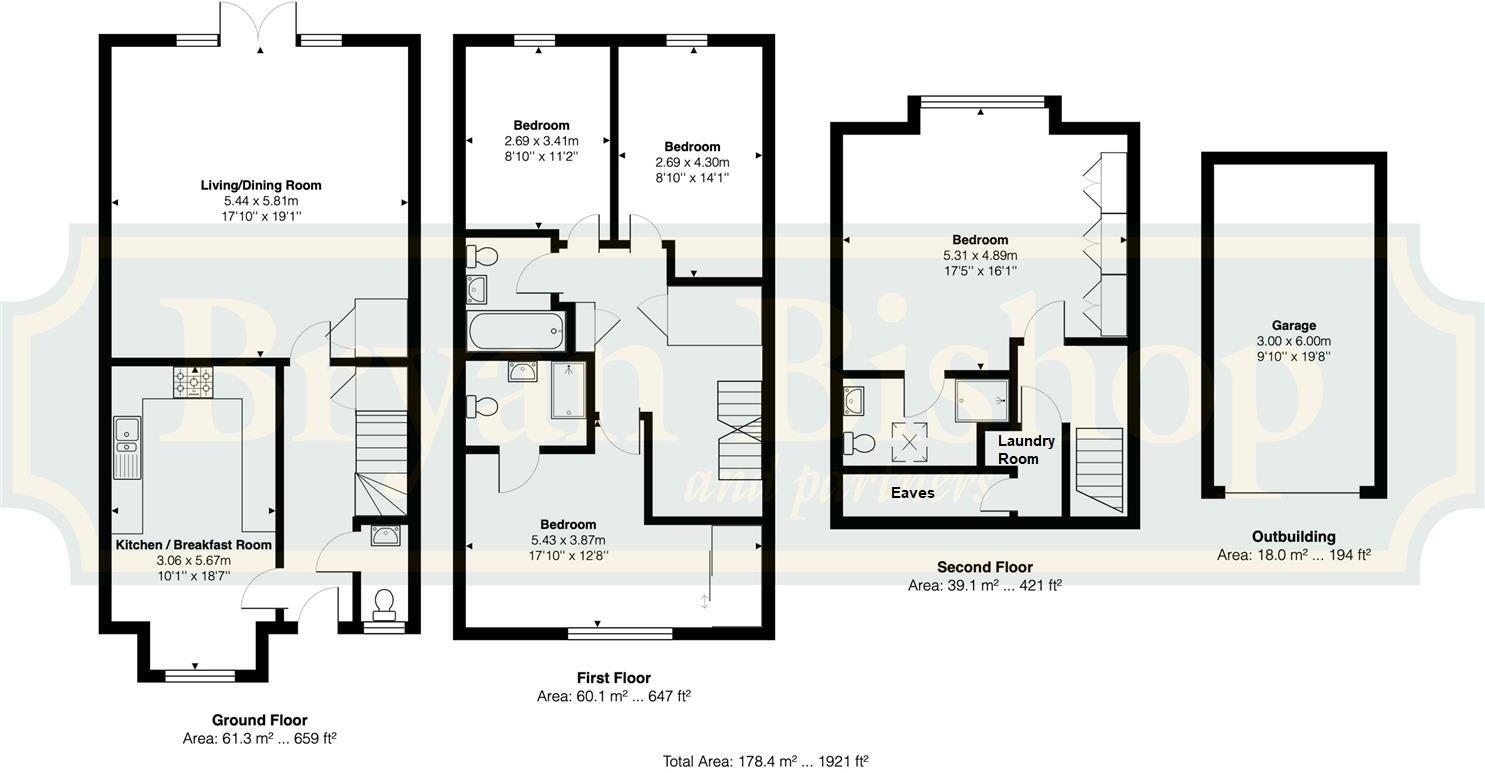
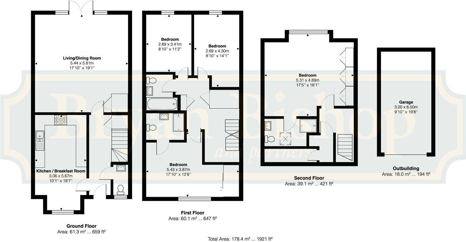
**Standout Features:**
- Four spacious bedrooms and three well-appointed bathrooms
- Air-conditioned top floor bedroom suite with en-suite shower room
- Generous living/dining area with floor-to-ceiling glass doors
- Modern kitchen with integrated appliances and open-plan layout
- Low-maintenance rear garden with artificial grass
- Garage and private parking space
- Chain-free sale
**Summary:**
Welcome to this exquisite four-bedroom, three-bathroom terraced family home, nestled in the desirable Wilshere Park development. This impressive property spans over three floors, offering a spacious and flexible layout designed for modern family living. The bright open-plan living/dining area seamlessly connects to a low-maintenance garden, perfect for entertaining or family life. The contemporary kitchen features abundant cabinetry and integrated appliances, making it an ideal space for culinary enthusiasts.
Upstairs, you'll find three generous double bedrooms, including a master suite on the top floor with air conditioning, fitted wardrobes, and a chic en-suite shower room—your perfect private retreat. The property is presented in immaculate condition and is ready for you to move in. While the area boasts a vibrant community atmosphere, it does have slightly above-average crime rates, which potential buyers should consider.
Located just minutes from the charming amenities of Welwyn Village, this home is ideal for families looking for comfort and convenience. Take advantage of this opportunity to own a beautifully designed property in a sought-after neighborhood—opportunities like this don’t come around often!
5 bedroom semi-detached house for sale in Butterwick Way, Welwyn, AL6 — £900,000 • 5 bed • 3 bath • 2400 ft²
5 bedroom detached house for sale in Frythe Avenue, Welwyn, AL6 — £950,000 • 5 bed • 3 bath • 2407 ft²
3 bedroom semi-detached house for sale in Butterwick Way, Welwyn, AL6 — £750,000 • 3 bed • 2 bath • 1638 ft²
3 bedroom semi-detached house for sale in Butterwick Way, Welwyn, AL6 — £750,000 • 3 bed • 2 bath • 1337 ft²
3 bedroom semi-detached house for sale in Akers Court, Welwyn, AL6 — £765,000 • 3 bed • 1 bath • 1770 ft²
3 bedroom semi-detached house for sale in Welwyn Hall Gardens, Welwyn, AL6 — £625,000 • 3 bed • 2 bath • 1311 ft²


























































































































