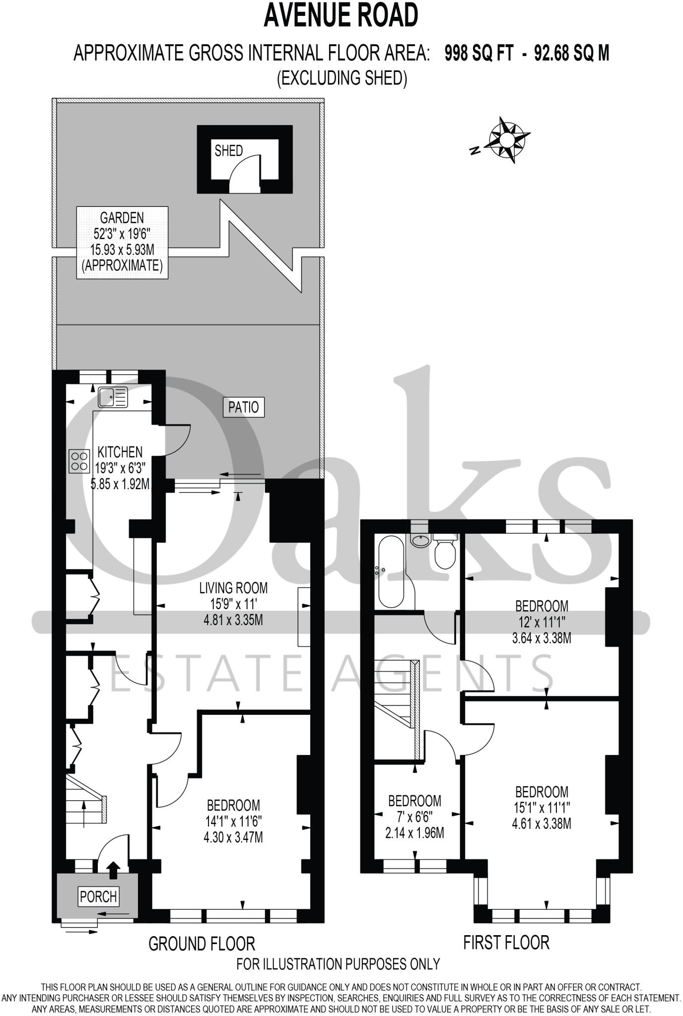
**Standout Features:**
- Four well-proportioned bedrooms
- Modern kitchen with integrated appliances
- Spacious living room with sliding glass doors
- Large, sunny garden
- Potential for extension (access to water and electric in loft)
- Chain-free
- Convenient transport links to central London
**Concerns:**
- Small overall size (998 sq. ft)
- Above average crime rate in the area
Discover this charming four-bedroom terraced home nestled on a quiet road in Streatham Vale. Ideal for first-time buyers or families looking to personalize, this freehold property boasts a modern kitchen, a cozy living area with a fireplace, and generous outdoor space—all well-maintained with a recently plastered interior. Enjoy the convenience of being within walking distance to Streatham Common Station, offering quick access to central London, alongside a variety of local shops, bars, and schools with strong Ofsted ratings.
With a small overall footprint but immense potential for expansion—thanks to existing utilities in the loft—you can let your imagination run wild transforming this space into your dream home. While the area does have an above-average crime rate, it benefits from a vibrant community atmosphere, ensuring you’ll feel right at home. Don’t miss this opportunity—properties like this, with such versatility and charm, are rarely available long!
4 bedroom terraced house for sale in St. Olaves Walk, London, SW16 — £540,000 • 4 bed • 2 bath • 1156 ft²
4 bedroom house for sale in Nettlewood Road, Streatham, SW16 — £750,000 • 4 bed • 3 bath • 1497 ft²
3 bedroom terraced house for sale in Churchmore Road, Streatham Vale, SW16 — £500,000 • 3 bed • 1 bath • 1044 ft²
4 bedroom terraced house for sale in Runnymede Crescent, Streatham Vale, SW16 — £600,000 • 4 bed • 2 bath • 1189 ft²
4 bedroom house for sale in Windermere Road, Streatham Vale, SW16 — £600,000 • 4 bed • 2 bath • 1391 ft²
3 bedroom terraced house for sale in Runnymede Crescent, Streatham Vale, SW16 — £500,000 • 3 bed • 1 bath • 915 ft²






































