Well-presented three-bed family home with gardens, off-street parking and easy rail links..
Three bedrooms with open-plan living and dining area
Glimpsed sea views from a popular residential street
Landscaped front, side and rear gardens with summerhouse and shed
Off-street parking and newly fitted roof included
Short walk to supermarket, schools, cafés and railway station
Cavity walls assumed uninsulated — retrofit likely needed
Double glazing installed before 2002; EPC D (60)
Area classified as deprived; crime rated above average
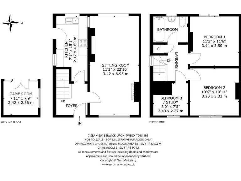
This well-presented three-bedroom semi-detached home sits in a residential area of Berwick-upon-Tweed with glimpsed sea views and convenient local amenities. The ground floor offers an open-plan sitting and dining area, kitchen and practical layout suitable for family life. A newly fitted roof and included blinds, flooring and light fittings reduce immediate maintenance needs.
Outside, landscaped front, side and rear gardens, a timber summerhouse and shed provide useful outdoor space and storage, plus off-street parking. The house is a short walk to a large supermarket, primary schools, cafés and the mainline railway station — useful for commuting to Newcastle or Edinburgh.
There are some important practical considerations: the property has cavity walls assumed to have no insulation, double glazing fitted before 2002, an EPC rating of D(60) and a back boiler with gas central heating serving the ground floor only. The local area scores as deprived with above-average crime rates, which may concern some buyers.
Overall this freehold home will suit families or first-time buyers seeking good local links and outdoor space, and those willing to invest modestly in energy-efficiency improvements to reduce running costs.
3 bedroom semi-detached house for sale in Spittal Hall Road, Spittal, Berwick-Upon-Tweed, TD15 — £185,000 • 3 bed • 2 bath • 840 ft²
4 bedroom semi-detached house for sale in Sea View, Berwick-Upon-Tweed, TD15 — £160,000 • 4 bed • 1 bath • 807 ft²
3 bedroom semi-detached house for sale in Stanley Close, Berwick-Upon-Tweed, TD15 — £183,000 • 3 bed • 1 bath • 796 ft²
3 bedroom semi-detached house for sale in Glamis Hill, Berwick Upon Tweed, TD15 — £285,000 • 3 bed • 1 bath • 1538 ft²
3 bedroom semi-detached house for sale in Osborne Crescent, Tweedmouth, Berwick-Upon-Tweed, TD15 — £200,000 • 3 bed • 1 bath • 912 ft²
3 bedroom semi-detached house for sale in West End, Tweedmouth, TD15 — £200,000 • 3 bed • 1 bath • 811 ft²


















































































