Large garden, garage and excellent transport links for family convenience.
Four double bedrooms suitable for family living
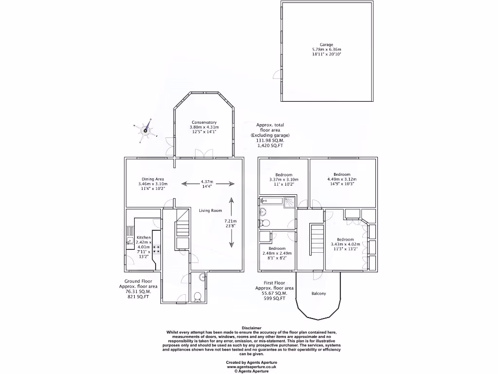
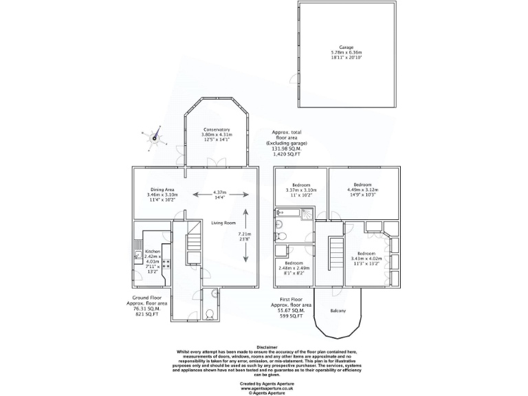
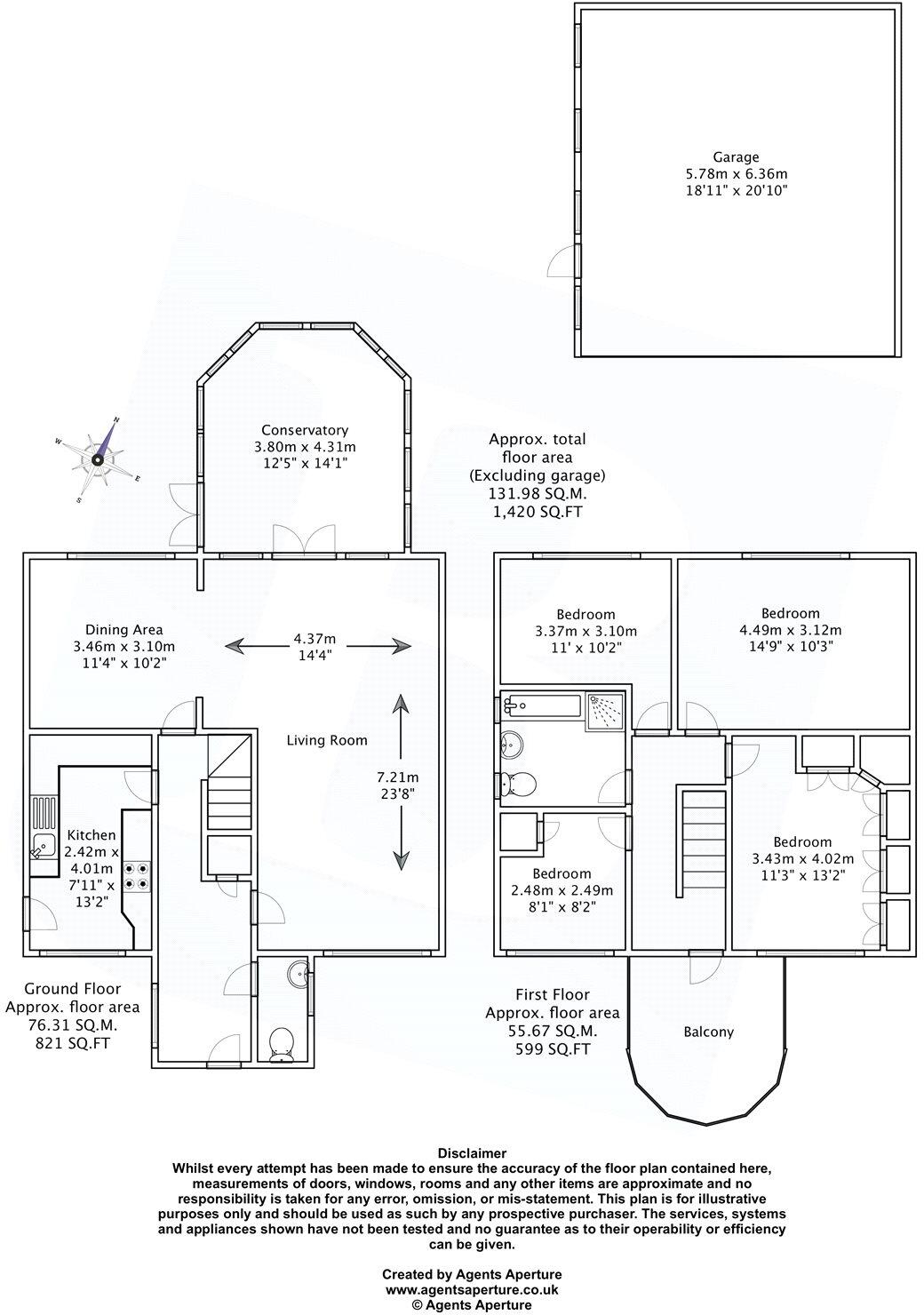
A spacious four-bedroom detached family home in a quiet Emerson Park cul-de-sac, presented with strong kerb appeal and practical off-street parking. The house offers generous ground-floor living with a large living room opening to a 14' conservatory, a fitted kitchen and a ground-floor cloakroom, creating flexible family spaces. A balcony and conservatory add extra outlook and light.
The first floor provides accommodation for growing families, with four bedrooms and a four-piece family bathroom shown on the floorplan; the advertised bathroom count is unclear so buyers should verify the exact arrangement. The property sits on a large plot with a 60' rear garden and a detached double garage — useful for storage, hobbies or conversion (subject to consents).
Location is a genuine selling point: 0.8 miles from Emerson Park station with good rail links, and within easy reach of Nelmes Primary School (Ofsted Outstanding). Practical benefits include freehold tenure, fast broadband, excellent mobile signal and very low local crime. Council tax is noted as quite expensive.
Built in the late 1960s–1970s, the home retains period character (neo‑Georgian facade, parquet flooring, fireplace) but some elements may benefit from updating. Double glazing is present though installation date is unknown; buyers should budget for routine maintenance and any modernisation they want to undertake.
4 bedroom detached house for sale in Elmdene Avenue, Emerson Park, RM11 — £1,100,000 • 4 bed • 2 bath • 1985 ft²
4 bedroom detached house for sale in Barleycorn Way, Emerson Park, Hornchurch, RM11 — £875,000 • 4 bed • 2 bath • 1611 ft²
4 bedroom detached house for sale in Great Nelmes Chase, Emerson Park, Hornchurch, RM11 — £900,000 • 4 bed • 2 bath • 1900 ft²
4 bedroom detached house for sale in Brookside, Emerson Park, Hornchurch, RM11 — £1,200,000 • 4 bed • 2 bath • 2131 ft²
4 bedroom detached house for sale in Ayloffs Walk, Hornchurch, RM11 — £1,370,000 • 4 bed • 3 bath • 1964 ft²
5 bedroom detached house for sale in Tyle Green, Emerson Park, Hornchurch, RM11 — £1,300,000 • 5 bed • 3 bath • 2140 ft²


































































