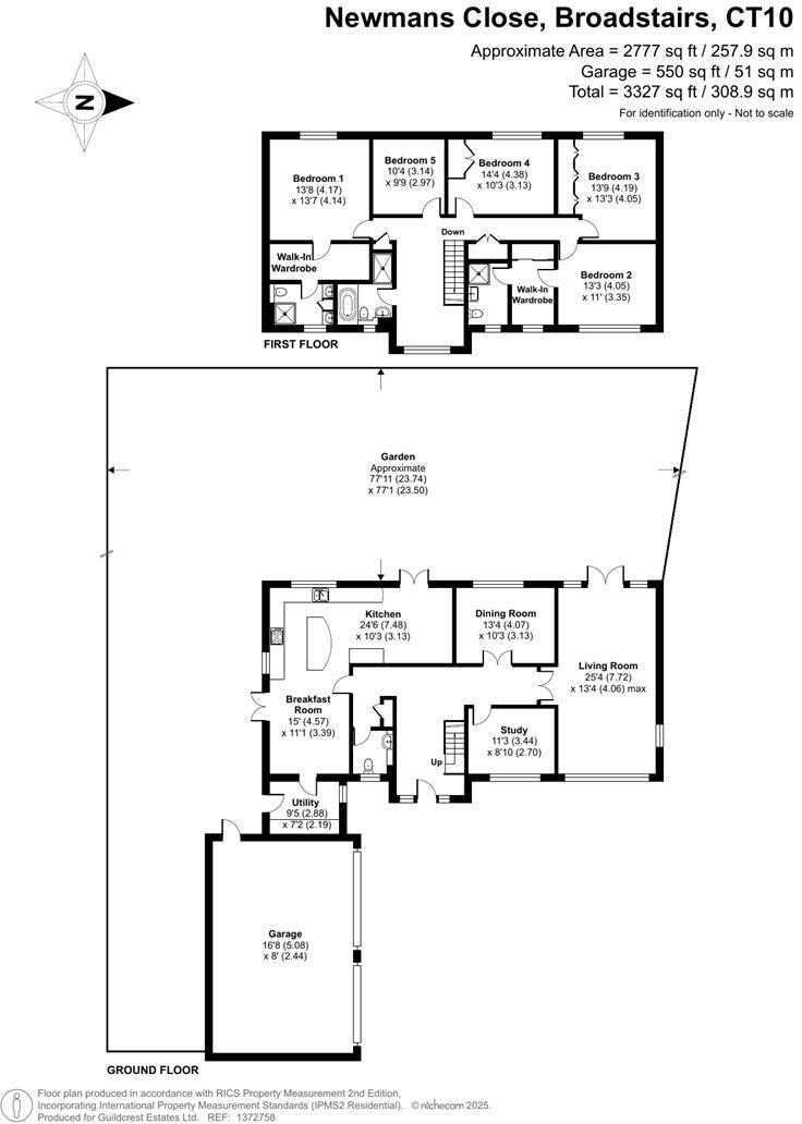
Large five-bedroom residence close to the seafront and top schools.
- Five generous double bedrooms, two with en-suites and walk-in wardrobes
- Bright kitchen/breakfast room and separate dining room
- Ground-floor study and convenient downstairs cloakroom
- Large lounge, versatile reception rooms across two storeys
- Triple garage plus wide driveway with extensive parking
- Generous wrap-around garden with established planting
- EPC C and Council Tax band G (relatively high costs)
- Constructed early 1990s; scope for modernisation or reconfiguration
Set in a peaceful close near Stone Bay, this substantial detached house offers generous accommodation across two floors, ideal for growing families. The home provides five double bedrooms, two en-suites and a family bathroom, with versatile reception space including a large lounge, separate dining room and a ground-floor study for home working.
The bright kitchen/breakfast room sits at the heart of the house and opens to a private wrap-around garden, while an extensive paved driveway and triple garage deliver exceptional off-street parking. Constructed in the early 1990s with decorative timber framing and leaded casement windows, the property presents well and offers scope for internal modernisation or reconfiguration to suit contemporary tastes.
Practical details to note: the property is freehold, EPC rated C and in Council Tax band G (relatively high running costs). Windows are double glazed though installation dates are unknown. Overall the house blends substantial space, a large plot and coastal-location appeal, making it suitable for long-term family occupation or for buyers seeking potential to add value through sympathetic updating.
5 bedroom detached house for sale in Kingsgate Avenue, Broadstairs, Kent, CT10 — £825,000 • 5 bed • 1 bath • 2551 ft²
4 bedroom detached house for sale in Lanthorne Road, Broadstairs, CT10 — £1,850,000 • 4 bed • 4 bath • 4789 ft²
4 bedroom detached house for sale in Fair Street, Broadstairs, Kent, CT10 — £500,000 • 4 bed • 3 bath • 1538 ft²
4 bedroom detached house for sale in Tina Gardens, Broadstairs, CT10 — £695,000 • 4 bed • 2 bath • 2185 ft²
5 bedroom detached house for sale in Kingsgate Avenue, Broadstairs, Kent, CT10 — £850,000 • 5 bed • 2 bath • 2472 ft²
4 bedroom detached house for sale in Stanley Road, BROADSTAIRS, Kent, CT10 — £599,950 • 4 bed • 2 bath • 2754 ft²


























































































