Ready-to-move two-bedroom home ideal for commuters and first-time buyers.
Chain-free freehold two-bedroom semi-detached house
Newly renovated throughout; built 2022 with modern fittings
Private low-maintenance courtyard garden; limited external space
Garage and off-street parking included
Short walk to Godalming station; strong commuter links to London
Town-centre location close to shops, cafés and local amenities
Local crime reported higher than average — check local data
Council tax banding currently unconfirmed
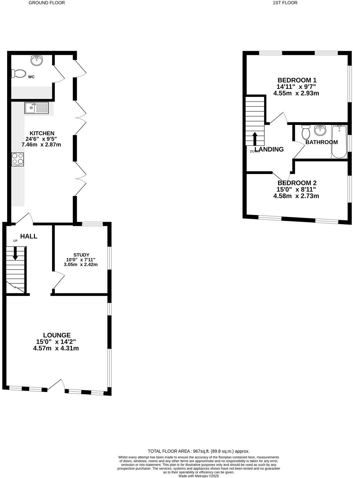
Finished to a contemporary standard, this two-bedroom semi-detached house sits tucked off Godalming High Street and is offered chain free on a freehold title. The ground floor provides a bright living room, a flexible study/home office and a modern kitchen with integrated appliances and a utility cloakroom — good for everyday living and entertaining. French doors open onto a private, low-maintenance courtyard ideal for coffee or evening drinks.
Upstairs has two double bedrooms and a sleek family bathroom, creating a calm retreat. Built in 2022 and newly renovated throughout, the property benefits from mains gas heating with radiators and an efficient layout across approximately 967 sq ft. Off-street parking and a garage add practical value in this town-centre location.
Location is a strong selling point for commuters and first-time buyers: Godalming station is a short walk away with fast services to London Waterloo, and the High Street’s shops, cafés and amenities are immediately accessible. Nearby schools include good-rated primaries and several independent options, making the area broadly well served.
Buyers should note the property sits on a small plot with constrained external space and limited side access, so outdoor scope is modest. Local crime levels are reported higher than average for the area; purchasers may wish to review local safety information. Council tax banding is to be confirmed. Overall, this move-in-ready home suits those seeking a compact, modern town property with excellent transport links.
2 bedroom semi-detached house for sale in High Street, Angel Court, Godalming, Surrey, GU7 — £525,000 • 2 bed • 1 bath • 966 ft²
1 bedroom terraced house for sale in Town End Close, Godalming, Surrey, GU7 — £275,000 • 1 bed • 1 bath • 444 ft²
2 bedroom end of terrace house for sale in The Horseshoe, Godalming, Surrey, GU7 — £500,000 • 2 bed • 1 bath • 1174 ft²
2 bedroom terraced house for sale in Fern Road, Godalming, Surrey, GU7 — £370,000 • 2 bed • 1 bath • 670 ft²
2 bedroom semi-detached house for sale in Saxon Close, Catteshall Lane, Godalming, Surrey, GU7 — £495,000 • 2 bed • 1 bath • 860 ft²
2 bedroom semi-detached house for sale in Catteshall Lane, Godalming, GU7 — £487,500 • 2 bed • 2 bath • 812 ft²






















































