Character home with low-maintenance south-facing garden and excellent storage.
Chain-free freehold Victorian mid-terrace with bay window
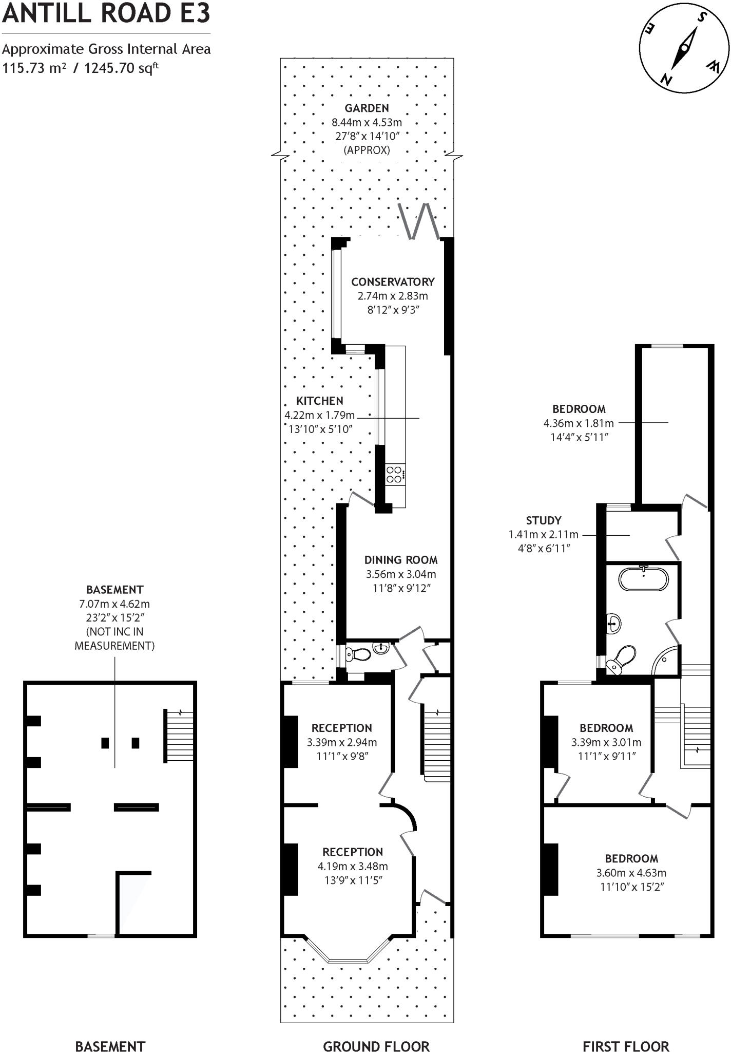
Set on a popular, tree-lined street in the heart of Bow, this bay-fronted Victorian mid-terrace blends period character with useful modern additions. The double-through lounge, high ceilings and large windows give the ground floor a bright, airy feel while a contemporary kitchen and a light-filled conservatory open directly onto a south-facing artificial lawn — low-maintenance outdoor space for children and pets.
Practical storage is a strong feature: a large cellar and generous fitted cupboards make everyday life easier. Upstairs are three well-proportioned bedrooms, a study area suitable for home working, and a single stylish family bathroom. Nearby green spaces, Roman Road Market and good transport links make the location especially convenient for families.
Buyers should note material facts: the property is solid brick with assumed no cavity insulation and double glazing installed before 2002, so there may be opportunities or costs to improve thermal performance. Council tax is above average and local crime levels are above average for the area. The house is freehold and chain-free, which supports a quicker move for buyers ready to proceed.
Overall this home will suit buyers seeking a character-filled family house in a lively, well-connected neighbourhood, with scope to upgrade energy performance and add value over time.
3 bedroom terraced house for sale in Bow Common Lane, Bow, London, E3 — £750,000 • 3 bed • 2 bath • 1186 ft²
2 bedroom terraced house for sale in Fairfield Road, London, E3 — £800,000 • 2 bed • 1 bath • 899 ft²
4 bedroom terraced house for sale in Ridgdale Street, Bow, E3 — £900,000 • 4 bed • 2 bath • 1325 ft²
2 bedroom terraced house for sale in Antill Road, London, E3 — £600,000 • 2 bed • 1 bath • 540 ft²
3 bedroom terraced house for sale in Clinton Road, Bow, London, E3 — £1,100,000 • 3 bed • 2 bath • 1522 ft²
3 bedroom house for sale in Ridgdale Street, Bow, London, E3 — £800,000 • 3 bed • 1 bath • 910 ft²






















































































































