### Standout Features:
- Character-rich, former listed building with historical significance
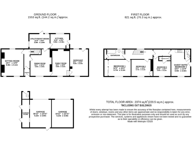
- Versatile layout with potential guest suite or annex
- Expansive grounds with croft, lawned garden, and various outbuildings
- Located in the picturesque village of Linton, within Yorkshire Dales National Park
- Walking distance to Linton Falls and the River Wharfe
- Ample parking with double garage and courtyard
### Potential Concerns:
- Requires renovation, particularly in the kitchen
- Listed status may affect future modifications
- Council tax band F (expensive)
**Summary Description:**
Discover the enchanting Manor House Farm, a character-laden former listed building nestled in the highly sought-after village of Linton. This spacious detached home spans 2,374 square feet and offers versatile living spaces, including a potential guest suite or annex, perfect for modern family needs or rental opportunities. The historic charm is on display throughout, with exposed timber beams and traditional stone fireplaces, while large multi-pane windows infuse the home with natural light and captivating views of the surrounding Yorkshire Dales.
Set across generous grounds, the property boasts a mix of croft and lawned gardens, alongside various outbuildings for further potential. Despite the urgent need for renovation—particularly in the kitchen—this residence provides an incredible opportunity to create your dream home in a tranquil village. With walking access to Linton Falls and the serene River Wharfe, you’ll enjoy a peaceful lifestyle in a vibrant community. Don’t miss this unique opportunity in a market with limited availability; schedule a viewing to immerse yourself in the rich history and vast potential that Manor House Farm has to offer.
4 bedroom detached house for sale in Moorside Lane, Addingham, Ilkley, West Yorkshire, LS29 — £1,150,000 • 4 bed • 4 bath • 2586 ft²
3 bedroom cottage for sale in Fell View Cottage, Linton, Skipton, BD23 — £595,000 • 3 bed • 2 bath • 1228 ft²
5 bedroom detached house for sale in Old Hall Laithe & Barn on The Green, Kilnsey, Skipton, BD23 — £850,000 • 5 bed • 3 bath • 2700 ft²
5 bedroom detached house for sale in Airton, Skipton, North Yorkshire, BD23 — £1,425,000 • 5 bed • 2 bath • 3486 ft²
5 bedroom detached house for sale in Lindley, Otley, North Yorkshire, LS21 — £1,000,000 • 5 bed • 3 bath • 3061 ft²
5 bedroom detached house for sale in Starbotton, Skipton, North Yorkshire, BD23 — £950,000 • 5 bed • 4 bath • 3807 ft²


























































































































































