Compact, low-maintenance freehold ideal for first-time buyers or downsizers.
- Chain free one-bedroom cluster house
- Private enclosed rear garden with patio access
- Allocated off-street parking plus visitor spaces
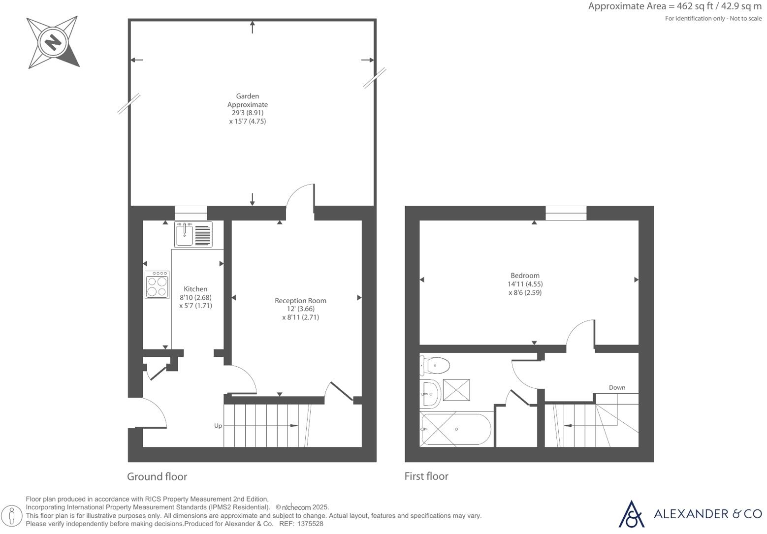
- Large first-floor bedroom, bright lounge with patio doors
- Small plot and modest overall footprint (462 sq ft)
- Electric storage heating — check running costs
- Service charge £30 per month (£360 pa)
- Freehold; built in the 1980s
This chain-free one-bedroom cluster house sits at the end of a quiet cul-de-sac in West Dunstable, offering an easy first step onto the property ladder or a low-maintenance downsizing option. The ground floor has a bright lounge with double doors leading to a privately enclosed rear garden, plus a practical fitted kitchen. Upstairs is a large bedroom and a family bathroom. The home totals about 462 sq ft and is freehold.
Practical features include an allocated off-street parking space, visitor parking, double glazing and a modest monthly service charge of £30 (£360 pa) covering communal upkeep. The location is convenient for local shops, primary schools rated Good, bus routes, the A5 and M1 Junction 9, making commutes and errands straightforward.
Notable drawbacks are the electric storage heating system, which can be more expensive than gas, and the property’s compact footprint and small plot size — typical of cluster houses. Constructed in the 1980s, it appears well maintained but buyers should confirm heating and electrical specifications. Overall, this property suits buyers who prioritise location, low running involvement and a manageable footprint rather than extensive outdoor space or gas central heating.
2 bedroom end of terrace house for sale in Bowmans Way, Dunstable, Bedfordshire, LU6 — £250,000 • 2 bed • 1 bath • 566 ft²
1 bedroom cluster house for sale in Hockley Court Watling St. Hockliffe, LU7 — £190,000 • 1 bed • 1 bath • 404 ft²
1 bedroom cluster house for sale in Kelling Close, Warden Hills, Luton, Bedfordshire, LU2 7ET, LU2 — £220,000 • 1 bed • 1 bath • 512 ft²
1 bedroom house for sale in Gainsborough Drive, Houghton Regis, Dunstable, Bedfordshire, LU5 — £210,000 • 1 bed • 1 bath • 431 ft²
2 bedroom cluster house for sale in Dorrington Close, Luton, LU3 — £240,000 • 2 bed • 1 bath • 560 ft²
1 bedroom semi-detached house for sale in Howard Close, Luton, LU3 — £190,000 • 1 bed • 1 bath • 410 ft²


































