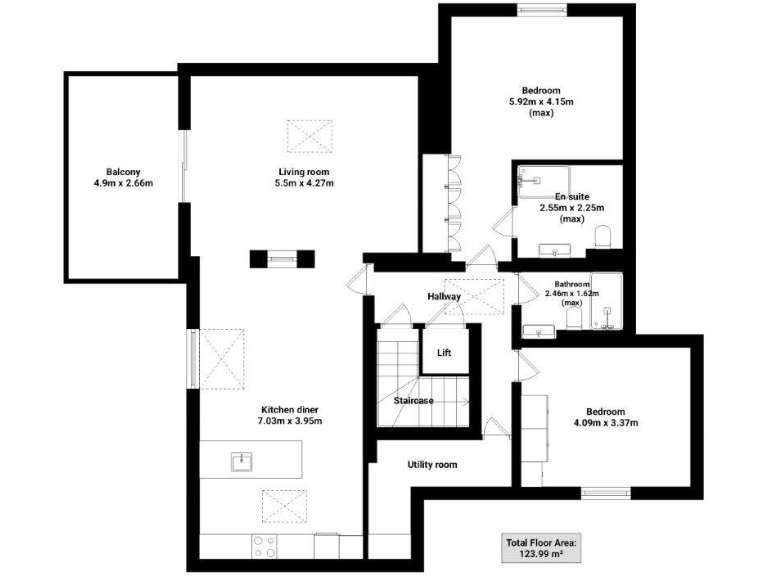
Spacious, light-filled top-floor home with balcony, parking and lift access.
Penthouse level: large, light-filled rooms and vaulted kitchen-diner
Approximately 1,335 sq ft with generous living and storage space
Two double bedrooms with principal en suite and dressing area
Private balcony, communal gardens and gated parking
Lift and staircase access; secure electronic gated entry
Share of freehold tenure — communal responsibilities apply
Service charge circa £1,984 per year; Council Tax Band E
Originally built 1860 — check long-term maintenance history
This top-floor residence occupies the upper level of a converted Victorian villa in a leafy, highly regarded south Liverpool suburb. At roughly 1,335 sq ft the layout feels generous: a vaulted, light-filled kitchen-diner flows into a formal lounge with a fireplace and private balcony, creating an impressive entertaining space.
The apartment has been comprehensively modernised (redevelopment completed 2019) while retaining character features such as exposed beams and high ceilings. The principal bedroom includes a dressing area and en suite; a second double bedroom, family shower room and separate utility/storage room complete the accommodation.
Practical benefits include gated parking, communal gardens, lift and stair access, a Loxone intercom system and automatic lighting. The location sits moments from Calderstones Park, well-regarded schools and independent shops and cafés along Allerton Road, with good public transport and motorway links.
Notable costs and responsibilities are plainly stated: the property is sold as a share of freehold, with an annual service charge of approximately £1,984 and Council Tax in Band E. Although recently renovated, the building’s Victorian age means ongoing maintenance and communal repair obligations should be confirmed by buyers.
3 bedroom apartment for sale in Crofton Mansion, North Sudley Road, Liverpool., L17 — £289,950 • 3 bed • 2 bath • 1514 ft²
2 bedroom flat for sale in Dudlow Nook Road, Liverpool, Merseyside, L18 — £220,000 • 2 bed • 1 bath • 685 ft²
2 bedroom apartment for sale in Green Lane, Mossley Hill, Liverpool., L18 — £330,000 • 2 bed • 2 bath • 922 ft²
2 bedroom apartment for sale in 24 Aigburth Drive, Liverpool, MERSEYSIDE, L17 — £230,000 • 2 bed • 2 bath • 1002 ft²
2 bedroom apartment for sale in New Heys Drive, Calderstones, Liverpool, L18 — £295,000 • 2 bed • 2 bath • 1123 ft²
2 bedroom apartment for sale in Aigburth Drive, Liverpool, L17 — £315,000 • 2 bed • 2 bath • 1053 ft²










































































































































































































































