Spacious, eco-efficient farmhouse on an exclusive seven‑house estate with wide countryside views..
Exceptional energy efficiency: solar park share, air source heat pump, full underfloor heating
Four double bedrooms, each with an en suite; master with dressing room
Huge private garden and far-reaching rural views across Kings Wood
Generous accommodation ~300 sq m / 3,229 sq ft; large L-shaped open-plan living
Exclusive development: only seven houses set in ten acres, detached garage included
Available off-plan with finish and landscaping choices; three-bed rental during build
Short drive to Gillingham station and strong local schools; commuter friendly
Rural drawbacks: very slow broadband, average mobile signal; off-plan lead times
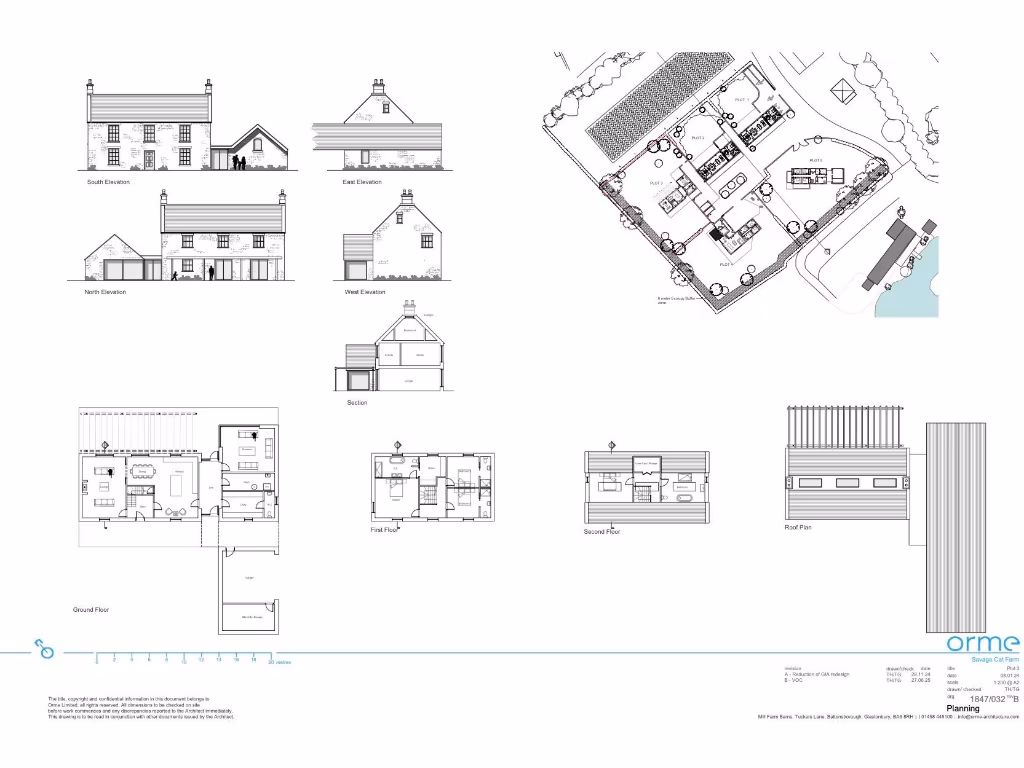
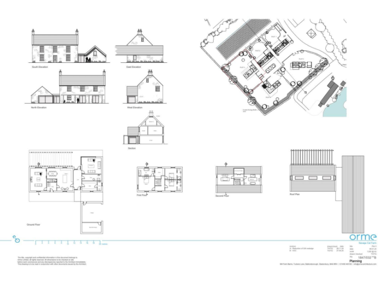
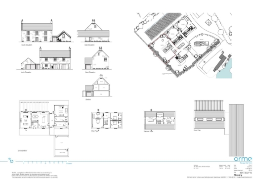
Plot 3 at Kings Wood Farm is a handsome, Georgian‑inspired farmhouse offering exceptionally large accommodation (circa 300 sq m / 3,229 sq ft) set within an exclusive development of seven homes across ten acres. The layout centres on a generous L-shaped, open-plan kitchen/dining/living room, with a separate sitting room and sunroom that capture far-reaching countryside views. Four double bedrooms all include en suites; the master benefits from a dressing room and substantial bathroom. A detached garage and huge private garden complete the picture.
Sustainability and low running costs are key selling points: each house has a share in a 240 kW solar park, an air source heat pump, full underfloor heating and high-performance glazing. The build uses reclaimed and natural timbers and a fabric-first construction approach for thermal mass and durability. The home is available off-plan, letting buyers choose kitchens, bathrooms, flooring and landscaping within a generous allowance; a three-bedroom property is available to rent free during construction to ease logistics.
This property will suit families and countryside commuters who value space, character and eco-efficiency. It sits a short drive from Gillingham station (direct services to London Waterloo) and close to well-regarded state and independent schools. Important practical points: the site is in a rural hamlet with average mobile signal and very slow broadband, and the purchase is off-plan so finishes and landscaping will be completed to buyer selections. Buyers should factor in typical new‑build lead times and inspect specifications and guarantees before exchange.
5 bedroom detached house for sale in Kings Wood Farm, Gillingham, Dorset, SP8 — £1,450,000 • 5 bed • 5 bath • 3230 ft²
4 bedroom detached house for sale in Common Mead Lane, Gillingham, SP8 — £985,000 • 4 bed • 3 bath • 2432 ft²
4 bedroom detached house for sale in Colesbrook, Gillingham, Dorset, SP8 — £825,000 • 4 bed • 4 bath • 2269 ft²
5 bedroom detached house for sale in Church Lane, East Orchard, SP7 — £2,250,000 • 5 bed • 3 bath • 4777 ft²
5 bedroom detached house for sale in Church Lane, East Orchard, Dorset, SP7 — £2,250,000 • 5 bed • 3 bath • 4777 ft²
5 bedroom detached house for sale in Moorside, Sturminster Newton, Dorset, DT10 — £1,350,000 • 5 bed • 5 bath • 3897 ft²


















