**Standout Features:**
- One-bedroom ground floor retirement apartment
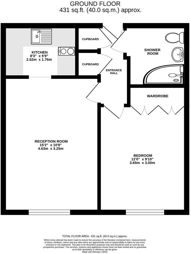
- Total area of approximately 431 sq.ft
- Integrated kitchen appliances
- Double-glazed windows and electric heating
- Lift access, communal gardens, and parking
- Extended lease with 147 years remaining
- Located near Brentwood town centre
**Potential Downsides:**
- Higher annual service charge of £3,511.44
- Average broadband speeds
This charming one-bedroom ground floor retirement apartment presents a unique opportunity for those seeking a compact living space within a vibrant community. With a generous layout of around 431 sq.ft, this home is bathed in natural light, featuring a cozy reception room, a fully-equipped kitchen with integrated appliances, and a comfortable master bedroom with fitted wardrobes. The modern shower room adds convenience to everyday living.
Enjoy the pleasant communal gardens and residents parking, all while benefiting from easy access to Brentwood town centre's amenities. Although there is a notable service charge, the property offers an extended lease of 147 years and ensures a secure, comfortable lifestyle for retirees or downsizers. This is a rare chance to own a well-maintained retreat in an affluent area, perfect for those looking for community-oriented living with local shops, restaurants, and recreational facilities just a stone's throw away. Don’t miss out on this inviting space tailored for relaxation and convenience!
1 bedroom retirement property for sale in Eastfield Road, Brentwood, CM14 — £105,000 • 1 bed • 1 bath • 441 ft²
1 bedroom retirement property for sale in Kings Road, Brentwood, CM14 — £110,000 • 1 bed • 1 bath • 480 ft²
2 bedroom retirement property for sale in Eastfield Road, Brentwood, CM14 — £240,000 • 2 bed • 1 bath • 568 ft²
1 bedroom retirement property for sale in Eastfield Road, Brentwood, CM14 — £160,000 • 1 bed • 1 bath • 433 ft²
1 bedroom retirement property for sale in Queenswood House, Eastfield Road, Brentwood, CM14 — £130,000 • 1 bed • 1 bath • 603 ft²
2 bedroom retirement property for sale in Eastfield Road, Brentwood, CM14 — £180,000 • 2 bed • 1 bath • 636 ft²


















































