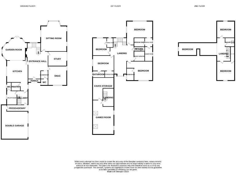
**Standout Features:**
- Detached 7-bedroom residence in the scenic village of Brigsley
- Views over the village church
- Spacious adult and family living areas, including three reception rooms
- Luxurious kitchen with high-end appliances, plus a garden room
- Approx. 3/4 acre of mature, beautifully landscaped grounds
- Five bathrooms, four of which are en suites
- Double garage with electric doors
- Solar thermal panels for eco-friendly efficiency
- Security alarm and CCTV installed
- Ideal for family living with ample space and privacy
This stunning detached home offers an unparalleled living experience in the tranquil village of Brigsley, perfect for families seeking comfort and space. With seven spacious bedrooms and five well-appointed bathrooms, the property combines modern luxury with traditional charm. The magnificent kitchen/breakfast room, designed with high specification finishes, seamlessly connects to a sunlit garden room, enhancing the home's inviting atmosphere.
Set on approximately 3/4 acre of private grounds, this property features a mature garden that provides a serene backdrop, ideal for outdoor enjoyment and entertaining. The expansive living areas, including a cozy sitting room and versatile music room, accommodate both relaxation and family gatherings. Renowned for its low crime rate and peaceful environment, Brigsley is an ideal family-friendly location, with excellent local schools nearby. This exceptional home provides ample room for potential renovations, allowing for customization to suit your needs. Don’t miss the opportunity to own this beautifully crafted property, blending luxury and lifestyle in one of the area’s most sought-after locations. Act fast—homes like this are rare to find!
4 bedroom detached house for sale in Babbcombe, Main Road, Brigsley, Grimsby, DN37 — £425,000 • 4 bed • 2 bath • 1441 ft²
3 bedroom detached house for sale in Church Lane, Brigsley, Grimsby, Lincolnshire, DN37 — £625,000 • 3 bed • 2 bath
4 bedroom bungalow for sale in Waltham Road, Brigsley, Lincolnshire, DN37 — £525,000 • 4 bed • 2 bath • 2073 ft²
3 bedroom detached house for sale in Southfield Avenue, Scartho, Grimsby, DN33 — £419,950 • 3 bed • 2 bath • 2433 ft²
4 bedroom detached house for sale in Maple Grove, Waithe Lane, Brigsley, Grimsby, DN37 — £775,000 • 4 bed • 2 bath • 2552 ft²
4 bedroom detached house for sale in Brigsley Road, Waltham, Grimsby, Lincolnshire, DN37 — £495,000 • 4 bed • 3 bath






























































































































































































































































































































































































































































































