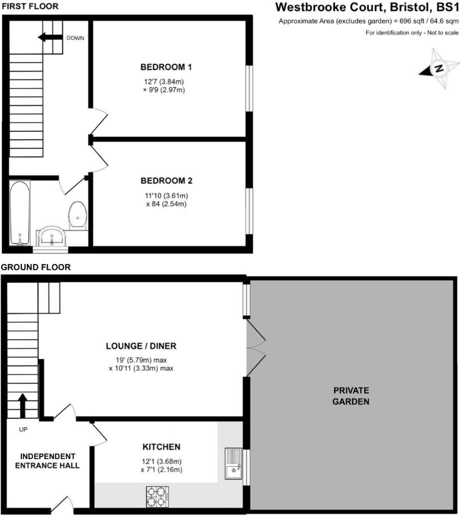
Move-in ready two-bedroom home with parking and private sunny garden.
Chain free with vacant possession available
Private south-facing garden directly off lounge
Allocated off-street parking space included
Approx. 696 sq ft across two storeys (ground + first)
Long lease: 960 years remaining (999 original)
Service charge c. £1,260 pa; no ground rent stated
Main heating: electric storage heaters (higher running costs)
Area has above-average recorded crime — advise local checks
Set within Bristol’s harbourside, this chain-free two-bedroom maisonette offers a rare mix of private outdoor space and allocated parking just minutes from city amenities. The ground-floor lounge opens through French doors to a south-facing garden, creating a bright living area that’s ideal for easy indoor–outdoor living. At about 696 sq ft, the layout spreads over two floors with an independent entrance and straightforward, modern finishes throughout.
Practical strengths include a long lease (960 years remaining), an allocated off-street parking space, and a manageable service charge of £1,260 covering communal upkeep. The flat is double glazed and well presented, making it move-in ready for first-time buyers or city professionals who want Harbourside life without intensive renovation.
Notable considerations: heating is by electric storage heaters, which can be costlier than gas alternatives and may influence running costs and future upgrade plans. The development sits in an area with above-average recorded crime, so prospective buyers should review local records and visit at different times. The property is leasehold and incurs the stated service charge; there is no ground rent.
Overall this maisonette suits buyers seeking a central Bristol base with private outdoor space and parking — especially first-time purchasers or investors wanting a well-located, low-maintenance home with good long-term lease security.
2 bedroom apartment for sale in The Crescent, Hannover Quay, Bristol, BS1 — £400,000 • 2 bed • 2 bath • 874 ft²
2 bedroom semi-detached house for sale in Canada Way, Spike Island, BS1 — £500,000 • 2 bed • 2 bath • 1049 ft²
2 bedroom flat for sale in Ferry Street, Bristol, BS1 — £275,000 • 2 bed • 1 bath • 543 ft²
2 bedroom flat for sale in Millennium Promenade, Bristol, BS1 — £350,000 • 2 bed • 2 bath • 603 ft²
2 bedroom flat for sale in Lime Kiln Road, Bristol, BS1 — £550,000 • 2 bed • 2 bath • 714 ft²
2 bedroom flat for sale in Waverley House, Harbourside, BS1 — £265,000 • 2 bed • 2 bath • 840 ft²


































































































