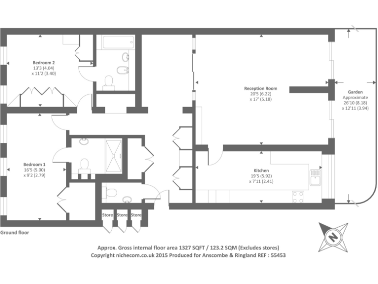
**Standout Features:**
- Share of freehold with a 999-year lease
- Spacious 2-bedroom, 2-bathroom flat (1327 sq ft) in St John’s Wood
- Private entrance and walled south-facing patio garden
- Elegant double reception room with herringbone oak flooring
- Allocated parking space
- Comprehensive alarm system for added security
- Service charge of £3,000 per annum
Nestled in the heart of the fashionable St John’s Wood, this exceptional two-bedroom apartment offers a rare blend of privacy, style, and convenience. Enter through your own doorway into a spacious entrance hall that leads into an expansive double reception room, bathed in natural light courtesy of elegant double-aspect patio doors. The stylish fitted kitchen complements the contemporary living space, making it perfect for entertaining or relaxing. Each bedroom features its own stylish en-suite, with ample storage throughout.
Step outside to enjoy a private walled patio garden, a serene retreat perfect for outdoor relaxation. The apartment's secure location benefits from excellent mobile and broadband connectivity, making it ideal for modern living. With a dedicated parking space and the vibrant local amenities within walking distance—including acclaimed schools, cafes, and parks—this property is not just a home; it’s a lifestyle choice.
While located in an affluent neighborhood, be aware that the area has a slightly above-average crime rate, which is manageable with the property's advanced security features. Experience exclusivity and comfort—schedule your viewing today to seize this unique opportunity in one of London’s most desirable locations!
2 bedroom maisonette for sale in Grove End Road, St John's Wood, London, NW8 — £1,350,000 • 2 bed • 2 bath • 1218 ft²
2 bedroom flat for sale in Abercorn Place, St. John's Wood, NW8 — £1,050,000 • 2 bed • 2 bath • 900 ft²
2 bedroom apartment for sale in South Lodge, Circus Road, St John's Wood, London, NW8 — £1,100,000 • 2 bed • 1 bath • 1058 ft²
2 bedroom flat for sale in Marlborough Place, St Johns Wood, NW8, NW8 — £1,100,000 • 2 bed • 1 bath • 884 ft²
2 bedroom apartment for sale in Abbey Road, London, NW8 — £750,000 • 2 bed • 1 bath • 622 ft²
2 bedroom apartment for sale in Hall Road, London, NW8 — £1,300,000 • 2 bed • 2 bath • 1076 ft²










































