Move-in-ready modern apartment ideal for first-time buyers seeking convenience.
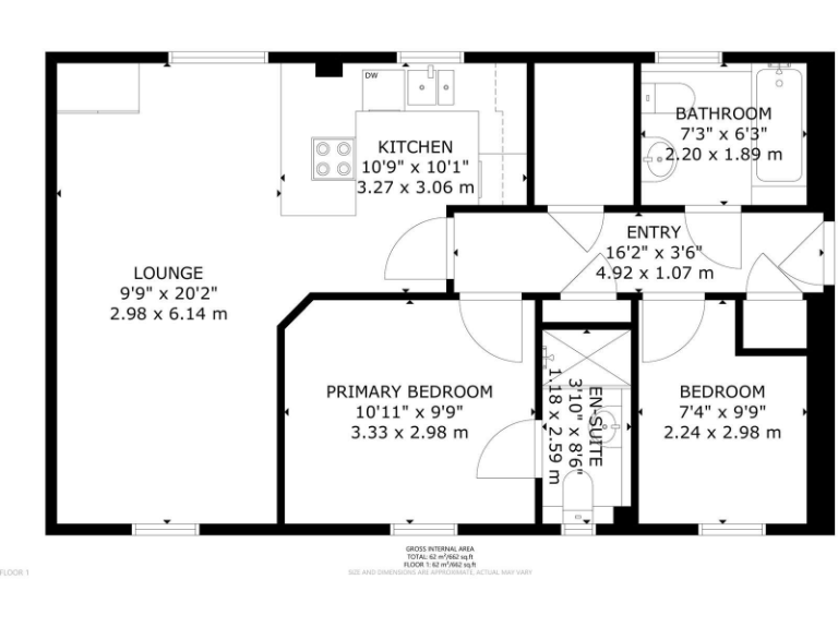
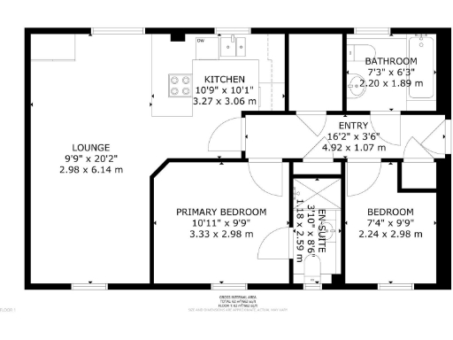
Ground-floor two-bedroom apartment with ensuite and family bathroom
Open-plan L-shape lounge/kitchen/dining — flexible living space
Allocated off-street parking and communal gardens included
Long lease remaining — approximately 115 years (leasehold)
Ground rent around £400 (average) — factor ongoing costs
Built 2007–2011; mains gas central heating and double glazing
Very high local crime levels — investigate local safety and security
Size about 662 sq ft; no flood risk reported
This ground-floor, two-bedroom apartment offers modern open-plan living in a popular, well-maintained development. The L-shaped lounge/kitchen/dining room provides generous, flexible space for everyday life and entertaining, while the master bedroom benefits from a private ensuite. Allocated off-street parking and communal gardens add practical convenience.
The flat sits on a long lease (circa 115 years) and occupies about 662 sq ft; mains gas central heating, double glazing and contemporary fixtures reflect construction from 2007–2011. Broadband and mobile signal are strong, making the home well-suited to modern working and streaming needs.
Notable practical points are clear: the property is leasehold with a ground rent of approximately £400 (average), and the wider area records very high crime levels. Buyers should factor local safety data and ongoing service/management costs into their plans.
Overall, this is a straightforward, move-in-ready option for a first-time buyer seeking low-maintenance, modern accommodation with parking and a long lease in easy reach of town centre amenities. Viewing is advised to assess the ground-floor aspect and communal setting in person.
2 bedroom flat for sale in Hawks Town Crescent, Hailsham, BN27 — £225,000 • 2 bed • 1 bath • 705 ft²
2 bedroom apartment for sale in Mutton Hall Hill, Heathfield, TN21 — £220,000 • 2 bed • 2 bath • 727 ft²
2 bedroom flat for sale in Trinity Trees, Eastbourne, BN21 — £245,000 • 2 bed • 2 bath • 809 ft²
3 bedroom apartment for sale in Compton Place Road, Eastbourne, East Sussex, BN21 — £350,000 • 3 bed • 1 bath • 1193 ft²
2 bedroom apartment for sale in St. Marys Close, Willingdon, Eastbourne, East Sussex, BN22 — £230,000 • 2 bed • 1 bath • 742 ft²
2 bedroom apartment for sale in Barnhorn Road, Bexhill-on-Sea, TN39 — £220,000 • 2 bed • 2 bath • 520 ft²














































































