CB5 8DN - 4 bedroom terraced house for sale in Parsonage Street, Camb…

View on Property Piper

4 bedroom terraced house for sale in Parsonage Street, Cambridge, CB5

Summary - 12a Parsonage Street, CAMBRIDGE CB5 8DN

4 bed 2 bath Terraced

**Standout Features:**
- 4 spacious bedrooms and 2 modern bathrooms
- Open plan living space with abundant natural light
- Recently fully refurbished and remodeled
- Private courtyard garden with home studio
- Allocated parking plus resident permit parking
- Prime city location adjacent to Midsummer Common
- EPC Rating: C / 76

**Summary Description:**
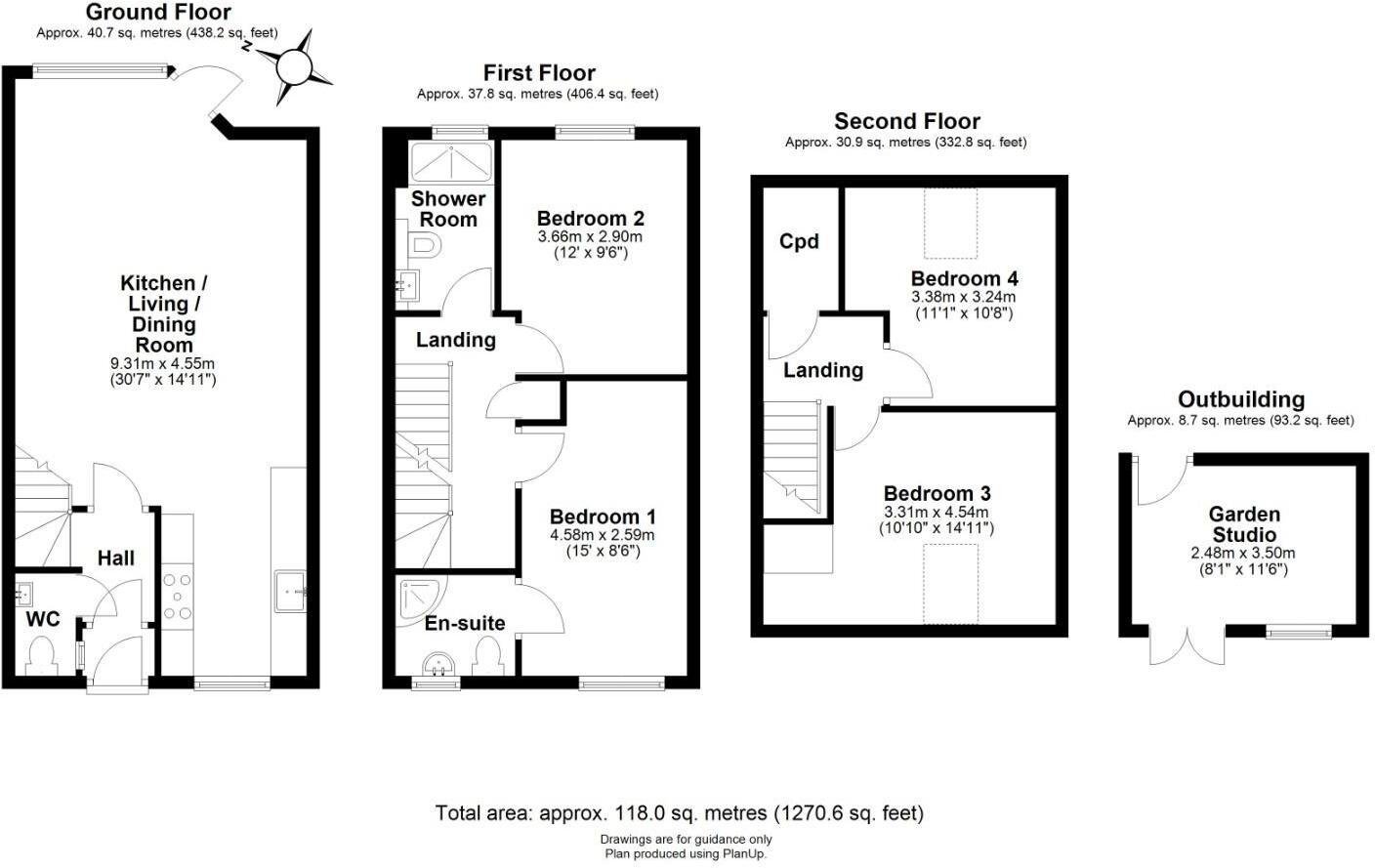
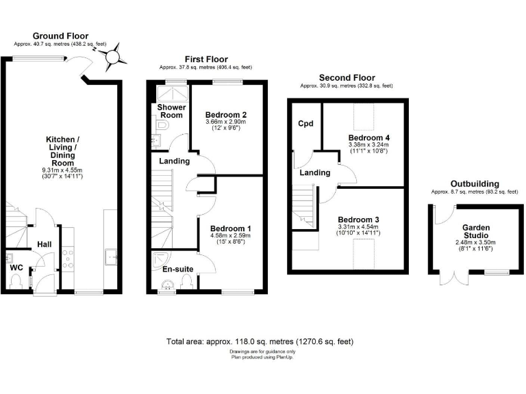
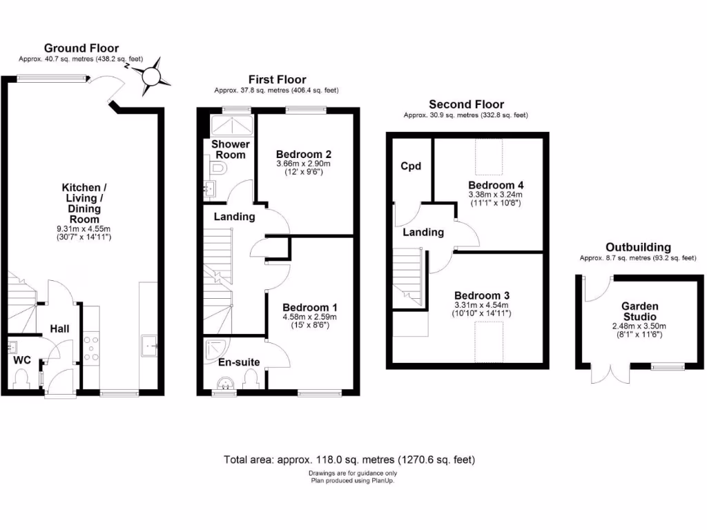
Discover this beautifully renovated 4-bedroom town house, ideally situated just steps from Midsummer Common. This contemporary mid-terrace features a bright, open plan living and dining area seamlessly connected to a stylish, newly installed kitchen, creating an inviting space for both family living and entertaining. The generous layout offers a principal bedroom suite along with three additional double bedrooms, making it perfect for families or sharers.

The outdoor space boasts a charming courtyard garden, complete with a fully insulated home studio that is perfect for a workspace or creative retreat. With a total area of 1270 sqft, this property is efficiently designed to maximize comfort while maintaining a modern aesthetic. The added benefits of an allocated parking space and resident permit parking enhance the property's appeal.

Located within a vibrant cosmopolitan neighborhood, this home not only offers easy access to local amenities and the historic city center but also falls within the catchment area of reputed schools such as St Matthew’s Primary and Parkside Community College. While the property sits in a very affluent area, it is worth noting that crime rates are high, which may be a concern for some buyers. This gem, presented chain-free, is a rare opportunity in a market where properties of this caliber are snapped up quickly—don’t miss your chance to make this stylish house your home!

Property Details

Brochure Descriptions

Image Descriptions

Floorplan Description

Rooms

Textual Property Features

Detected Visual Features

EPC Details

Nearby Schools

Nearest Bars And Restaurants

,,,,}

Nearest General Shops

,,}

Nearest Grocery shops

,,}

Nearest Supermarkets

,,}

Nearest Religious buildings

,,}

Nearest Medical buildings

,,,}

Nearest Leisure Facilities

,,,,}

Nearest Tourist attractions

,,}

Nearest Train stations

,,,,}

Nearest Bus stations and stops

,,,,}

Nearest Hotels

,,}

Tags

Local Market Stats

AirBnB Data

Similar Properties

Meta

High Res Images

Compatible Images

Low res Images

Thumbnails

Raw Images

High Res Floorplan Images

Compatible Floorplan Images

Low res Floorplan Images

FloorplanImages Thumbnail

Raw Floorplan Images