**Standout Features:**
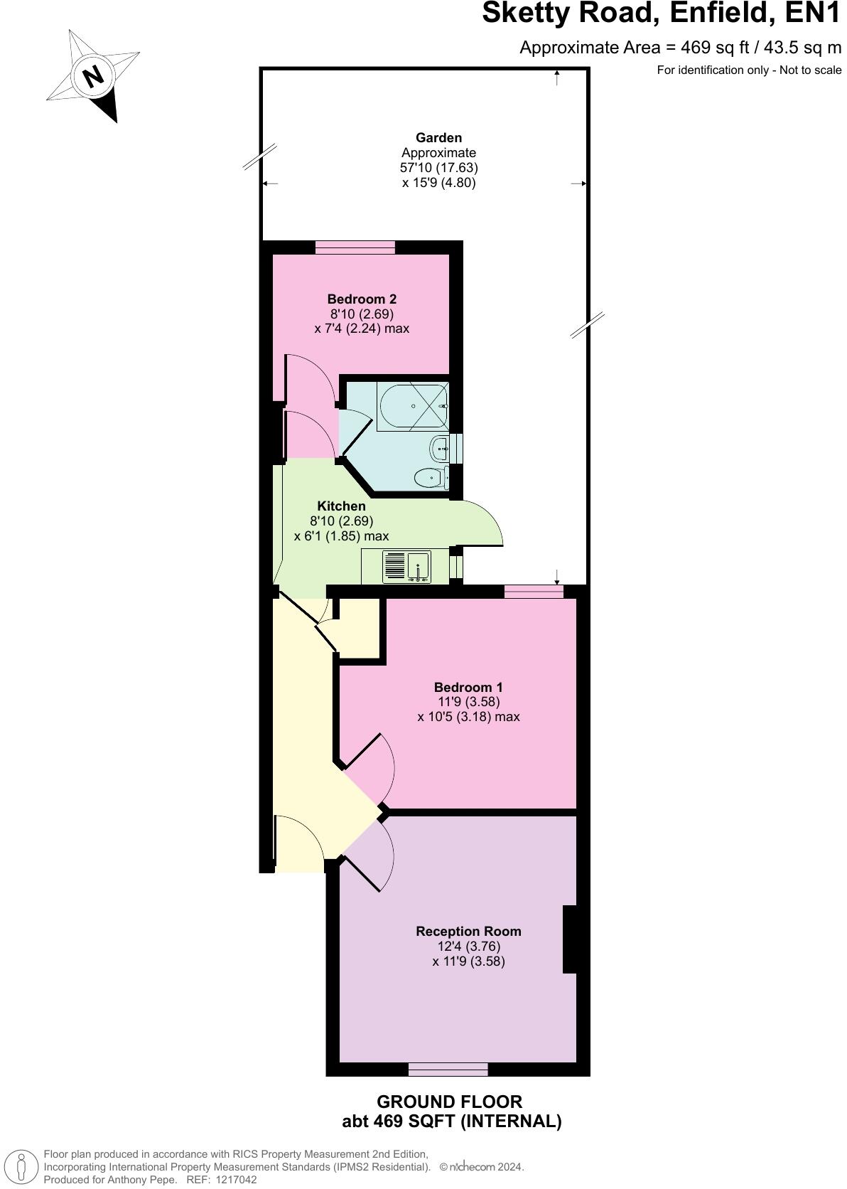
- Two-bedroom mid-terrace Victorian property
- Private rear garden with potential for landscaping
- Chain-free sale for a swift move-in
- Excellent transport links to central London (near Enfield Town Railway Station)
- Close to reputable primary and secondary schools (all rated Good by Ofsted)
**Potential Concerns:**
- Requires renovation and repairs, particularly in the living room
- Average crime rates in the area
- Ground rent of £100
Discover the charm of this two-bedroom mid-terrace Victorian home located in the vibrant area of Enfield (EN1). This property, with its private rear garden, offers ample renovation potential for those looking to create their own perfect living space. Despite needing updates, including in the dated living room, the generous natural light hints at the comfortable atmosphere that could be transformed here.
Ideal for first-time buyers or investors, this home is strategically positioned just a short walk away from Enfield Town's abundant shopping and public transport options, making commuting effortless. The neighborhood is enriched with a blend of diverse cultural amenities and reputable schools, catering well to families. Seize the opportunity to make this quaint property your own—its chain-free status allows for a smooth transaction, but you’ll want to act fast on this promising investment nestled in a major urban conurbation.
2 bedroom apartment for sale in Sketty Road, Enfield, EN1 — £295,000 • 2 bed • 1 bath • 393 ft²
2 bedroom terraced house for sale in Clive Road, Enfield, EN1 — £399,950 • 2 bed • 1 bath • 840 ft²
1 bedroom end of terrace house for sale in London Road, Enfield, EN2 — £290,000 • 1 bed • 1 bath • 526 ft²
3 bedroom terraced house for sale in Percival Road, Enfield, EN1 — £550,000 • 3 bed • 2 bath • 1280 ft²
3 bedroom terraced house for sale in Halstead Road, Enfield, EN1 — £425,000 • 3 bed • 1 bath • 862 ft²
1 bedroom maisonette for sale in Sketty Road, Enfield, EN1 — £275,000 • 1 bed • 1 bath • 534 ft²






















































































