City-flat offering low running costs and clear buy-to-let potential near transport and shops.
Private ground-floor entrance for direct access and added privacy
Chain-free sale — straightforward transaction potential
Low annual service charge (£362) and long lease (≈152 years)
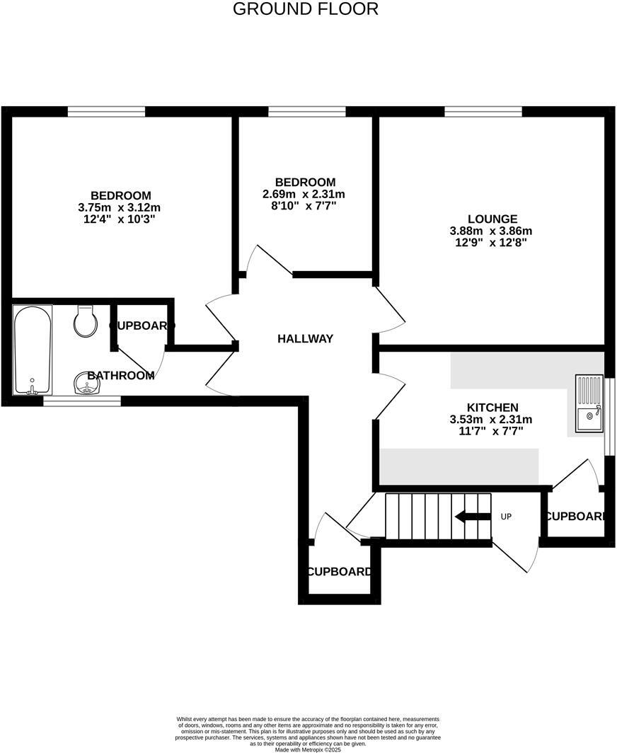
Compact overall size (441 sq ft); accommodation is small to average
Above a retail unit on a busy high street; no garden or external views
Located in a very deprived area with a high local crime rate
Likely needs modernising (kitchen/bathroom) to maximise value
Excellent mobile signal and fast broadband; strong transport links
A compact two-bedroom apartment located above a town-centre parade in Norwich, offered chain-free with a private entrance and low annual service charges. The flat is practical and economical to run, with 441 sq ft of accommodation arranged around a central hallway, lounge, kitchen, two bedrooms and a bathroom. The long lease (approximately 152 years remaining) makes it straightforward for mortgage or investment buyers.
The property sits over a full-width ground-floor retail unit on a busy high street, presenting clear buy-to-let potential or a mixed-use investment opportunity. Local amenities and frequent transport links are immediately accessible, and the building benefits from excellent mobile signal and fast broadband — attractive for tenants or professionals working from home.
Buyers should be aware of the material location factors: the neighbourhood is classified as very deprived with a high local crime rate, and the flat sits directly onto the pavement with no garden or external view. The accommodation is compact and will likely require some modernisation of kitchen and bathroom to reach higher rental or resale values. Internal inspection is recommended to confirm condition and light levels.
Overall, this is a budget-friendly, low-fee city flat with sensible lease terms and clear rental or starter-home appeal, balanced by the need to factor in local area challenges and possible internal updating.
1 bedroom apartment for sale in Throckmorton Yard, Norwich, NR3 — £120,000 • 1 bed • 1 bath • 345 ft²
2 bedroom apartment for sale in Norwich, NR4 — £160,000 • 2 bed • 1 bath • 661 ft²
1 bedroom apartment for sale in City Centre, NR1 — £140,000 • 1 bed • 1 bath
2 bedroom apartment for sale in City Centre, NR1 — £160,000 • 2 bed • 1 bath
2 bedroom flat for sale in St. Martin At Bale Court, Norwich, NR1 — £190,000 • 2 bed • 2 bath • 625 ft²
2 bedroom flat for sale in Ranson Road, Norwich, Norfolk, NR1 — £180,000 • 2 bed • 1 bath • 823 ft²


































