CO2 7UZ - 4 bedroom semidetached house for sale in Drury Road, Colche…

View on Property Piper

4 bedroom semi-detached house for sale in Drury Road, Colchester, Colchester, CO2

Summary - 13 DRURY ROAD COLCHESTER CO2 7UZ

4 bed 2 bath Semi-Detached

**Standout Features:**
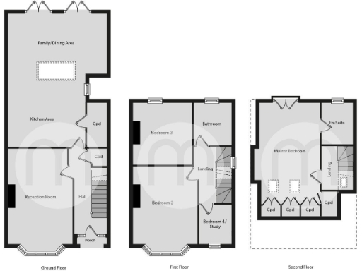
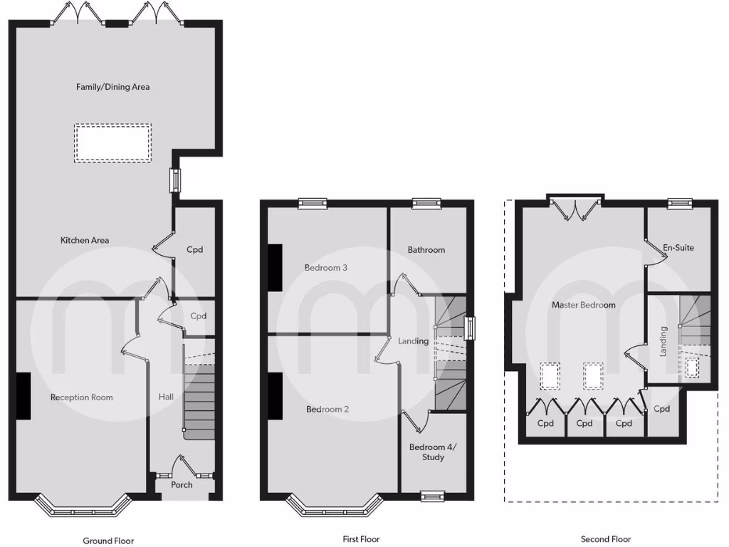
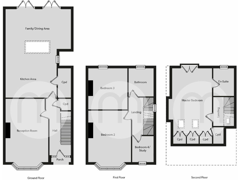
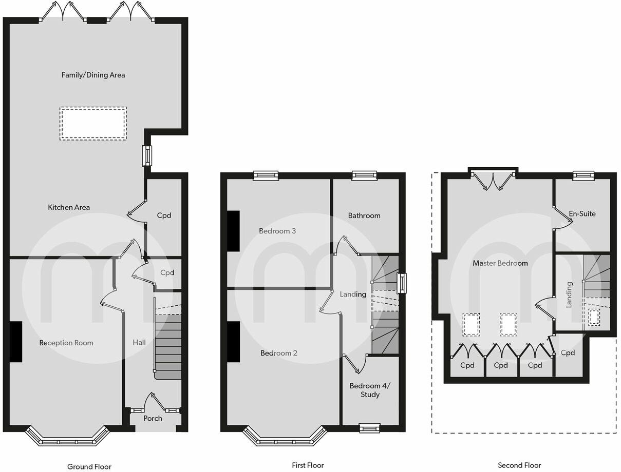
- Four-bedroom semi-detached home, extended and improved
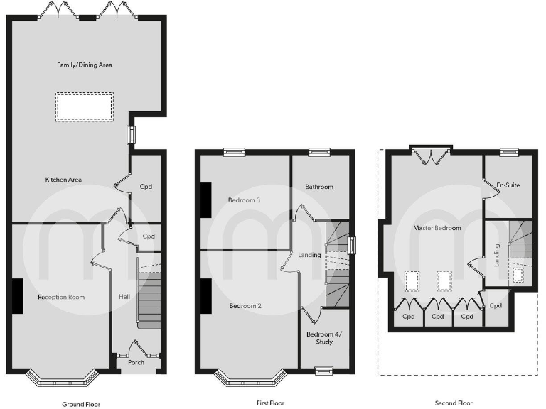
- Three spacious double bedrooms plus a study/office
- Bright, inviting reception room with a feature bay window
- Modern kitchen/family/dining area with Neff appliances and herringbone flooring
- Stylish first-floor family bathroom and en-suite to the master bedroom
- Private, enclosed rear garden with a versatile garden room/office
- Off-street parking available
- Location near amenities and excellent schools

This beautifully extended four-bedroom semi-detached family home offers a perfect blend of modern comfort and classic charm. Situated in the desirable Drury Road area of Colchester, convenience is a key feature with various amenities, recreational spaces, and acclaimed schools nearby, making it ideal for families.

Step inside to find a warm reception room adorned with a striking feature bay window, leading to an open-plan kitchen/living/dining area that is perfect for gatherings and entertaining, featuring premium Neff appliances and stylish herringbone flooring. The first floor boasts three generous double bedrooms, a flexible study space, and a chic tiled family bathroom, with the master suite benefiting from its own en-suite shower room.

Outside, the private rear garden is a tranquil escape, complete with an expansive patio for outdoor dining and a well-lit garden room ideal for work or leisure, equipped with full power and double glazing. With off-road parking and low crime rates in the area, this home combines comfort, security, and future potential, appealing to both families and investors. Don't miss out on this unique opportunity; early viewings are encouraged to truly appreciate the generous accommodations this property offers!

Property Details

Brochure Descriptions

Image Descriptions

Floorplan Description

Rooms

Textual Property Features

Detected Visual Features

EPC Details

Nearby Schools

Nearest Bars And Restaurants

,,,,}

Nearest General Shops

,,}

Nearest Grocery shops

,,}

Nearest Supermarkets

,,}

Nearest Religious buildings

,,}

Nearest Medical buildings

,,,}

Nearest Leisure Facilities

,,,,}

Nearest Tourist attractions

,,}

Nearest Train stations

,,,,}

Nearest Bus stations and stops

,,,,}

Nearest Hotels

,,}

Tags

Local Market Stats

AirBnB Data

Similar Properties

Meta

High Res Images

Compatible Images

Low res Images

Thumbnails

Raw Images

High Res Floorplan Images

Compatible Floorplan Images

Low res Floorplan Images

FloorplanImages Thumbnail

Raw Floorplan Images