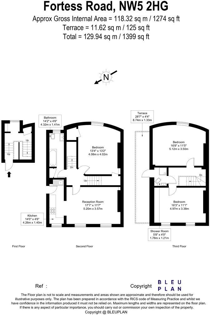
Generous three-bedroom split-level flat with terrace, close to Hampstead Heath.
- Large 3-bed maisonette, approx 1,274 sq ft across split levels
- Period features: sash windows, tall ceilings, brick façade
- Side terrace provides limited outdoor amenity (long and narrow)
- Share of freehold; chain free; owner reports lease extension in progress
- Service charge £500pa (reported), flat may pay 25% of major works
- Council Tax Band E (above average); crime level higher locally
- Gas central heating; ultrafast broadband available
- Some cosmetic updating could increase value
Set over the second and third (top) floors of an attractive period terrace on Fortess Road, this chain-free three-bedroom maisonette offers generous, well-proportioned living across ~1,274 sq ft. Period sash windows, tall ceilings and a brick façade give the flat character, while a long side terrace provides outside space in this central Camden location.
Practical details suit both families and investors: share of freehold tenure, a low reported service charge of £500pa, gas central heating and fast ultrafast broadband availability. The accommodation is arranged over split levels with a reception room, separate kitchen, utility area, two bathrooms and three bedrooms — a layout that adapts well to family living or rental demand.
Buyers should note a few material points. The neighbourhood records higher crime levels and council tax sits at Band E (above average). Lease information is mixed in the paperwork: 99 years remaining is shown, while the owner reports a lease extension is in progress to 999 years (not completed). Any buyer should confirm the current lease position and communal liability for major works (flat reportedly pays 25% if extra communal works arise).
Overall this is a sizeable, characterful urban flat with scope for modest updating to maximise value. It will suit purchasers seeking a sizeable multi-level home close to Kentish Town, Tufnell Park and Hampstead Heath or investors targeting strong rental demand in an affluent, well-connected part of north Camden.
 3 bedroom apartment for sale in Lady Somerset Road, London, NW5 — £1,400,000 • 3 bed • 3 bath • 1605 ft²
 3 bedroom apartment for sale in Lady Somerset Road, London, NW5 — £1,400,000 • 3 bed • 3 bath • 1605 ft² 4 bedroom maisonette for sale in Camden Street, Camden Town, NW1 — £1,100,000 • 4 bed • 2 bath • 1441 ft²
 4 bedroom maisonette for sale in Camden Street, Camden Town, NW1 — £1,100,000 • 4 bed • 2 bath • 1441 ft² 2 bedroom flat for sale in Fortess Road, Kentish Town, NW5 — £650,000 • 2 bed • 1 bath • 899 ft²
 2 bedroom flat for sale in Fortess Road, Kentish Town, NW5 — £650,000 • 2 bed • 1 bath • 899 ft² 3 bedroom apartment for sale in Brecknock Road, Holloway, London, N19 — £750,000 • 3 bed • 2 bath • 990 ft²
 3 bedroom apartment for sale in Brecknock Road, Holloway, London, N19 — £750,000 • 3 bed • 2 bath • 990 ft² 1 bedroom apartment for sale in Burghley Road, London, NW5 — £375,000 • 1 bed • 1 bath • 456 ft²
 1 bedroom apartment for sale in Burghley Road, London, NW5 — £375,000 • 1 bed • 1 bath • 456 ft² 2 bedroom flat for sale in Agar Grove, London, NW1 — £650,000 • 2 bed • 1 bath • 800 ft²
 2 bedroom flat for sale in Agar Grove, London, NW1 — £650,000 • 2 bed • 1 bath • 800 ft²


































































