Project home with garden and auction sale, ideal for hands-on buyers or investors.
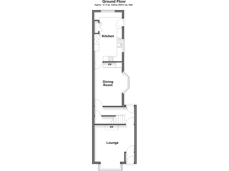
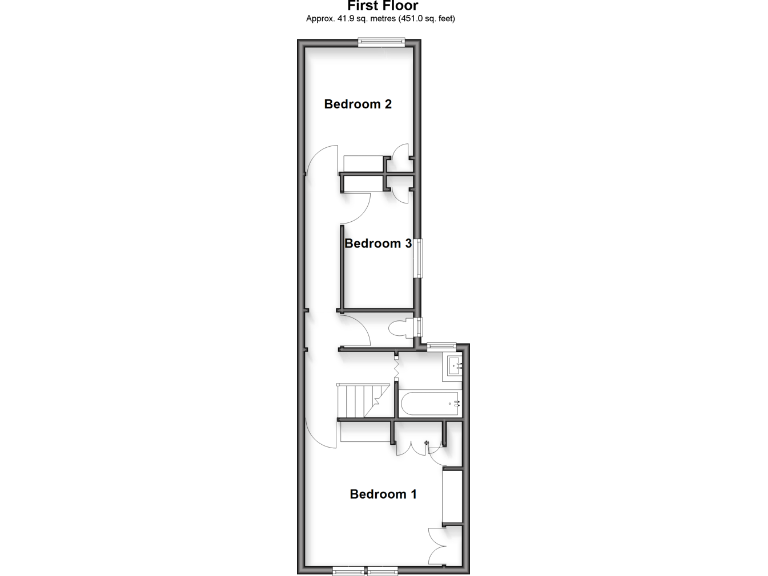
Three good-sized bedrooms and around 908 sqft of living space
This mid-terrace period home offers three good-sized bedrooms, a rear garden and generous reception space across approximately 908 sqft. Located in a popular North End area of Portsmouth, it sits close to schools rated Good and Outstanding and benefits from fast broadband and excellent mobile signal.
The property requires updating and renovation, presenting clear scope to add value for a first-time buyer or investor. Notable features include double glazing fitted after 2002, mains gas central heating with boiler and radiators, and traditional room proportions including a large dining room and separate lounge.
Sold by modern auction, the sale process includes a non-refundable reservation fee (4.2% of purchase price, min £6,000) plus a buyer pack fee of £349. The property is sold freehold and has no recorded flood risk; however the area is marked as deprived and the building likely has cavity walls without added insulation.
Buyers should allow for refurbishment costs (cosmetic and possible efficiency upgrades) and complete full due diligence before bidding. The auction route suits purchasers able to follow the specified timeline and reservation procedures and who are comfortable with an undisclosed reserve price.
3 bedroom terraced house for sale in Gladys Avenue, Portsmouth, Hampshire, PO2 — £210,000 • 3 bed • 1 bath • 1163 ft²
3 bedroom town house for sale in Garfield Road, Portsmouth, PO2 — £230,000 • 3 bed • 1 bath • 1271 ft²
3 bedroom terraced house for sale in New Road, Portsmouth, Hampshire, PO2 — £240,000 • 3 bed • 1 bath • 1096 ft²
3 bedroom terraced house for sale in Paddington Road, PORTSMOUTH, Hampshire, PO2 — £240,000 • 3 bed • 1 bath • 1103 ft²
3 bedroom terraced house for sale in Montgomerie Road, Southsea, PO5 — £185,000 • 3 bed • 1 bath • 868 ft²
3 bedroom terraced house for sale in Dover Road, Portsmouth, PO3 — £220,000 • 3 bed • 1 bath • 1012 ft²






































