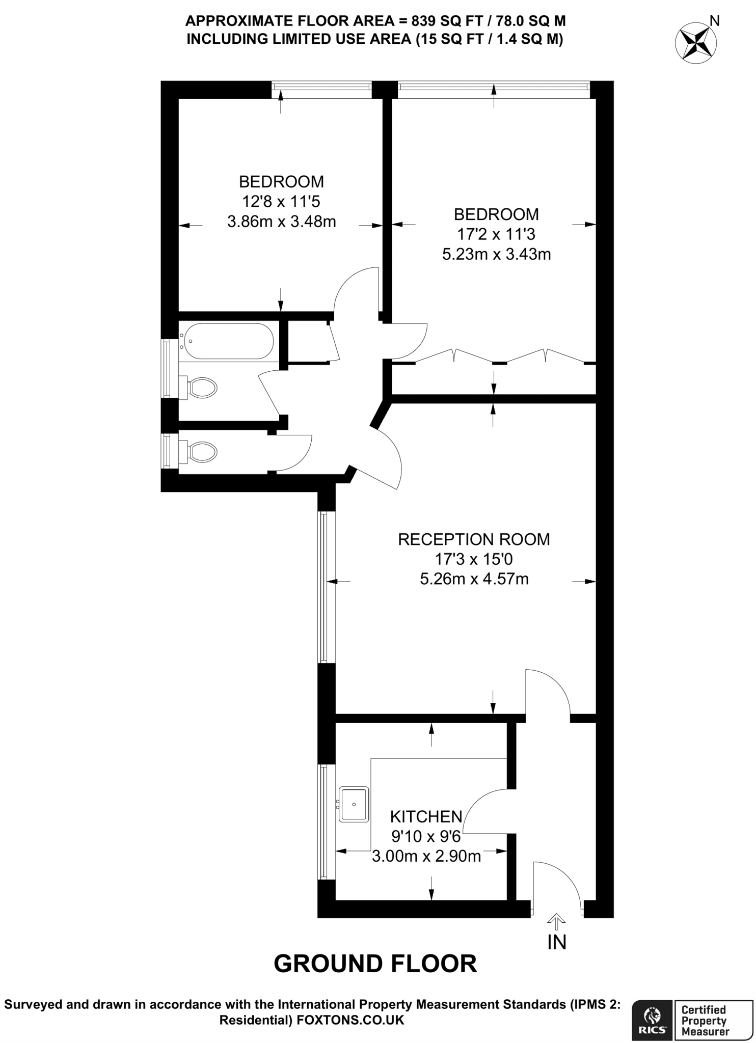
Well-located two-bedroom close to Harrow town centre and transport links.
Generous-sized bedrooms providing plenty of living space
Bright, inviting reception room with large mid-century window
Ground-floor convenience, easy access and practical layout
Separate kitchen and separate WC for added functionality
Very long lease (approximately 959 years) — rare advantage
Service charge circa £3,000 per year — significant ongoing cost
Double glazing installed before 2002; may require upgrading
Cavity walls assumed uninsulated — consider energy-efficiency work
This well-proportioned ground-floor flat offers comfortable living space and generous bedrooms, ideal for families or first-time buyers seeking room to grow. The reception room is bright and welcoming, and the separate kitchen and WC provide practical convenience for everyday living. The property measures approximately 839 sq ft and sits moments from Harrow town centre, amenities, and transport links.
Practical details include a very long lease (approx. 959 years) and mains gas heating via a boiler and radiators. There is double glazing already installed, though original fittings pre-date 2002 and the cavity walls are assumed to lack insulation, so buyers may wish to budget for energy improvements. The service charge is noted at around £3,000 per year.
Situated in an affluent, inner-city area with excellent mobile signal and average broadband, the flat benefits from local schools and a strong mix of nearby amenities. There is no flood risk recorded. Overall, this is a straightforward, well-located two-bedroom home with good space and potential for cosmetic modernisation.
2 bedroom flat for sale in Neptune Road, West Harrow, Harrow, HA1 — £350,000 • 2 bed • 1 bath • 542 ft²
2 bedroom flat for sale in Sheepcote Road, Harrow, HA1 — £425,000 • 2 bed • 1 bath • 776 ft²
2 bedroom flat for sale in Salisbury Road, Harrow, HA1 — £300,000 • 2 bed • 1 bath • 518 ft²
1 bedroom flat for sale in Harrow View, Harrow, Harrow , HA1 — £315,000 • 1 bed • 1 bath • 493 ft²
2 bedroom flat for sale in Archery Close, Wealdstone, Harrow, HA3 — £300,000 • 2 bed • 1 bath • 553 ft²
2 bedroom flat for sale in Manor Road, Harrow, HA1 — £400,000 • 2 bed • 2 bath • 691 ft²






























































