• Recently renovated three-bedroom mid-terrace with modern finishes
• Open-plan living/dining area with contemporary kitchen and utility
• Generous rear garden with patio, lawn and separate garden room/bar
• Single family bathroom only; compact internal floorspace (~602 sq ft)
• Freehold tenure, mains gas boiler and radiators, double glazing
• Fast broadband, excellent mobile signal, cheap council tax
• Neighbourhood shows higher deprivation; secondary school rated inadequate
• No flood risk; urban/suburban setting with average crime levels
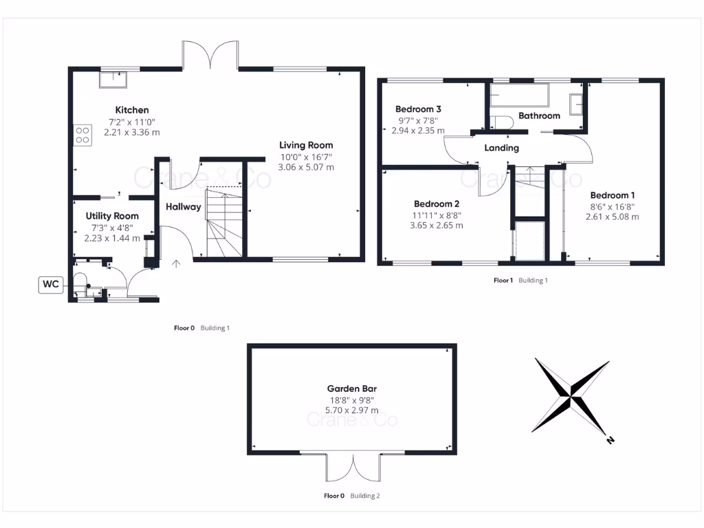
Step inside this recently renovated three-bedroom mid-terrace and you'll find bright, contemporary living across two floors. The ground floor offers an open-plan living and dining area that flows into a sleek modern kitchen and separate utility — useful for busy family life. Double doors lead out to a generous rear garden with a patio, lawn and a garden room currently arranged as a bar/games space.
Upstairs provides three well-lit bedrooms and a modern family bathroom. The property is compact at about 602 sq ft, so rooms feel efficiently arranged rather than spacious; this makes the house practical for a young family, couple or first-time buyers who value low-maintenance living. The home is freehold, has mains gas central heating with radiators, double glazing and fast broadband and mobile signal.
There are clear benefits for family living: a decent-sized garden, contemporary kitchen and an adaptable garden room for play or entertaining. Be aware of the material considerations: internal floorspace is limited and there is only one bathroom. The wider neighbourhood is classed as more deprived and the nearest secondary school currently carries an inadequate Ofsted rating, which may matter for older children.
Overall this is a tidy, move-in ready terrace that prioritises modern finishes and outdoor space over large internal rooms. It will suit buyers seeking a recently updated home with a practical garden and good connectivity, rather than those needing extra living square footage or top-performing local secondary schools.



































































































































