Part-let mixed-use building with extant planning and large car park — for experienced investors/developers..
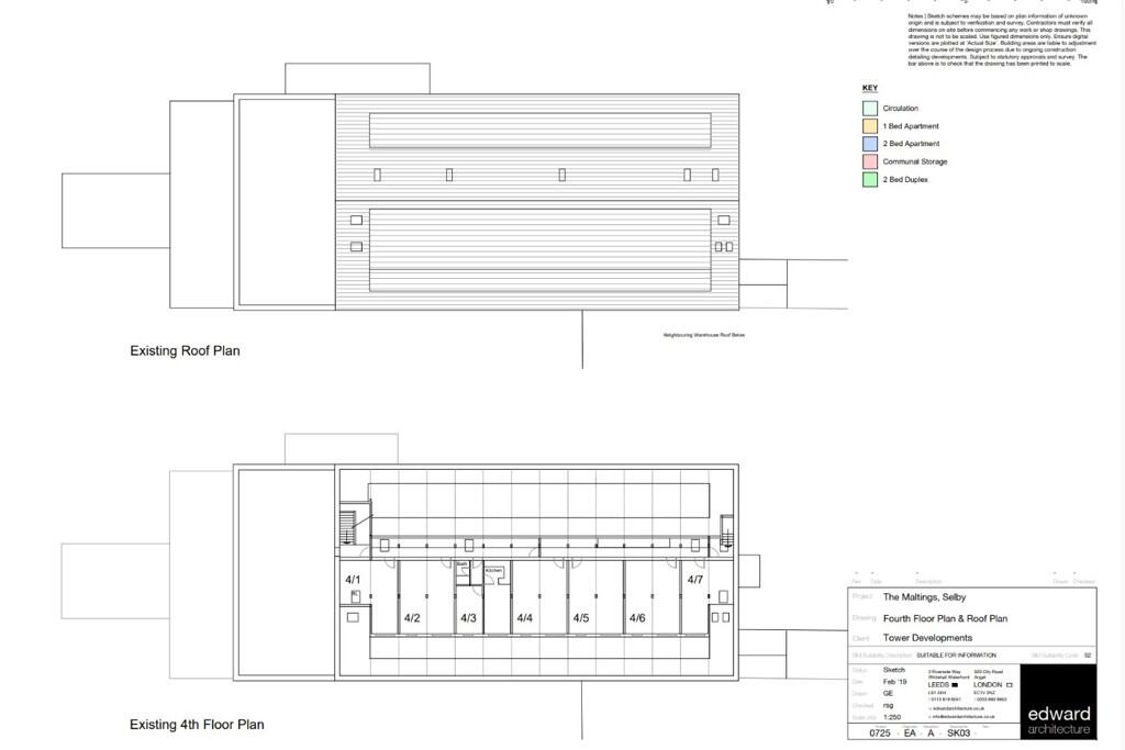
- Part-income producing: 23 let flats generating c. £134,640 pa
- Extant planning for 18 additional flats and commercial units (ref 2019/0961/FULM)
- Large site (0.36 ha) with substantial car park and development potential
- Sold freehold by online auction (closes 26 Nov 2025)
- Property in deprived area with high local crime rate
- Vacant lower floors and former commercial/derelict areas need full refurbishment
- Projected rental uplift significant but subject to buyer due diligence
- Energy Performance Certificate TBC; allow budget for compliance works
A substantial mixed-use block in central Selby offering immediate rental income and significant development upside. The third and fourth floors already produce income from 23 self-contained flats (gross rent c. £134,640 p.a.); planning consent exists for conversion of the vacant lower floors to a further 18 flats plus commercial units, creating a consolidated residential scheme. The site includes a large car park and generous plot (0.36 ha), presenting multiple options for densification or reconfiguration (STP).
This lot suits investors and developers who can manage a major conversion project and navigate an auction purchase. The property has extant planning (2019/0961/FULM, granted 2022) for residential conversion of ground, first and second floors; further scope is described for duplexing, acquiring adjacent land and developing the car park (all subject to planning). The building shows signs of commercial dereliction and will require capital expenditure to complete conversions and refurbishments.
Material considerations are clear: the site is in a deprived area with a high local crime rate and transitional neighbourhood demographics, which may affect rental levels and management costs. The sale is by public online auction (bidding opens 25 Nov, closes 26 Nov 2025) and prospective buyers must review the legal pack and addenda. Energy performance details are to be confirmed. Buyers should allow for substantial refurbishment, possible remediation and active asset management to realise projected income.
2 bedroom property for sale in New Street, Selby, YO8 — £135,000 • 2 bed • 2 bath • 355 ft²
Property for sale in New Street, Selby, North Yorkshire, YO8 4PT, YO8 — £135,000 • 1 bed • 1 bath • 355 ft²
3 bedroom end of terrace house for sale in 15 Carr Street, Selby, Yorkshire YO8 8AW, YO8 — £100,000 • 3 bed • 1 bath • 783 ft²
Residential development for sale in Ousegate, Selby, YO8 — £160,000 • 4 bed • 2 bath • 1600 ft²
Property for sale in Gowthorpe, Selby, YO8 — £565,000 • 1 bed • 1 bath • 6500 ft²
2 bedroom terraced house for sale in 3 Milton Place, Selby, North Yorkshire, YO8 4HH, YO8 — £90,000 • 2 bed • 1 bath • 700 ft²


































































