ME2 3TD - 3 bedroom terraced house for sale in Allington Drive, Stroo…

View on Property Piper

3 bedroom terraced house for sale in Allington Drive, Strood, Rochester, Kent. ME2

Summary - 124 ALLINGTON DRIVE, STROOD, ROCHESTER ME2 3TD

3 bed 1 bath Terraced

No forward chain — immediate completion possible
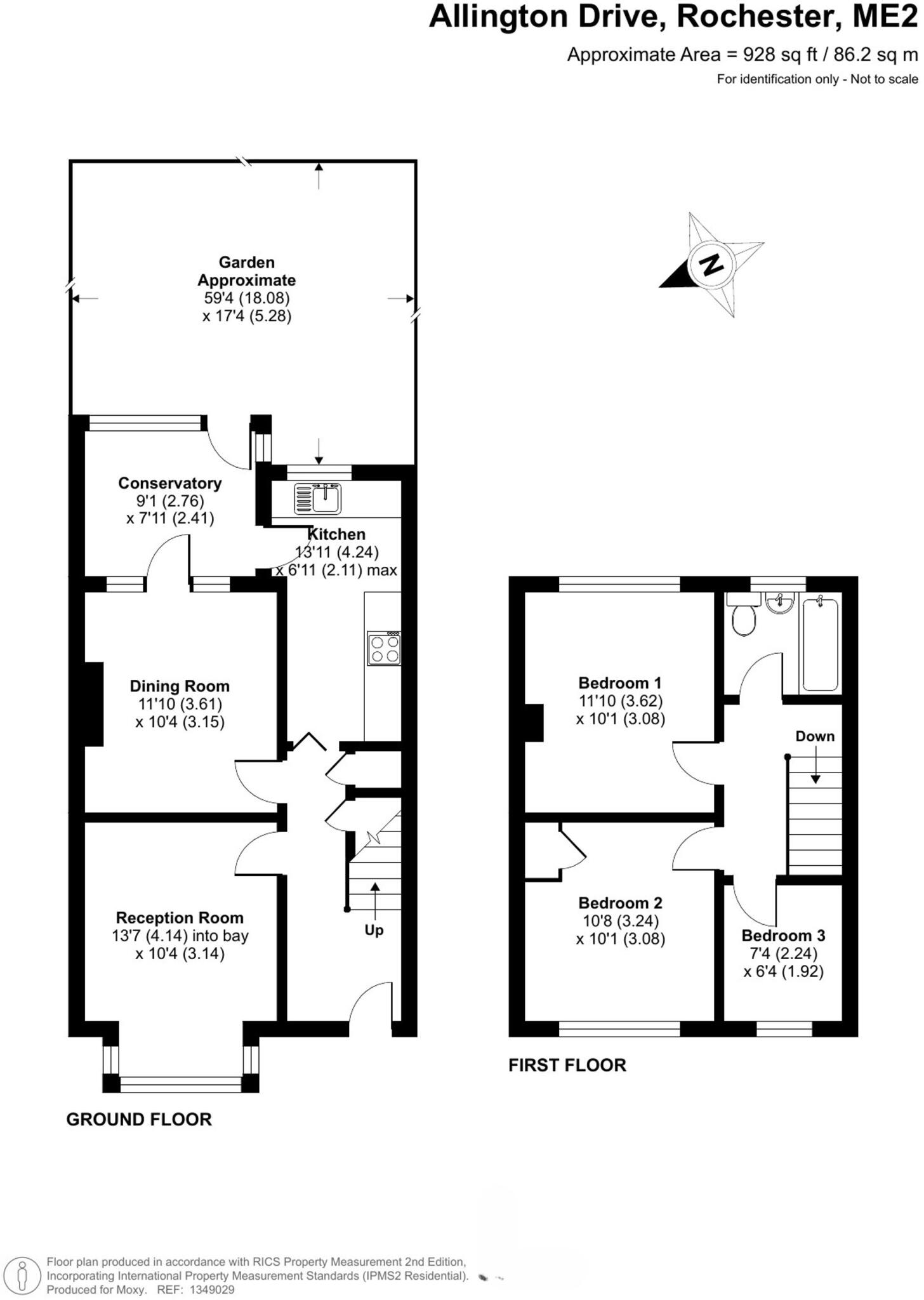
No forward chain and a generous east-facing garden make 124 Allington Drive an appealing project for growing families or those seeking good value in Strood. The house offers a traditional layout with a front living room, separate dining room, kitchen and conservatory, providing clearly defined spaces that can be updated to modern tastes. A front driveway and off-street parking add everyday convenience.

The property requires modernisation throughout, which presents scope to reconfigure rooms, update services and personalise finishes. With three bedrooms and a single first-floor bathroom across approximately 926 sq ft, this home suits buyers prepared to invest in renovation to increase comfort and resale value. EPC Grade C and mains gas heating are practical positives, but buyers should budget for cosmetic and systems upgrades.

Location is a strong selling point: well-connected by road and rail, close to several Good-rated primary and secondary schools, and near local amenities. The rear garden extends to around 60ft and faces east, offering space for play, landscaping or future extension subject to permissions. Legal notes: a 1959 conveyance contains covenants—prospective buyers must obtain independent legal and survey advice and verify tenure and property details before exchange.

Property Details

Image Descriptions

Floorplan Description

Rooms

Textual Property Features

Detected Visual Features

EPC Details

Nearby Schools

Nearest Bars And Restaurants

,,,,}

Nearest General Shops

,,}

Nearest Grocery shops

,,}

Nearest Supermarkets

,,}

Nearest Religious buildings

,,}

Nearest Medical buildings

,,,}

Nearest Airports

,}

Nearest Leisure Facilities

,,,,}

Nearest Tourist attractions

,,}

Nearest Train stations

,,,,}

Nearest Bus stations and stops

,,,,}

Nearest Hotels

,,}

Tags

Local Market Stats

Meta

High Res Images

Compatible Images

Low res Images

Thumbnails

Raw Images

High Res Floorplan Images

Compatible Floorplan Images

Low res Floorplan Images

FloorplanImages Thumbnail

Raw Floorplan Images