**Standout Features:**
- Newly renovated, unbroken freehold investment building
- Located on prestigious Collingham Road, Earls Court, SW5
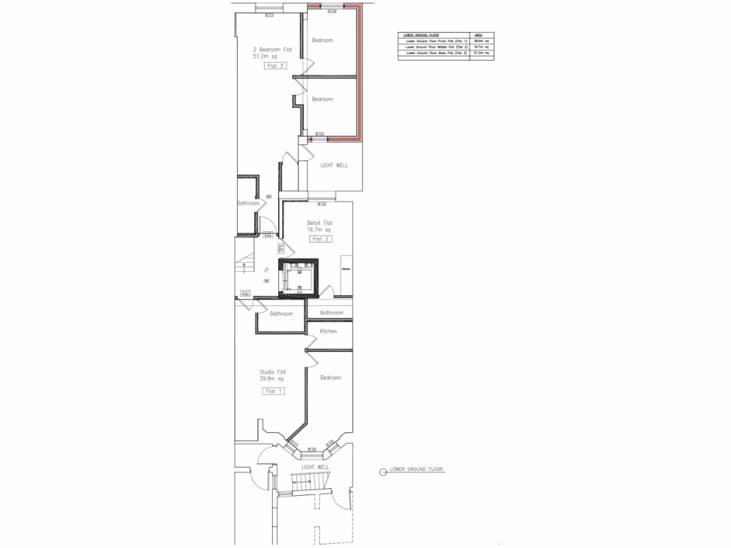
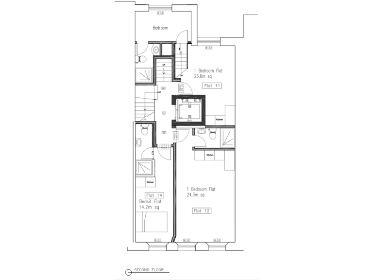
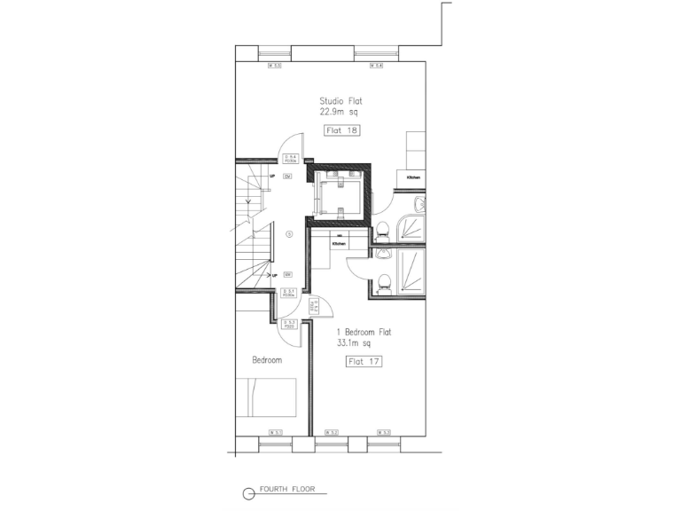
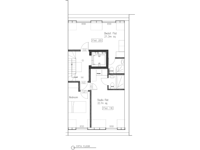
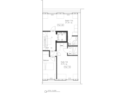
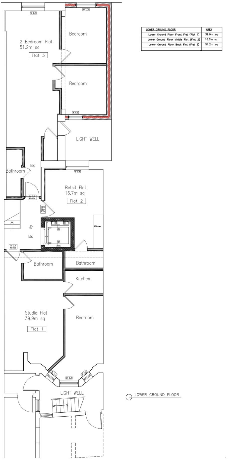
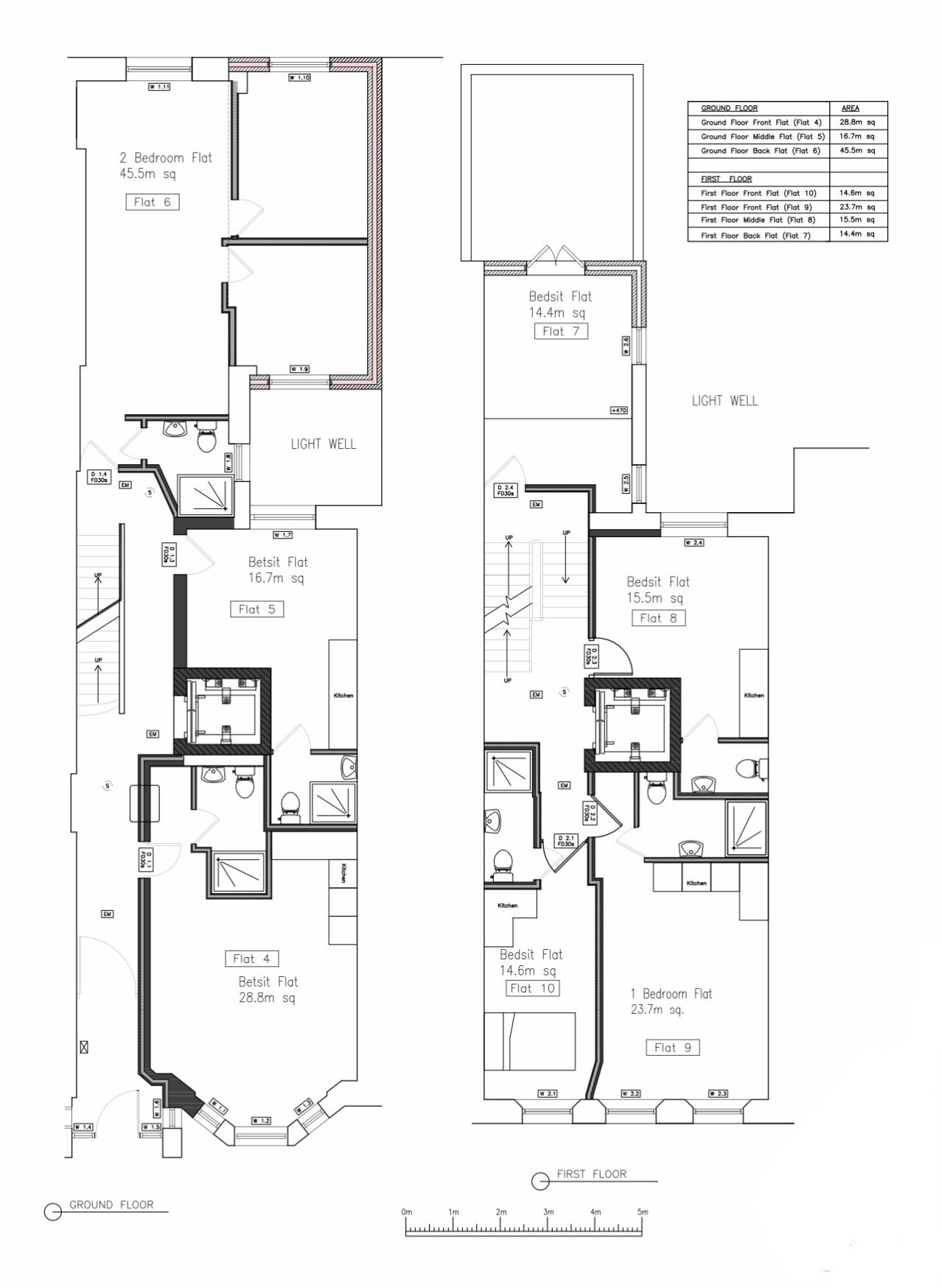
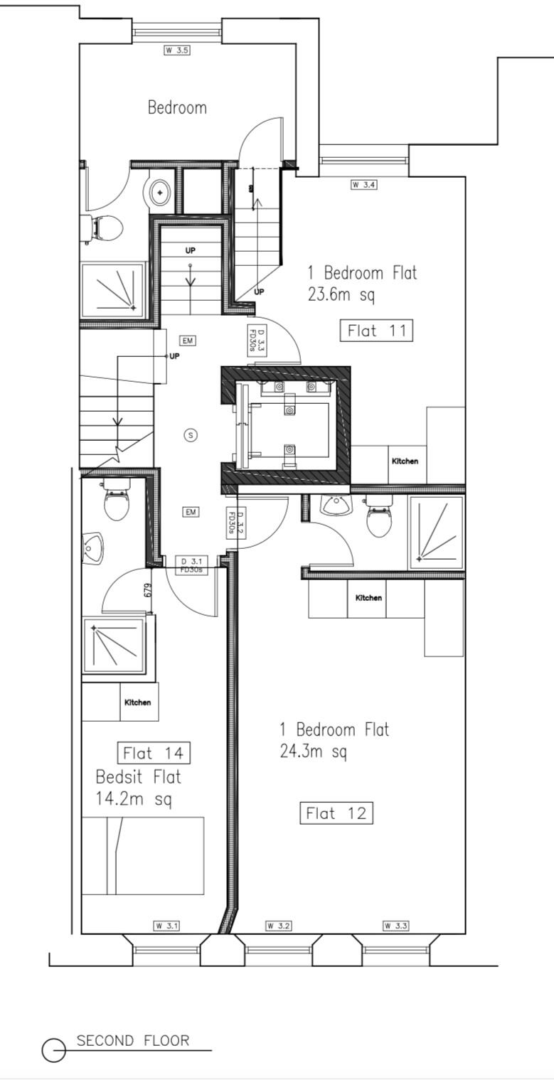
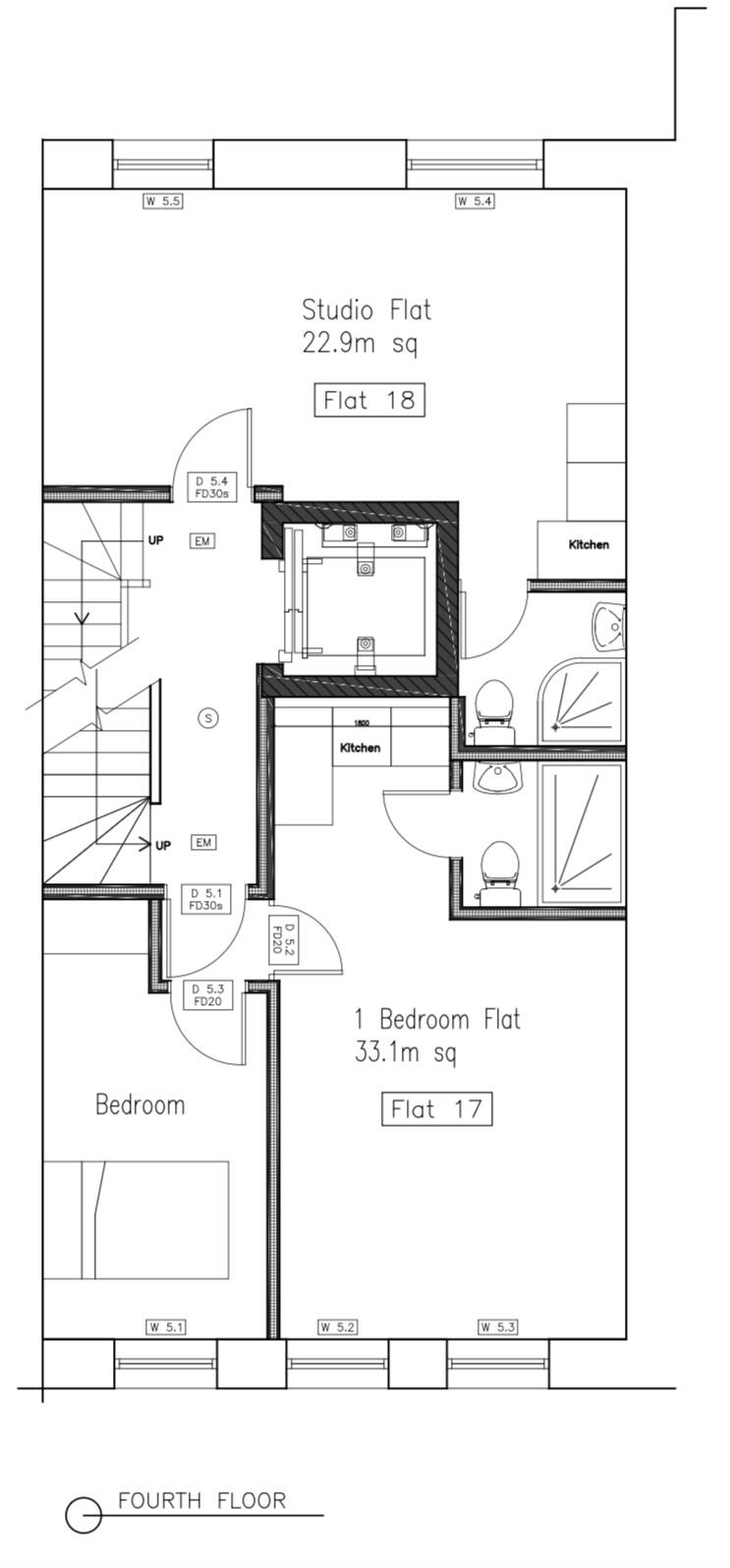
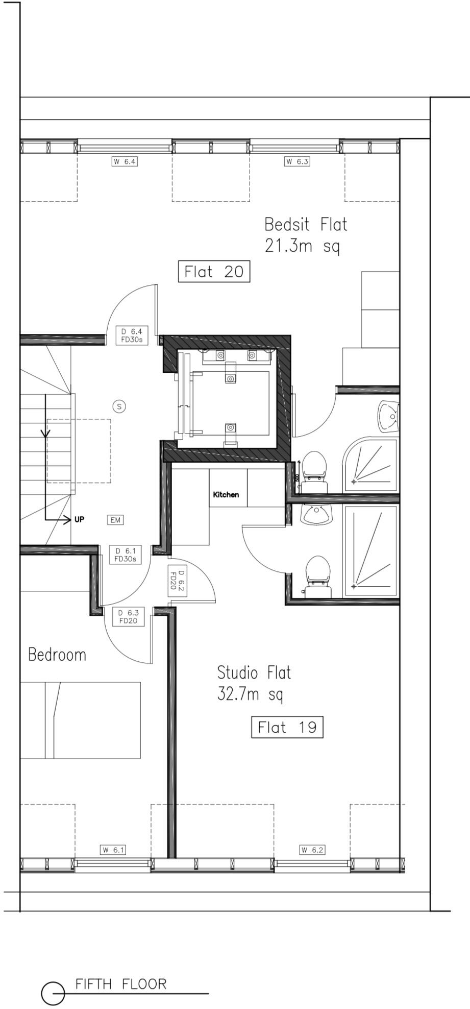
- 19 self-contained flats (studio, 1-bed, 2-bed) spread over 6 floors
- Total net internal area of approximately 5,439 sq ft
- Strong gross annual rental income of £431,080
- Prime location near Imperial College, Hyde Park, and major transport links
**Summary:**
Discover a unique investment opportunity in the thriving heart of Earls Court with this newly renovated Victorian terrace building. This impressive freehold contains 19 self-contained flats, mixing studios, one-bedroom, and two-bedroom units, generating an attractive annual income of £431,080. Spanning approximately 5,439 sq ft over six floors, the property showcases high ceilings, large windows, and classic architectural features combined with contemporary comforts, making it an ideal investment for both institutional and private buyers.
Positioned in a vibrant, multi-ethnic locale, this property offers convenient access to transport via Earl's Court and Gloucester Road stations and is just moments away from the cultural richness of South Kensington and Hyde Park. With solid reversionary potential and the demand for quality rental properties in this desirable area, the opportunity to secure this investment won't linger for long. Excellent mobile connectivity and fast broadband further enhance the appeal for potential renters, while the closeness to esteemed independent schools adds family-friendly value to the location. Don't miss this chance to invest in a turnkey asset with long-term growth prospects.
 22 bedroom property for sale in Collingham Road, Earls Court. SW5 — £8,000,000 • 22 bed • 22 bath • 4779 ft²
 22 bedroom property for sale in Collingham Road, Earls Court. SW5 — £8,000,000 • 22 bed • 22 bath • 4779 ft² 19 bedroom mixed use property for sale in Collingham Road, Kensington, London, SW5 — £9,000,000 • 19 bed • 1 bath • 6428 ft²
 19 bedroom mixed use property for sale in Collingham Road, Kensington, London, SW5 — £9,000,000 • 19 bed • 1 bath • 6428 ft² Commercial property for sale in 1 Philbeach Gardens, Earls Court, London SW5 9DY, SW5 — £6,000,000 • 19 bed • 1 bath • 2656 ft²
 Commercial property for sale in 1 Philbeach Gardens, Earls Court, London SW5 9DY, SW5 — £6,000,000 • 19 bed • 1 bath • 2656 ft² Commercial property for sale in Longridge Road, Earls Court, SW5 — £10,000,000 • 18 bed • 1 bath • 3929 ft²
 Commercial property for sale in Longridge Road, Earls Court, SW5 — £10,000,000 • 18 bed • 1 bath • 3929 ft² Residential development for sale in Cromwell Road, London, SW5 — £6,500,000 • 1 bed • 1 bath • 6226 ft²
 Residential development for sale in Cromwell Road, London, SW5 — £6,500,000 • 1 bed • 1 bath • 6226 ft²






















































