Modern new-build plot beside Sherwood Forest, ideal for growing families.
New-build three-storey semi-detached family home
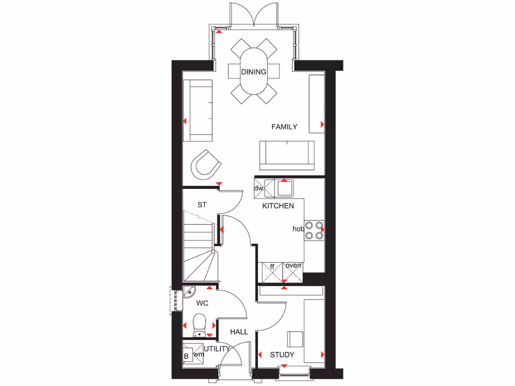
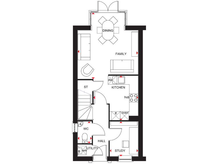
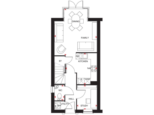
Open-plan kitchen/dining/family area with glazed bay and French doors
West-facing garden for afternoon sun and outdoor living
Dedicated downstairs home office (study) and cloakroom
Main bedroom with en suite; additional family bathroom upstairs
Two off-street parking spaces included
Modest total area (852 sq ft) — relatively compact rooms overall
Tenure not specified; confirm ownership and any development fees
This three-storey semi-detached home in Edwinstowe offers practical family living across 852 sq ft with flexible living space and easy access to Sherwood Forest’s open spaces. The ground floor’s open-plan kitchen/dining/family area opens through a glazed bay and French doors to a west-facing garden, making it a bright spot for afternoon sun and family meals. A dedicated downstairs study and cloakroom add useful everyday convenience.
Upstairs provides a spacious lounge and a main bedroom with en suite; two further double bedrooms occupy the top floor alongside a family bathroom. The property includes two off-street parking spaces and is a new-build, which should mean modern fixtures and energy-efficient construction. The development offers nearby play areas and well-rated local schools, making this location family-friendly.
Practical points to note: the overall floor area is modest at 852 sq ft, and the kitchen is compact compared with the open-plan dining area. Tenure is not specified and should be confirmed before exchange. The house sits on the town fringe with rural character—quiet and scenic, but some everyday amenities may be a short drive away.
If you want a modern, energy-efficient family home in a development beside extensive countryside, this plot provides ready-made comfortable living with good schooling nearby; confirm tenure, exact service/maintenance arrangements, and room measurements at viewing.
3 bedroom semi-detached house for sale in Ollerton Road,
Edwinstowe,
Mansfield,
Nottinghamshire,
NG21 9PS, NG21 — £274,995 • 3 bed • 1 bath • 731 ft²
3 bedroom terraced house for sale in Edwinstowe,
NG21 — £284,995 • 3 bed • 1 bath • 700 ft²
3 bedroom semi-detached house for sale in Edwinstowe,
NG21 — £299,995 • 3 bed • 1 bath • 806 ft²
3 bedroom detached house for sale in Edwinstowe,
NG21 — £329,995 • 3 bed • 1 bath • 847 ft²
3 bedroom detached house for sale in Edwinstowe,
NG21 — £329,995 • 3 bed • 1 bath • 847 ft²
3 bedroom semi-detached house for sale in Ollerton Road,
Edwinstowe,
Mansfield,
Nottinghamshire,
NG21 9PS, NG21 — £284,995 • 3 bed • 1 bath • 731 ft²






































































