Small, single-storey coastal bungalow with two conservatories and off-street parking.
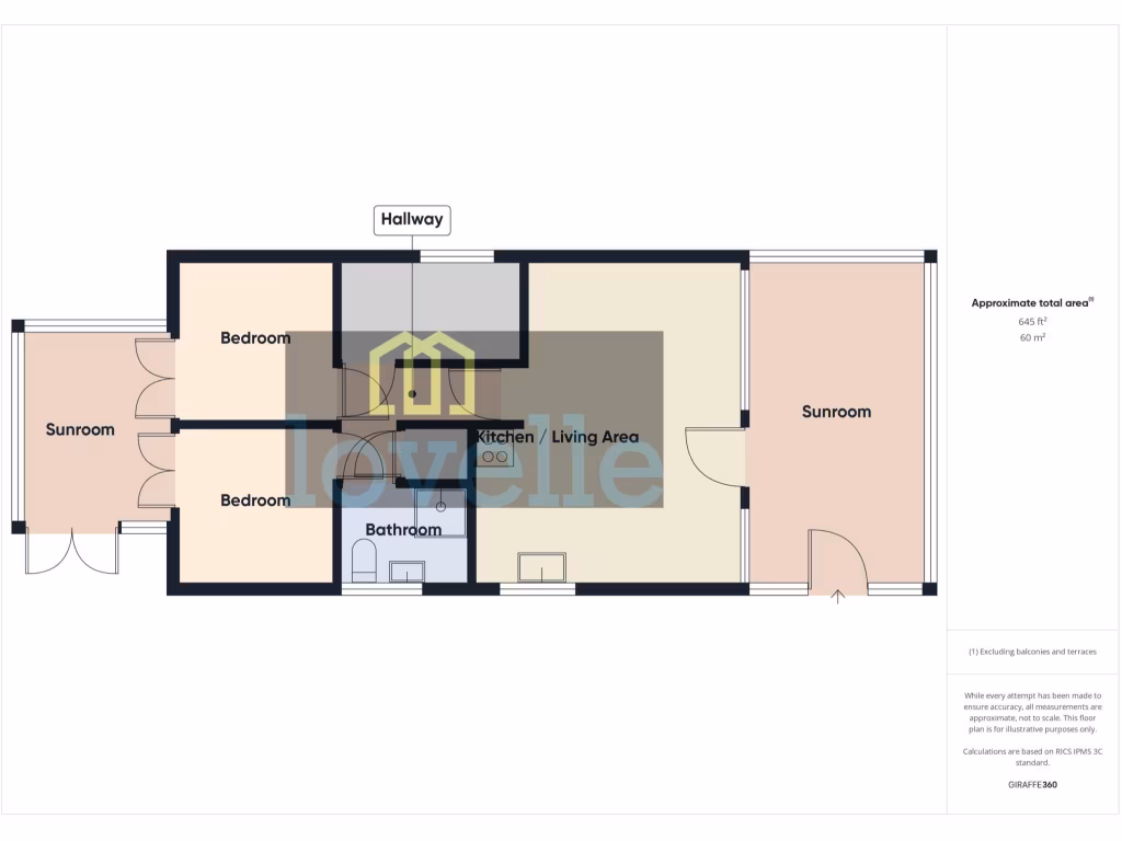
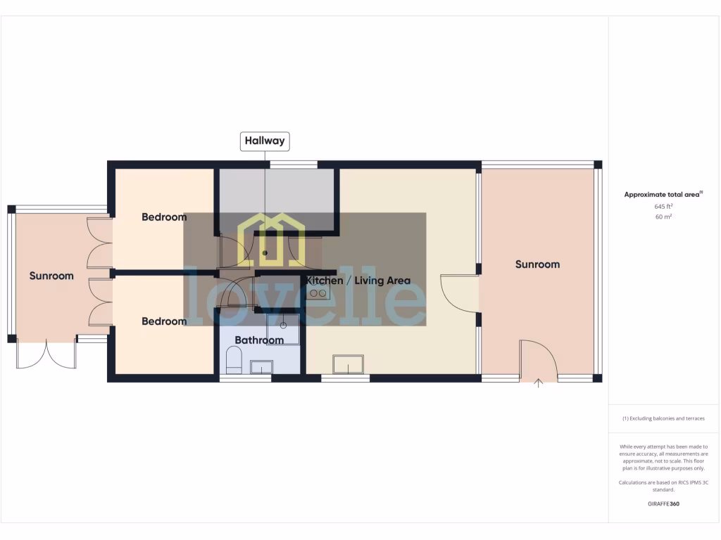
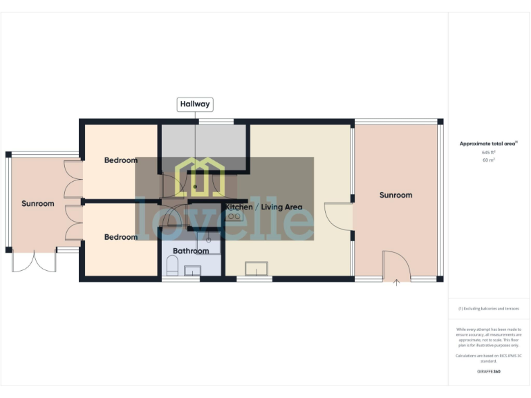
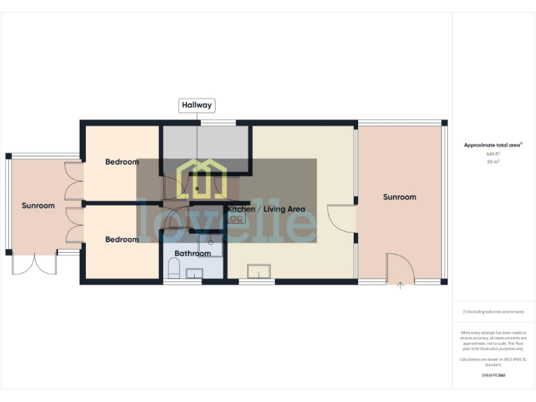
Three bedrooms in a compact single-storey layout
Set in the quiet coastal village of Anderby Creek, this compact three-bedroom detached bungalow offers simple, single-storey living within a residential park close to the beach. The footprint is modest (approx. 645 sq ft) and the layout makes the most of two glazed conservatories that add flexible living space and provide open-field outlooks to the rear.
Practical positives include full insulation, off-street parking, a decent plot for the setting, and low flood risk. Tenure is freehold and council tax is very cheap — appealing for buyers seeking a low-running-cost holiday or downsizing home. Mobile signal is excellent for the area, though broadband speeds are slow.
Buyers should note this is a small, park-style unit (likely a park home/static caravan character) with neighbouring single-storey units close by. The EPC is rated F, so energy performance is poor despite insulation; the property is best suited to buyers prepared to accept compact accommodation and to carry any further energy or cosmetic improvements.
Overall this dwelling will suit someone wanting a low-maintenance coastal base, a retirement/downsizing option or a holiday home close to the beach. It offers immediate, manageable accommodation with potential to improve comfort and efficiency over time.
2 bedroom detached bungalow for sale in Sea Road, Anderby, PE24 — £325,000 • 2 bed • 1 bath • 1080 ft²
3 bedroom bungalow for sale in Lakeside, Anderby Creek, Skegness, Lincolnshire, PE24 — £189,950 • 3 bed • 1 bath
3 bedroom detached bungalow for sale in Sandy Lane, Anderby Creek, Skegness, PE24 — £690,000 • 3 bed • 1 bath • 1776 ft²
3 bedroom detached bungalow for sale in Beresford Avenue, Skegness, PE25 — £255,000 • 3 bed • 1 bath • 743 ft²
4 bedroom bungalow for sale in Hides Close, Ingoldmells, PE25 — £275,000 • 4 bed • 2 bath • 840 ft²
3 bedroom semi-detached bungalow for sale in The Strand, Mablethorpe, LN12 — £238,950 • 3 bed • 1 bath • 679 ft²






















































































