Five-bedroom family living with orangery dining and garage in a desirable Lichfield lane.
Generous corner plot with private front and rear gardens
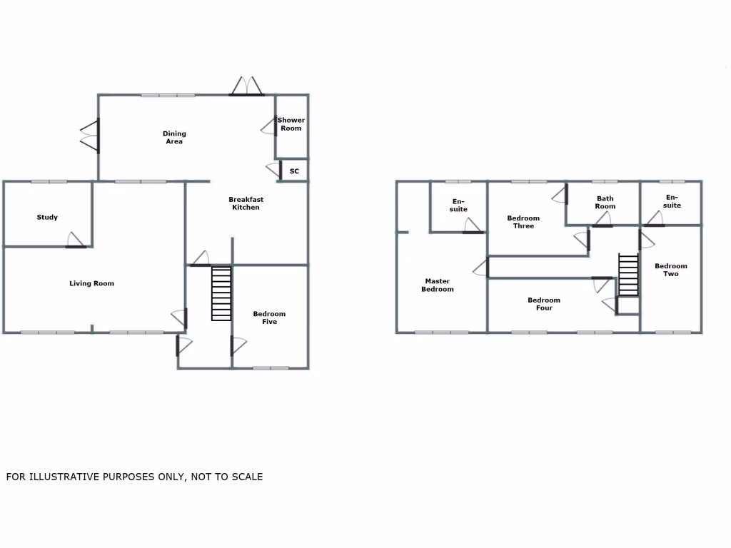
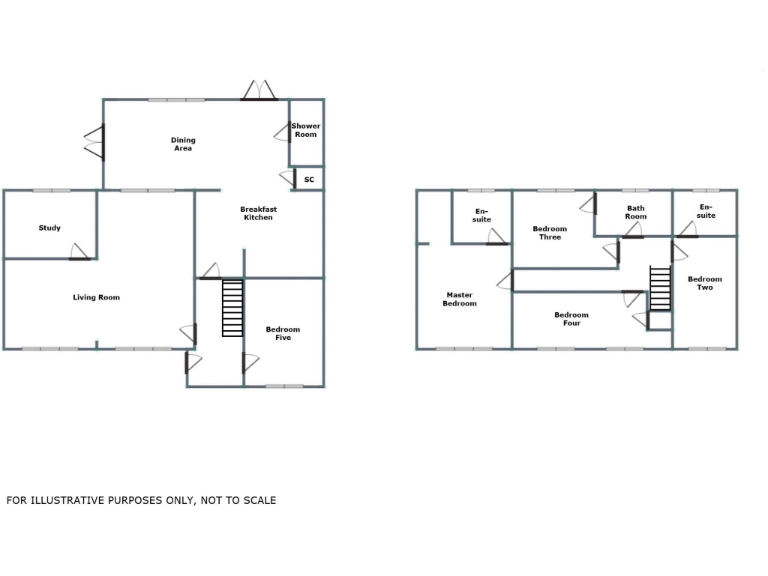
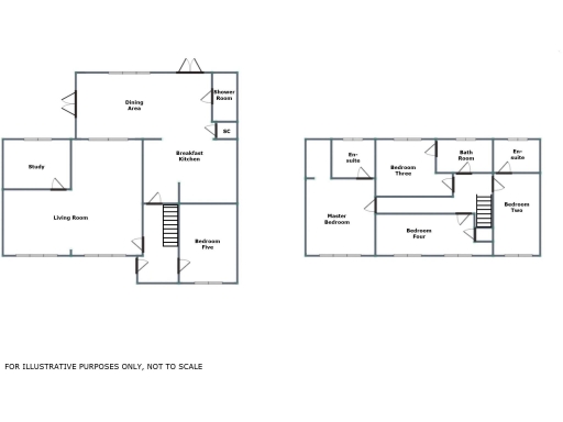
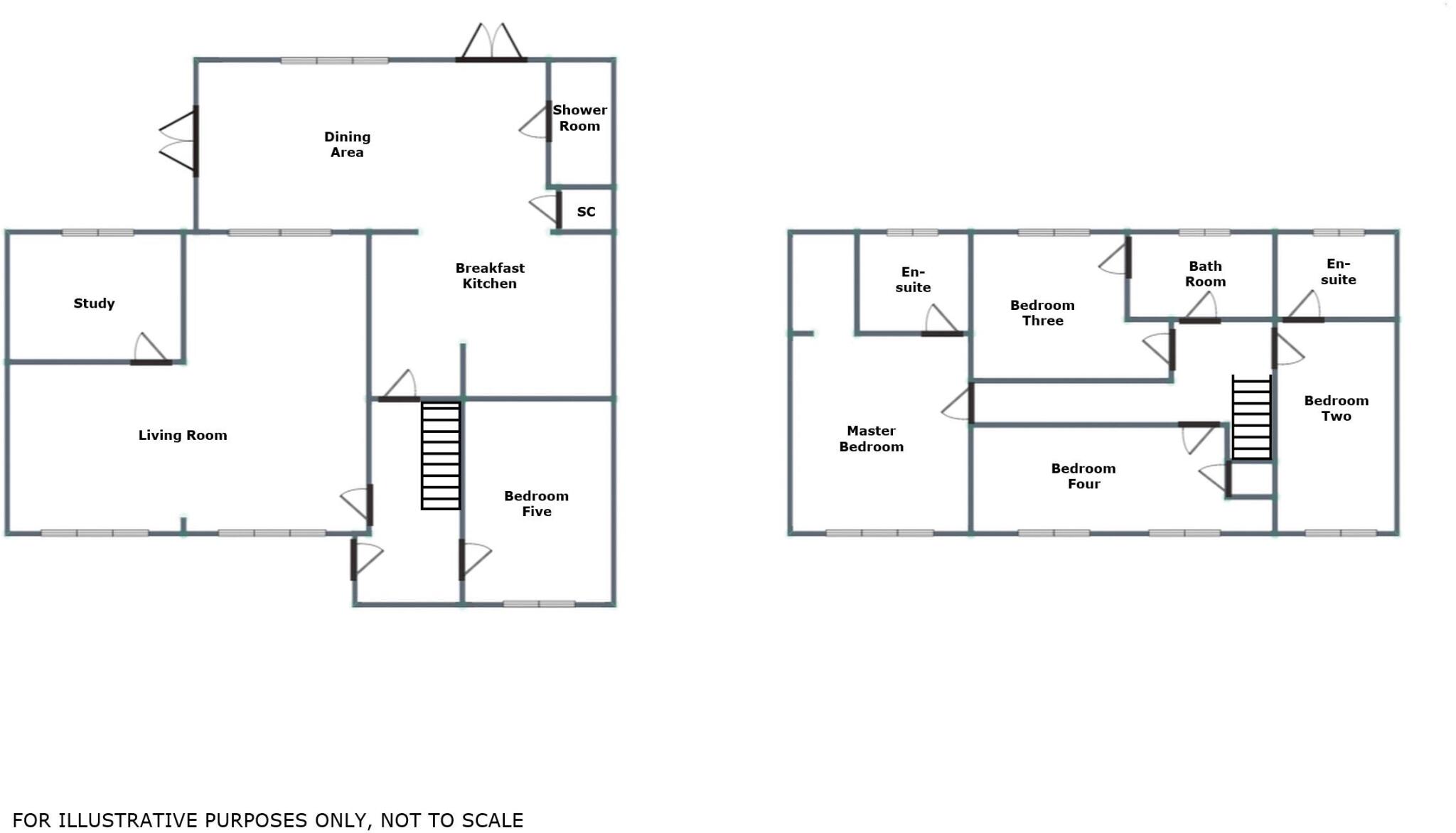
Set on a generous corner plot on Shortbutts Lane, this extended five/six-bedroom detached home is arranged for flexible family living. The striking open-plan kitchen and orangery create a bright hub for daily life and entertaining, while four bathrooms and multiple reception rooms suit multi-generational or home-working households. Practical features include a garage, side parking, UPVC double glazing and gas central heating throughout.
Rooms vary in shape and size after substantial side and rear extensions; some bedrooms are compact while others provide generous proportions and two en-suites. The orangery benefits from a skylight and underfloor heating, making it a comfortable year-round dining space. The private front and rear gardens offer lawned and paved areas with potential to extend further if required.
Buyers should note a couple of material points: tenure is not specified in the particulars and local recorded crime is above average. The layout’s irregular room sizes may suit buyers looking for adaptable space rather than perfectly uniform room dimensions. Fast broadband and a very affluent wider area are positives for those working from home or seeking long-term value.
Overall this is a well-presented family home that balances immediate liveability with further potential. It will appeal to larger families seeking multiple bathrooms and flexible accommodation, or buyers wanting a bright, modern kitchen–dining hub and good outdoor space in a desirable Lichfield lane.
4 bedroom detached house for sale in The Hedgerows, Shortbutts Lane, Lichfield, WS14 — £475,000 • 4 bed • 2 bath • 1507 ft²
3 bedroom detached house for sale in The Paddock, Lichfield, WS14 — £375,000 • 3 bed • 2 bath • 991 ft²
5 bedroom detached house for sale in Shortbutts Close, Lichfield, WS14 — £895,000 • 5 bed • 4 bath • 1893 ft²
5 bedroom detached house for sale in Fosseway, Lichfield, WS14 — £1,250,000 • 5 bed • 4 bath • 3000 ft²
3 bedroom detached house for sale in Charnwood Close, Lichfield, WS13 — £595,000 • 3 bed • 2 bath • 1357 ft²
6 bedroom detached house for sale in The Friary, Lichfield, WS13 — £1,195,000 • 6 bed • 3 bath • 3297 ft²


























































































































