Modern turnkey apartment with balcony and secure parking near beaches and amenities.
Newly renovated two-bedroom penthouse, ready to let or occupy
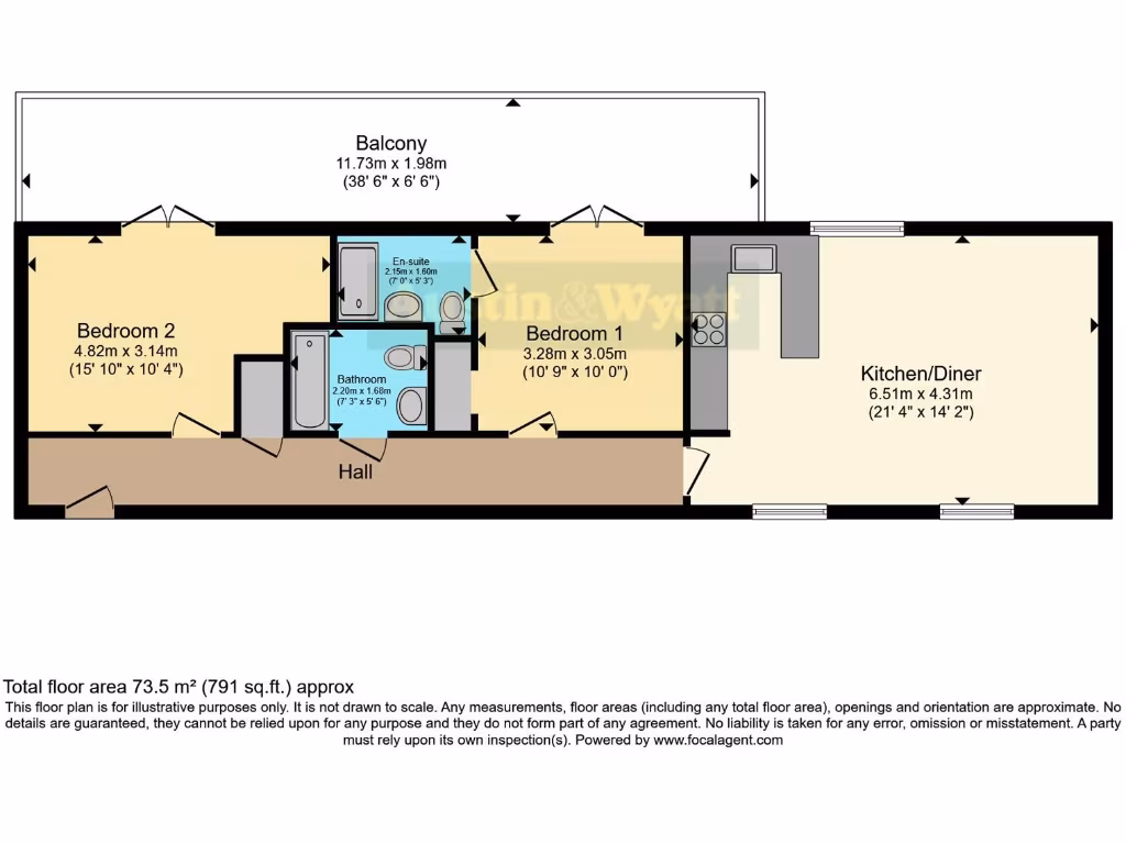
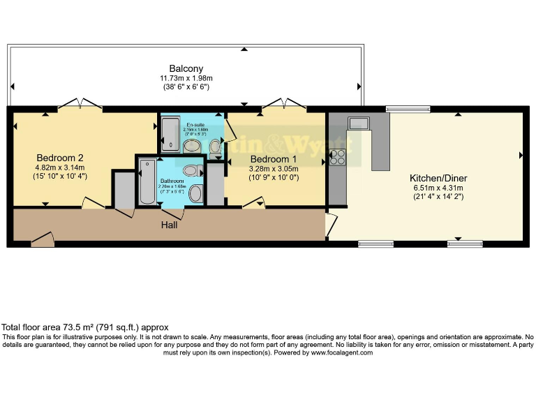
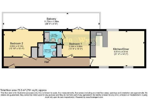
This newly renovated two-bedroom, two-bath penthouse on Commercial Road presents a turnkey, modern apartment in central Bournemouth. At about 791 sq ft it offers open-plan living, a private balcony with city views, and secure off-street parking — features that appeal to short-term and longer-term renters alike.
The flat was refurbished to a high standard and includes contemporary bathrooms, a fully fitted kitchen, and double glazing. Broadband speeds and mobile signal are excellent, supporting students and professionals who need fast connectivity. Constructed in the mid-2000s, the building fabric includes filled cavity walls and recent glazing upgrades.
Important considerations for buyers and investors: the property is in an area classified as deprived with very high local crime levels, and the heating is electric room heaters rather than gas central heating, which can mean higher running costs. Tenure is unknown, which may affect mortgage options and should be verified early in the buying process.
For investors targeting Bournemouth’s rental market, the apartment’s modern finish, two bathrooms, parking and proximity to beaches, shops and transport links offer strong lettability. However, factor in the neighbourhood profile and potential premium on energy costs when assessing yields and re-let strategy.
2 bedroom penthouse for sale in St. Michaels Road, Bournemouth, Dorset, BH2 — £399,950 • 2 bed • 2 bath • 955 ft²
2 bedroom penthouse for sale in Suffolk Road, Bournemouth, BH2 — £210,000 • 2 bed • 2 bath • 678 ft²
2 bedroom penthouse for sale in Tregonwell Road, Bournemouth, BH2 — £270,000 • 2 bed • 2 bath • 636 ft²
2 bedroom flat for sale in Foxdale Court, Bournemouth, Dorset, BH2 5NN, BH2 — £200,000 • 2 bed • 2 bath
3 bedroom apartment for sale in St Valerie Road, Dorset, Meyrick Park, Bournemouth, BH2 — £550,000 • 3 bed • 2 bath • 1270 ft²
2 bedroom penthouse for sale in Bournemouth Centre, BH2 — £380,000 • 2 bed • 2 bath • 671 ft²










































































