**Standout Features:**
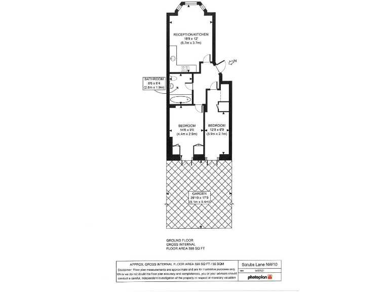
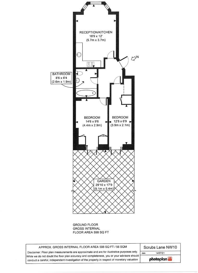
- Ground floor garden flat measuring 598 sq.ft (56 sq.m)
- 2 bedrooms, one with built-in wardrobes
- Spacious 18ft reception room with open-plan kitchen
- 30ft private garden, perfect for outdoor relaxation
- Let at £1,789.06 pcm (£21,468.72 pa) with long-term tenant
- Close to Kensal Green and Willesden Junction stations
- Freehold (share of) with 983 years remaining on the lease
- Council Tax Band ‘C’
**Potential Concerns:**
- Average room sizes may suit smaller families or couples
- Service charge of £2,168.34 annually
- High crime rate in the area, which may be a consideration for families
This charming ground floor garden flat in the vibrant NW10 postcode is an ideal rental investment opportunity and a cozy home option for young families and first-time buyers. Enjoy the blend of modern living and period charm, featuring high ceilings, spacious reception with an open-plan kitchen, and an inviting garden perfect for sun-soaked afternoons or weekend barbecues. Accessible to both Kensal Green and Willesden Junction stations, commuting to the city is convenient, enhancing its appeal for tenants. While the high crime rate in the area may be a consideration, the property’s positive rental yield and long lease provide lucrative potential. With modern amenities and available to investors at an attractive price, this property won’t stay on the market for long. Seize the opportunity to explore its possibilities today!
2 bedroom flat for sale in Burrows Road, Kensal Green, NW10 5SJ, NW10 — £675,000 • 2 bed • 1 bath • 637 ft²
2 bedroom flat for sale in Harlesden Gardens, London, NW10 — £750,000 • 2 bed • 2 bath • 921 ft²
2 bedroom flat for sale in Maybury Gardens, London, NW10 — £550,000 • 2 bed • 1 bath • 593 ft²
2 bedroom apartment for sale in Harlesden Gardens, London, NW10 — £375,000 • 2 bed • 1 bath • 717 ft²
2 bedroom flat for sale in Tunley Road, London, NW10 — £350,000 • 2 bed • 1 bath • 636 ft²
2 bedroom apartment for sale in Bathurst Gardens, London, NW10 — £795,000 • 2 bed • 1 bath • 850 ft²






































