### Key Features:
- **New Build**: Constructed in 2023 with high-end finishing
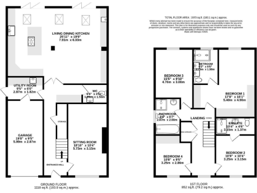
- **Spacious Detached Home**: Approximately 1,970 sq ft with 4 double bedrooms and 3 modern bathrooms
- **Open Plan Living**: Expansive living/dining area featuring bi-folding doors opening onto a large south-facing garden with stunning views
- **High-Tech Amenities**: Integrated speaker system, bespoke bar with wine fridge, solar panels, and an air source heat pump
- **Planning Permission**: Garage conversion approved for additional accommodation with potential for a new detached garage and garden room
- **Parking**: Room for several vehicles with a brick-paved driveway and integrated garage
- **Community Access**: Located near Alderley Park with access to parks and local amenities
---
Nestled within the exclusive Alderley Park Development, this newly built, detached family home offers an exceptional living experience. Updated to a high specification, it boasts an expansive open-plan living space with two sets of bi-folding doors that seamlessly connect the indoors to the picturesque south-facing garden—a perfect spot for family gatherings or relaxation. The heart of the home features a meticulously designed kitchen with integrated NEFF appliances and a bespoke bar area, ideal for entertaining.
This four-bedroom home includes a principal suite with a luxurious en-suite wet room, while the additional double bedrooms offer generous space for family or guests. The property not only promises comfort but also efficiency with modern heating systems including solar panels and an air source heat pump.
For those with future aspirations, planning permission is in place for converting the garage into additional living space, a versatile opportunity for growing families or investors. This property not only caters to your needs today but also leaves room for future customization. With ample parking and a low flood risk, this exclusive home presents the perfect blend of luxury, functionality, and potential—all within a very affluent area.
Don’t miss your chance to own this remarkable property—schedule a viewing today and imagine your future here!







































































































