Town-centre live/work conversion potential near rail links and motorway access.
Freehold three-bedroom mid-terrace with commercial ground floor potential
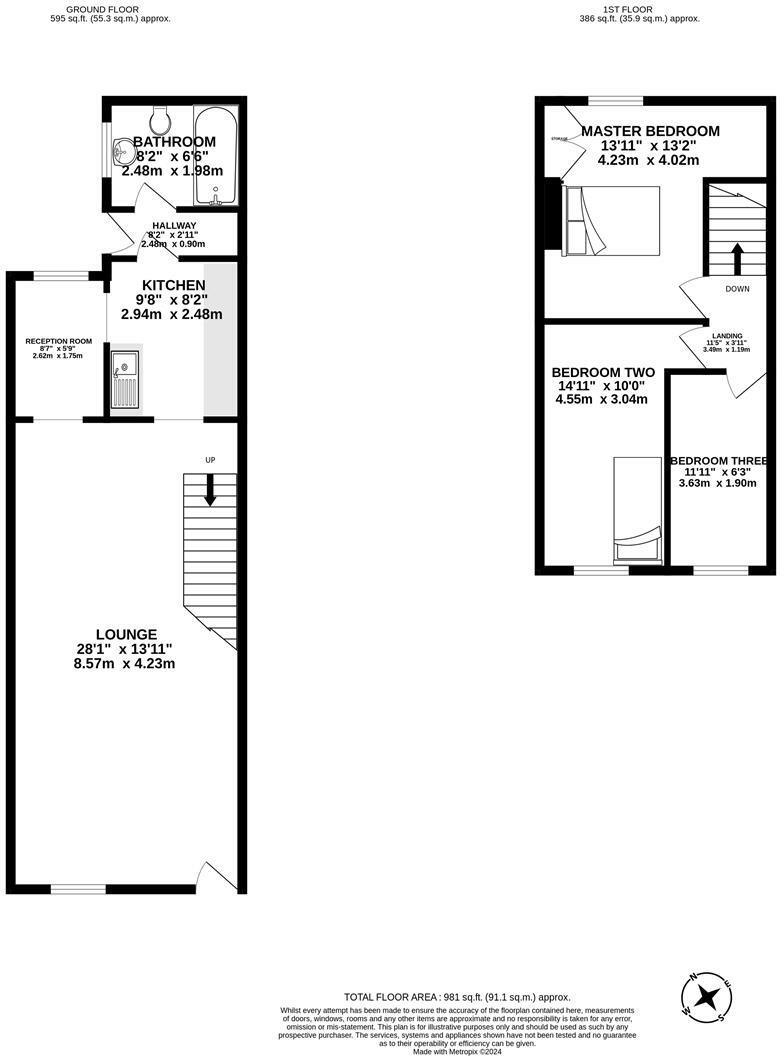
A rare terraced shop/house on Pall Mall offering clear development potential for investors or owner-occupiers wanting a live/work conversion. The ground floor has previously operated as commercial space with a large, open-plan area and separate kitchen and bathroom — ideal for reconfiguring into a modern retail unit with accommodation above, or a single integrated home.
The first floor provides three average-sized bedrooms and a family bathroom, giving good scope for reconfiguration or short-term rental conversion. The property is freehold, mid-terrace, and totals approximately 981 sq.ft, with a small rear yard for low-maintenance outdoor use.
Buyers should be aware this is a renovation project: the property has no central heating system (electric heaters assumed), cavity walls are uninsulated, and it currently holds an EPC rating of G. The surrounding area is classified as deprived and records higher crime levels, which will affect lettability and resale values without substantial improvement or landlord safeguards.
Location is a primary strength — a short walk to Chorley town centre, local amenities and the train station with direct links to Manchester and Preston, plus easy access to the M61/M6. For professionals and investors seeking an inexpensive conversion or refurbishment in a well-connected town centre spot, this property merits a viewing.
2 bedroom detached house for sale in Harrison Road, Chorley, PR7 — £209,995 • 2 bed • 1 bath • 1540 ft²
High street retail property for sale in 62 Chapel Street, Chorley, Lancashire, PR7 — £165,000 • 1 bed • 2 bath • 403 ft²
3 bedroom semi-detached house for sale in Pall Mall, Chorley, Lancashire, PR7 — £110,000 • 3 bed • 1 bath • 996 ft²
3 bedroom terraced house for sale in Blackburn Street, Chorley, PR6 — £139,995 • 3 bed • 1 bath • 782 ft²
2 bedroom terraced house for sale in Fellery Street, Chorley, PR7 — £139,995 • 2 bed • 1 bath • 834 ft²
5 bedroom property for sale in Park Road, Chorley, PR7 — £325,000 • 5 bed • 2 bath • 2873 ft²














































