HX3 5HL - Land for sale in Land Adjacent to 101 Shroggs Road, Halifax…

View on Property Piper

Land for sale in Land Adjacent to 101 Shroggs Road, Halifax, HX3

Summary - 101, Shroggs Road, HALIFAX HX3 5HL

1 bed 1 bath Land

**Standout Features:**
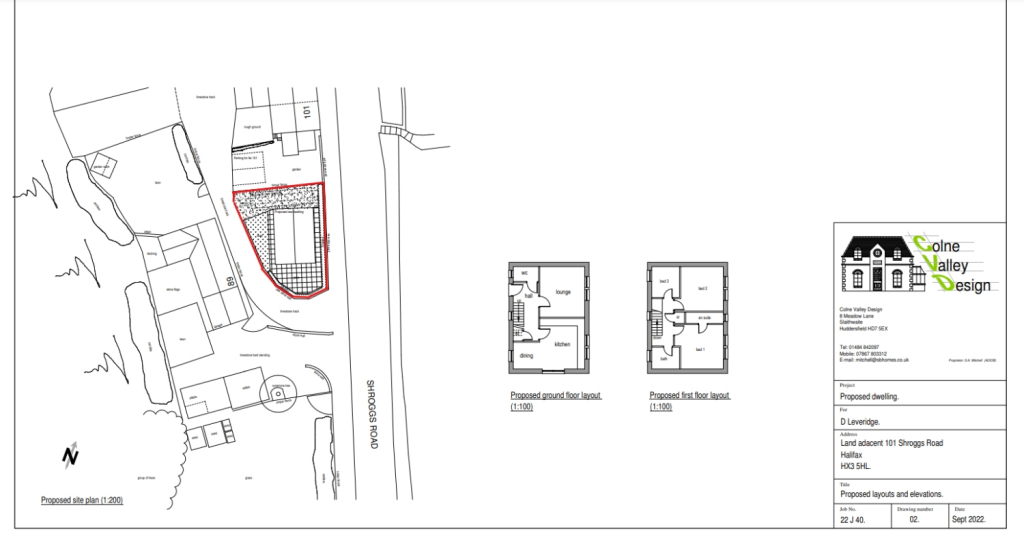
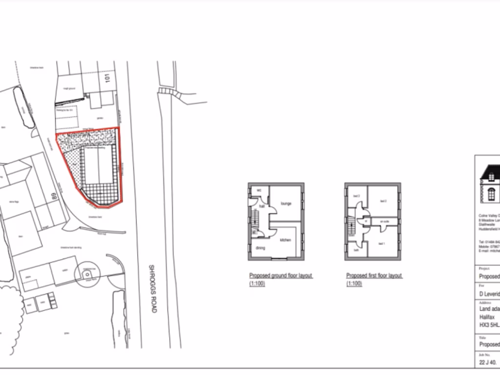
- Small freehold land with approved planning for a 3-bedroom detached property (Calderdale Planning Approval 22/00999).
- Private entrance accessible from the rear lane, enhancing privacy and accessibility.
- Excellent mobile signal and fast broadband speeds available.

**Concerns:**
- The plot features an unkempt garden that requires maintenance, which may need additional investment to transform.
- The surrounding area has a high crime rate and is classified as very deprived, which potential buyers should consider.

Discover an exceptional opportunity to turn your dream home into reality on this parcel of land adjacent to 101 Shroggs Road in Halifax. With planning permission already secured for a modern 3-bedroom detached house, the property offers the perfect canvas for your ideal living space. Enjoy the convenience of a private entrance from the lane, granting you both accessibility and a sense of privacy among bustling urban surroundings.

While the garden currently requires some attention, envision the potential to create a landscaped retreat that reflects your personal style. This plot is nestled within a dynamic community that offers amenities within walking distance, including schools and recreational facilities. However, be aware of the area's higher crime rates and consider those factors while investing.

This small yet promising plot is a rare find within Halifax’s industrious transitions area, making it an enticing prospect for families looking to build their forever home or investors seeking rental potential. With strong local schools—most notably the outstanding Trinity Academy and the North Halifax Grammar School—families will appreciate the educational options available. Don’t miss this unique chance to capitalize on a property with significant future potential!

Property Details

Image Descriptions

Textual Property Features

Detected Visual Features

Nearby Schools

Nearest Bars And Restaurants

,,,,}

Nearest General Shops

,,}

Nearest Grocery shops

,,}

Nearest Supermarkets

,,}

Nearest Religious buildings

,,}

Nearest Medical buildings

,,,}

Nearest Airports

}

Nearest Leisure Facilities

,,,,}

Nearest Tourist attractions

,,}

Nearest Train stations

,,,,}

Nearest Bus stations and stops

,,,,}

Nearest Hotels

,,}

Tags

Local Market Stats

Similar Properties

Meta

High Res Images

Compatible Images

Low res Images

Thumbnails

Raw Images