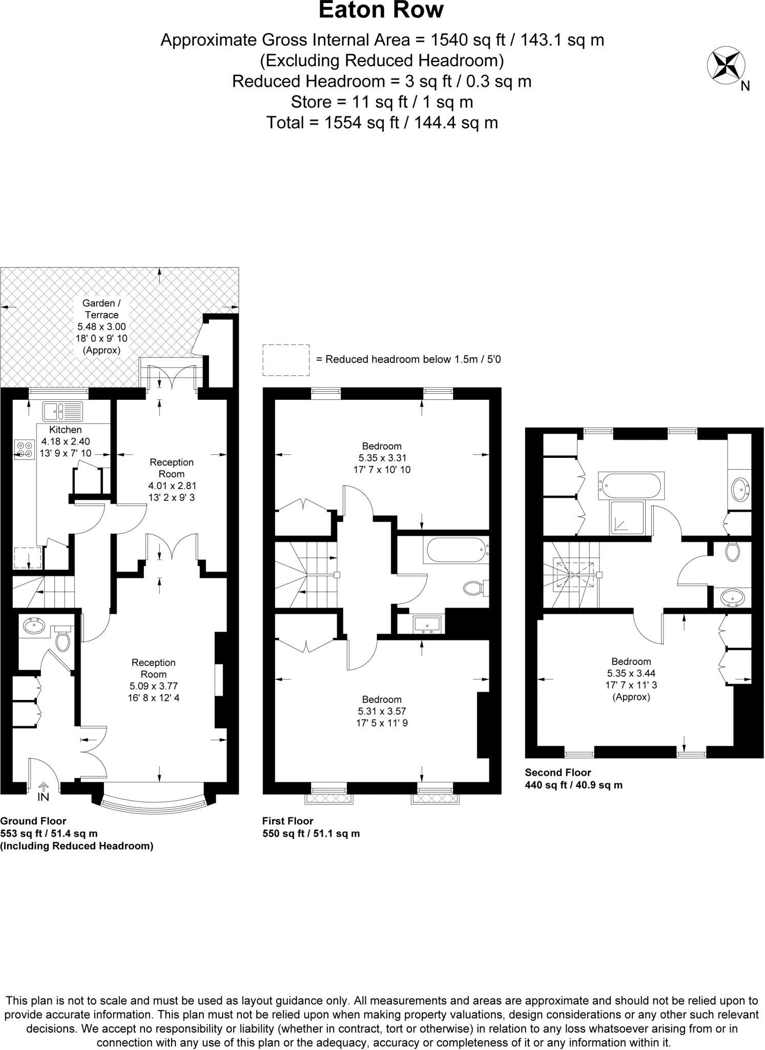
**Standout Features:**
- Charming Georgian-style mews house
- Freehold property with three floors
- 3 spacious bedrooms and 2 bathrooms
- Unique outdoor patio area
- Large plot size with off-street parking
- Prime location near Eaton Square
**Notable Concerns:**
- Requires renovation
- Crime rate above average
- Average broadband speeds
Discover the potential of this charming Georgian-style mews house located behind the prestigious Eaton Square. Offering a generous 1,554 square feet across three spacious floors, this freehold property features three bedrooms, a traditional living room with parquet flooring, and two bathrooms. The unique outdoor patio provides a cozy escape, making it perfect for Sunday brunch or quiet evenings.
Although the property is in need of renovation, it presents a wonderful opportunity for buyers to put their personal touch on a classic residence in a highly sought-after cosmopolitan area. Enjoy the rich array of local shops and restaurants just around the corner, along with excellent transport links from Victoria Station. With its generous space and long-term potential, this home is ideal for families or investors looking to capitalize on a lucrative location. Act fast—opportunities like this in such a desirable area don’t last long!
2 bedroom terraced house for sale in Eaton Row, London, SW1W — £1,950,000 • 2 bed • 2 bath • 1346 ft²
3 bedroom house for sale in Eaton Mews West, London, London, SW1W — £3,950,000 • 3 bed • 2 bath • 1452 ft²
5 bedroom terraced house for sale in Eaton Mews South, City Of Westminster, London, SW1W — £6,000,000 • 5 bed • 5 bath • 2500 ft²
3 bedroom mews property for sale in Eaton Mews West, London, SW1W — £3,950,000 • 3 bed • 2 bath • 1452 ft²
3 bedroom mews property for sale in Ebury Mews, Belgravia, London, SW1W — £3,250,000 • 3 bed • 2 bath • 1747 ft²
4 bedroom house for sale in Eaton Mews South, Belgravia, London, SW1W, United Kingdom, SW1W — £6,950,000 • 4 bed • 4 bath • 2174 ft²






















































































