Move-in ready family home with garden, parking and generous storage.
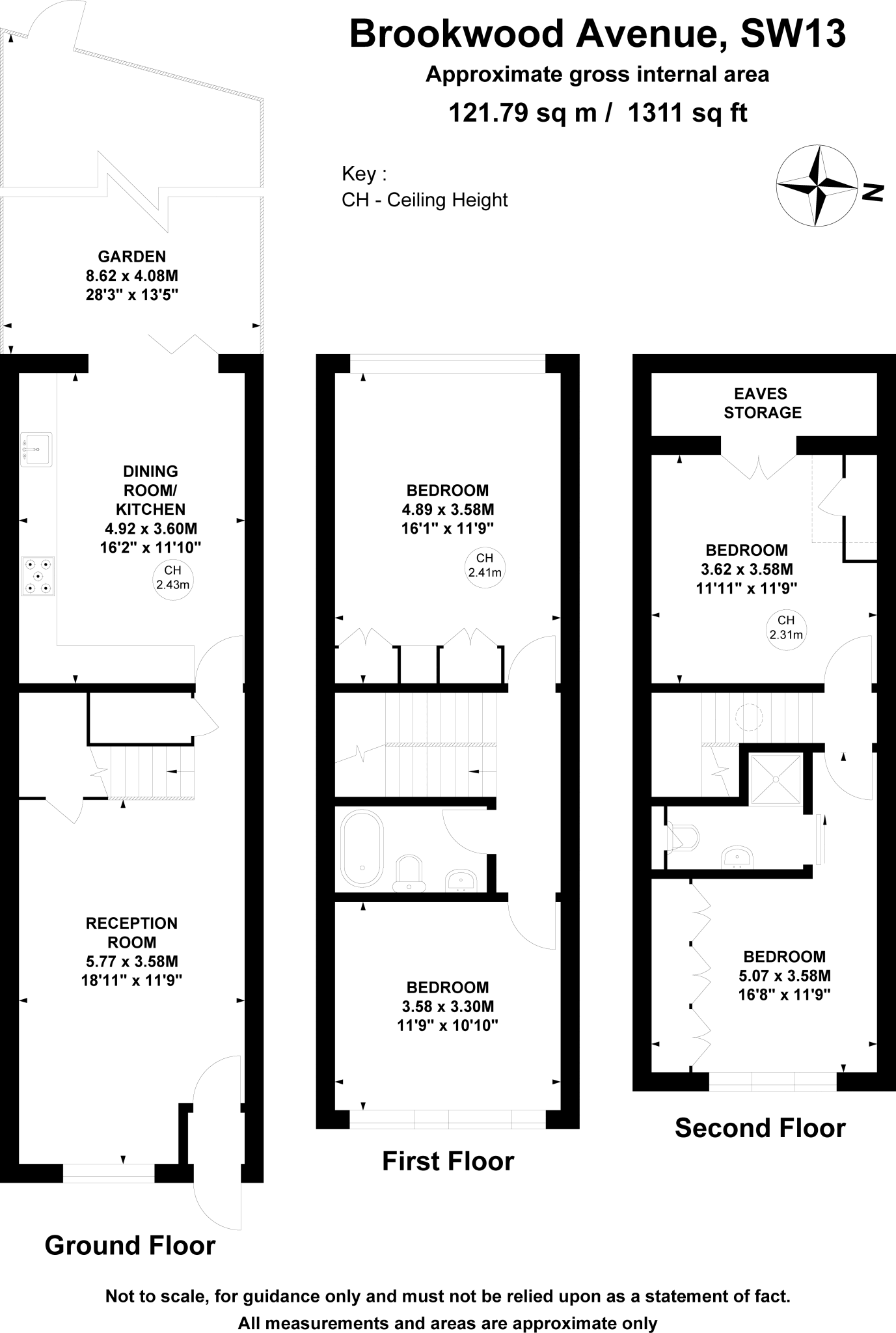
- Recently renovated four-bedroom townhouse, approx. 1,311 sq ft
- West-facing garden with bi-fold doors to dining area
- Off-street parking in quiet Barnes cul-de-sac
- Main bedroom with en-suite and air-conditioning
- Close to Barnes Primary School (Ofsted Outstanding, approx. 300m)
- EPC rating C; cavity walls assumed uninsulated
- Small plot size and built circa 1967–75
- Council tax band described as expensive
This recently renovated four-bedroom house sits on a quiet cul-de-sac in the heart of Barnes village, a short walk from Barnes Primary School. The ground floor offers a bright front reception and a contemporary open-plan kitchen/dining area with bi-fold doors that open onto a west-facing garden and access to well-kept communal grounds.
The top two floors provide flexible family accommodation: two double bedrooms on the first floor and two further bedrooms on the second, including a principal suite with full-width fitted wardrobes and an en-suite. Practical storage is well considered with under-stairs cupboards, useful eaves space and a generous loft. The main bedroom benefits from air-conditioning for summer comfort.
Key practical features include off-street parking, double glazing, gas central heating and an EPC rating of C. The house is freehold and extends to approximately 1,311 sq ft — a comfortable size for families wanting central Barnes living with good transport links nearby.
Notable points to consider: the plot is small and the building dates from the late 1960s/early 1970s, with cavity walls assumed uninsulated; buyers interested in further energy improvements should budget accordingly. Council tax is described as expensive. Overall this property will suit families seeking a move-in-ready home close to excellent schools and village amenities, with scope for further incremental upgrades if desired.
4 bedroom semi-detached house for sale in Westwood Road,
Barnes, SW13 — £2,000,000 • 4 bed • 3 bath • 1517 ft²
5 bedroom terraced house for sale in Brook Gardens, Barnes, London, SW13 — £2,950,000 • 5 bed • 3 bath • 2406 ft²
4 bedroom end of terrace house for sale in Emerald Square, London, SW15 — £1,300,000 • 4 bed • 3 bath • 1851 ft²
4 bedroom end of terrace house for sale in Howsman Road, Barnes, London, SW13 — £1,199,995 • 4 bed • 2 bath • 1593 ft²
5 bedroom town house for sale in Easterby Villas, Beverley Road, Barnes, London, SW13 — £4,000,000 • 5 bed • 5 bath • 3647 ft²
4 bedroom semi-detached house for sale in Cartwright Way, London, SW13 — £3,000,000 • 4 bed • 4 bath • 2885 ft²


















































