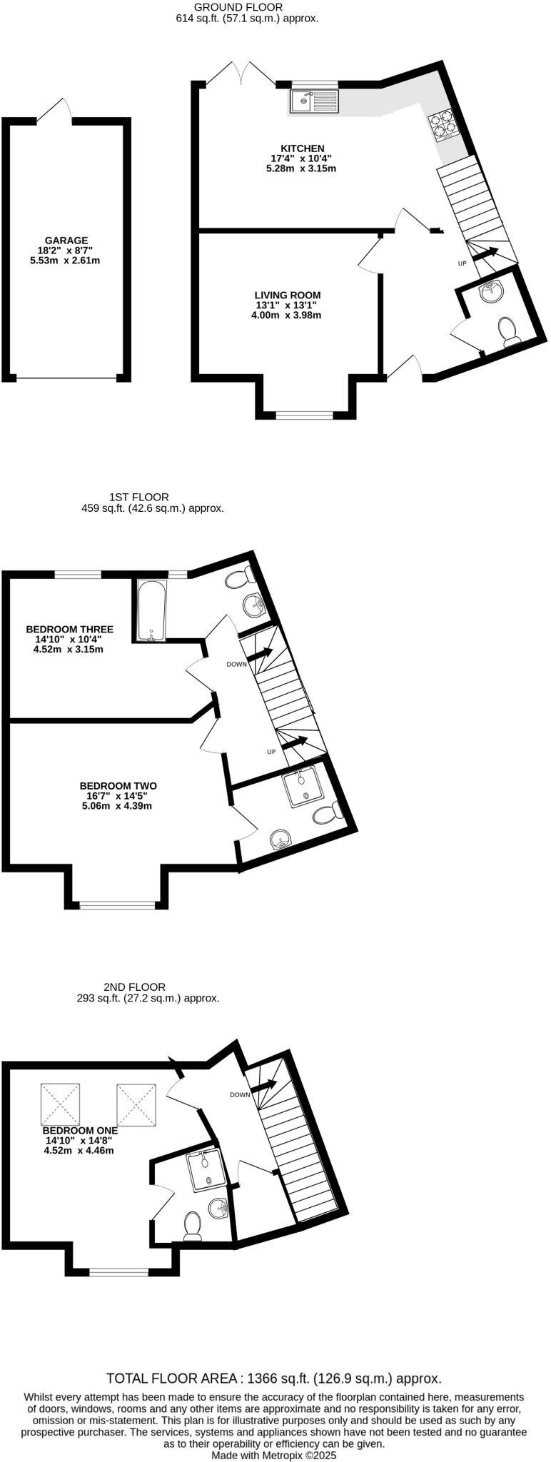
**Standout Features:**
- Spacious townhouses with three bedrooms and two ensuites
- Modern open-plan kitchen and living areas with ample natural light
- Off-street parking and a garage
- Front and rear gardens, ideal for outdoor activities
- Chain-free purchase simplifies the buying process
- EPC Rating Band C for energy efficiency
**Potential Downsides:**
- Above-average crime rate in the area
- Moderate council tax costs
Welcome to this stylish three-bedroom townhome located in the vibrant CB4 postcode, perfect for families and first-time buyers seeking comfort and convenience. Spread across 1,366 square feet, this property features two ensuites and a contemporary open-plan kitchen with integrated appliances, ideal for hosting and daily family meals. The spacious living room, filled with natural light, and private gardens—perfect for relaxation or outdoor entertaining—enhance the home's appeal.
With no upward chain, you can move in quickly and start enjoying modern living right away. The property also boasts valuable amenities within reach, including schools rated "Good" by Ofsted, parks, and leisure facilities, making it an excellent choice for young families. Plus, the potential for future renovations allows you to add personalization to your new home. Don’t miss out on this rare find!
3 bedroom terraced house for sale in Chieftain Way, Cambridge, CB4 — £425,000 • 3 bed • 3 bath • 1098 ft²
3 bedroom town house for sale in Ainsworth Place, Cambridge, CB1 — £500,000 • 3 bed • 2 bath • 1406 ft²
4 bedroom terraced house for sale in Lilywhite Drive, Cambridge, CB4 — £925,000 • 4 bed • 3 bath • 1653 ft²
3 bedroom end of terrace house for sale in Unwin Square, Cambridge, CB4 — £500,000 • 3 bed • 2 bath • 1004 ft²
4 bedroom house for sale in Shrewsbury Road, Cambridge, CB3 — £625,000 • 4 bed • 3 bath • 1201 ft²
3 bedroom town house for sale in Clara Rackham Street, Cambridge, CB1 — £750,000 • 3 bed • 2 bath • 1202 ft²






































































































