Affordable starter or investor project near schools and local amenities.
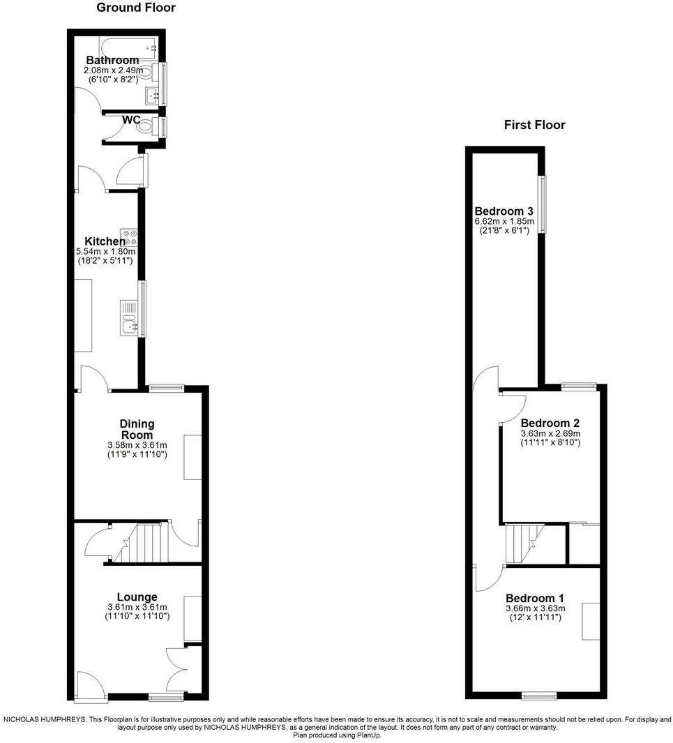
Three bedrooms and two reception rooms, practical family layout
Freehold tenure with mains gas central heating and boiler present
Patio-style small rear garden with outside storage shed
Solid brick walls likely uninsulated — energy upgrades recommended
Cosmetic wear and paint issues; refurbishment will increase value
Currently tenanted; vacant possession on completion (viewings by appointment)
On-street parking only; no off-street parking or garage
Located in a very deprived area; consider resale and rental market risks
This traditional Victorian mid-terrace offers three bedrooms, two reception rooms and a compact patio garden — a straightforward, affordable starter or buy-to-let opportunity in Burton on Trent. The property is freehold, benefits from mains gas central heating with a combination boiler, and has double glazing (install date unknown). At 824 sq ft it provides practical living space across two floors with simple room proportions suited to everyday family use or rental accommodation.
The house has genuine potential for improvement. Solid brick walls are likely uninsulated and interior areas show wear, paint issues and some maintenance needs; cosmetic and energy-efficiency upgrades will add value. On-street parking only and a small plot mean outside space is low-maintenance but limited. Council Tax Band A and low flood risk are practical positives for cost-conscious buyers.
Currently occupied by tenants who will leave, viewings are by appointment only. The surrounding area is classified as having young ethnic communities and is within a very deprived neighbourhood, which may influence resale timing and rental demand. Local schools include several rated Good and one Outstanding at secondary level.
Priced at £125,000, this mid-terrace suits first-time buyers willing to modernise, or investors seeking a low-entry purchase needing some refurbishment. Be prepared for renovation costs to improve insulation, decor and possibly services to achieve higher rents or resale value.
3 bedroom terraced house for sale in Lansdowne Terrace, Burton Upon Trent, DE14 — £120,000 • 3 bed • 1 bath • 641 ft²
3 bedroom terraced house for sale in Stafford Street, Burton-On-Trent, DE14 — £155,000 • 3 bed • 1 bath • 1235 ft²
3 bedroom house for sale in All Saints Road, Burton-On-Trent, DE14 — £120,000 • 3 bed • 1 bath • 1621 ft²
2 bedroom terraced house for sale in Napier Street, Burton-On-Trent, DE14 — £102,500 • 2 bed • 1 bath • 559 ft²
3 bedroom terraced house for sale in Derby Street, Burton-on-Trent, DE14 — £160,000 • 3 bed • 1 bath
3 bedroom terraced house for sale in Shobnall Street, Burton-On-Trent, DE14 — £160,000 • 3 bed • 2 bath • 1346 ft²














































