Spacious four-bedroom Bramerton house with large garden and annex potential in a sought-after village..
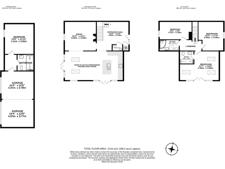
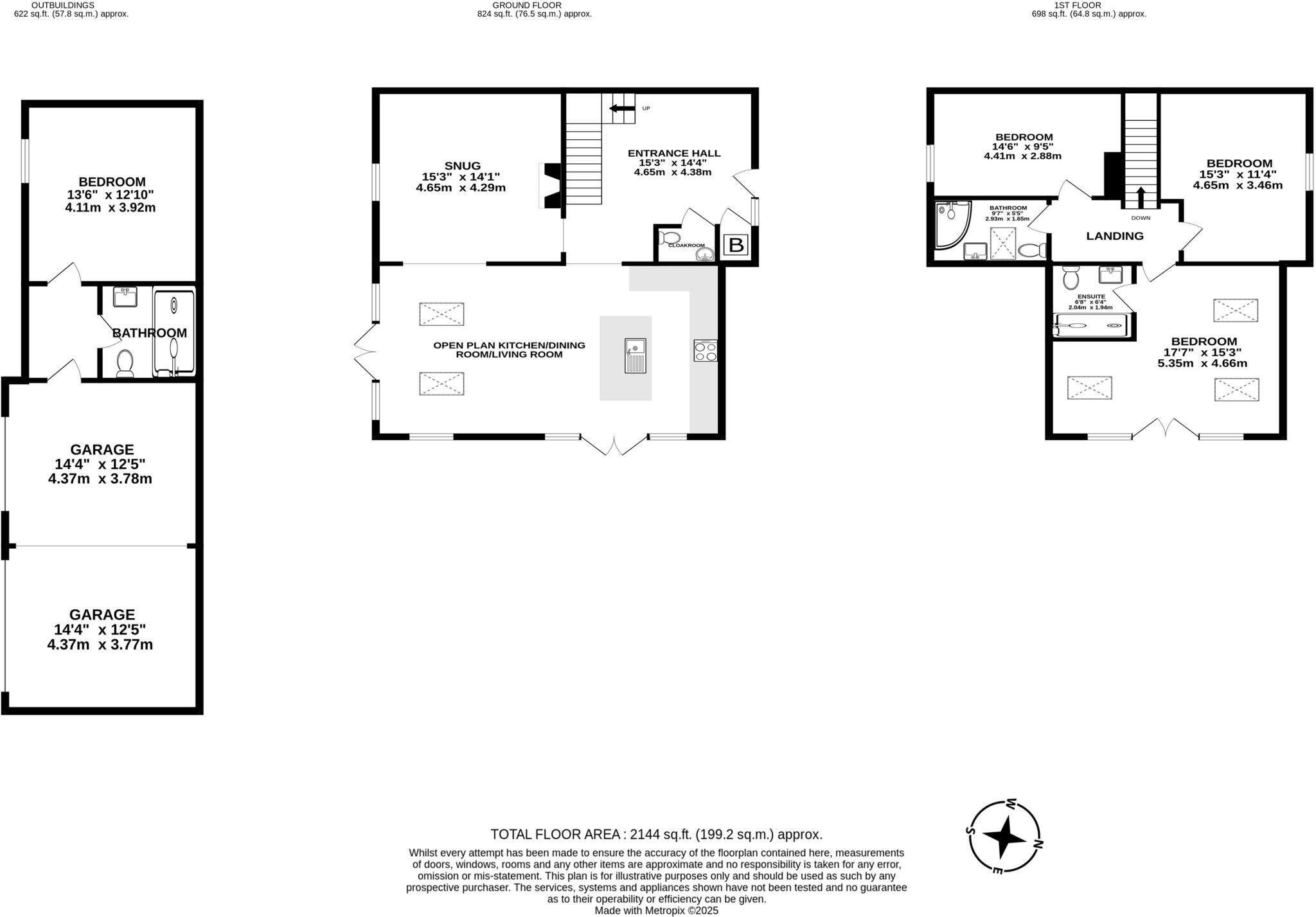
Four double bedrooms, principal with en suite and Juliet balcony
Extensive open-plan kitchen-diner-living with vaulted ceilings and Velux windows
Underfloor heating on ground floor; air source heat pump installed
Planning permission granted for cart lodge; potential for self-sufficient annex
Large landscaped garden, quality patio and double garage
Main heating currently oil boiler and radiators — not community heating
Solid brick construction (no obvious cavity insulation assumed)
Slow broadband speeds; average mobile signal
This beautifully renovated four-bedroom detached house sits in Bramerton’s sought-after village, combining modern comfort with period charm. The ground floor benefits from underfloor heating and an expansive open-plan kitchen-diner-living with vaulted ceilings and Velux windows — a bright, social heart for family life and entertaining.
The principal bedroom includes an en suite and Juliet balcony overlooking the landscaped garden. The property also offers a self-contained bedroom (useful for a teenager or relative), a double garage, and planning permission for a cart lodge with scope to create a fully self-sufficient annex — strong potential for extended family use or additional income.
Practical details: the home is largely newly renovated and fitted with an air source heat pump, yet the main heating system uses an oil-fired boiler and radiators. The house is built of solid brick (insulation assumed absent), and broadband speeds are slow — factors to consider if you need ultra-efficient heating or high-speed internet immediately.
Set on a large plot with a high-quality patio and mature gardens, the location delivers very low crime, pleasant countryside living and easy access to good local schools. Flood risk is nil and tenure is freehold, making this a compelling family home for those seeking village life with further development potential.
2 bedroom terraced house for sale in Church Farm Close, Bramerton, Norwich, NR14 — £250,000 • 2 bed • 1 bath • 753 ft²
4 bedroom detached house for sale in The Street, Bramerton, Norwich, NR14 — £675,000 • 4 bed • 3 bath • 2400 ft²
4 bedroom detached house for sale in Glebe Close, Wreningham, Norwich, Norfolk, NR16 — £600,000 • 4 bed • 3 bath • 2148 ft²
5 bedroom detached house for sale in A Non-Estate New Home in Bramerton, NR14 — £925,000 • 5 bed • 3 bath • 2446 ft²
4 bedroom chalet for sale in The Turnpike, Bunwell, Norwich, NR16 — £675,000 • 4 bed • 2 bath • 2000 ft²
5 bedroom detached house for sale in Swardeston Lane, East Carleton, NR14 — £950,000 • 5 bed • 5 bath • 2965 ft²














































































































