Three serviced plots with plot passports in a peaceful South Beds village.
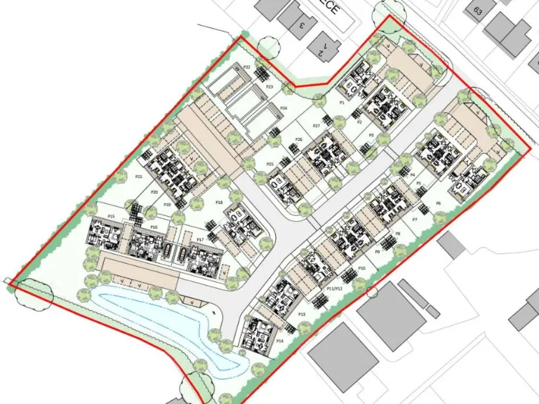
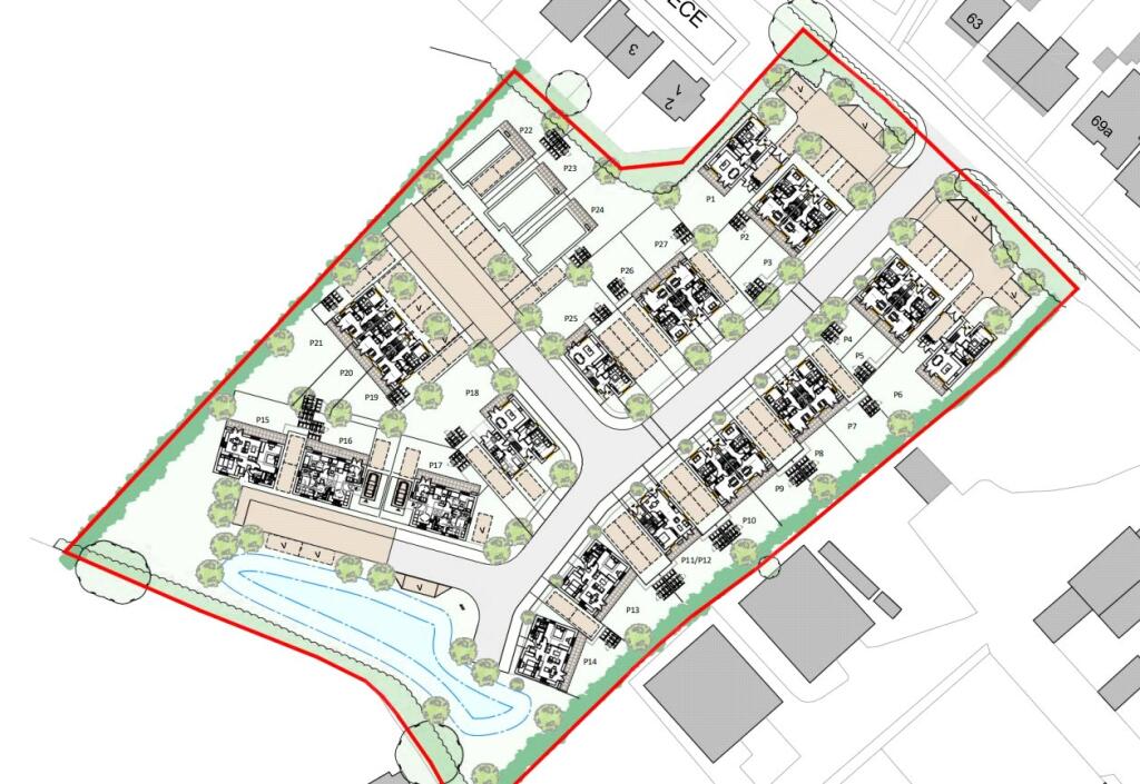
Choice of three self-build plots within new village development
Three self-build plots sit within a newly approved village development in Haynes, offering a rare chance to design a bespoke home in a tranquil South Bedfordshire setting. Plot passports and design codes are provided to guide architects, helping new houses sit sympathetically within the development while allowing design freedom.
Basic site services (water, electric, drainage) will be provided to the site boundary; self-builders are responsible for on-plot connections and detailed technical submissions. The principle of development has been approved (application CB/22/02399/REG3), but each purchaser must obtain full planning and building control approval for their specific design.
Practical considerations include slow broadband in the village and an as-yet-undetermined annual service charge payable to a management company. Prices quoted: Plot 22 (larger) at £190,000, Plots 22 and 23 (smaller) at £188,333 each, or all three for £566,666. The location benefits from excellent mobile signal, very low crime, nearby primary and secondary schools, village amenities and good road links for commuting.
Land for sale in Manor Way, Cotton End , Bedford, Bedfordshire, MK45 — £325,000 • 4 bed • 2 bath
Land for sale in Manor Way, Cotton End, Bedfordshire, MK45 3AH, MK45 — £325,000 • 1 bed • 1 bath
Detached house for sale in Manor Way, Cotton End, Bedfordshire, MK45 3AH, MK45 — £325,000 • 1 bed • 1 bath
Land for sale in Manor Way, Cotton End, Bedfordshire, MK45 3AH, MK45 — £360,000 • 1 bed • 1 bath
Land for sale in The Paddocks, Cotton End, MK45 3AH, MK45 — £325,000 • 1 bed • 1 bath • 2500 ft²
Detached house for sale in Manor Way, Cotton End, Bedfordshire, MK45 3AH, MK45 — £340,000 • 1 bed • 1 bath






































































