Generous period living close to top schools and riverside amenities.
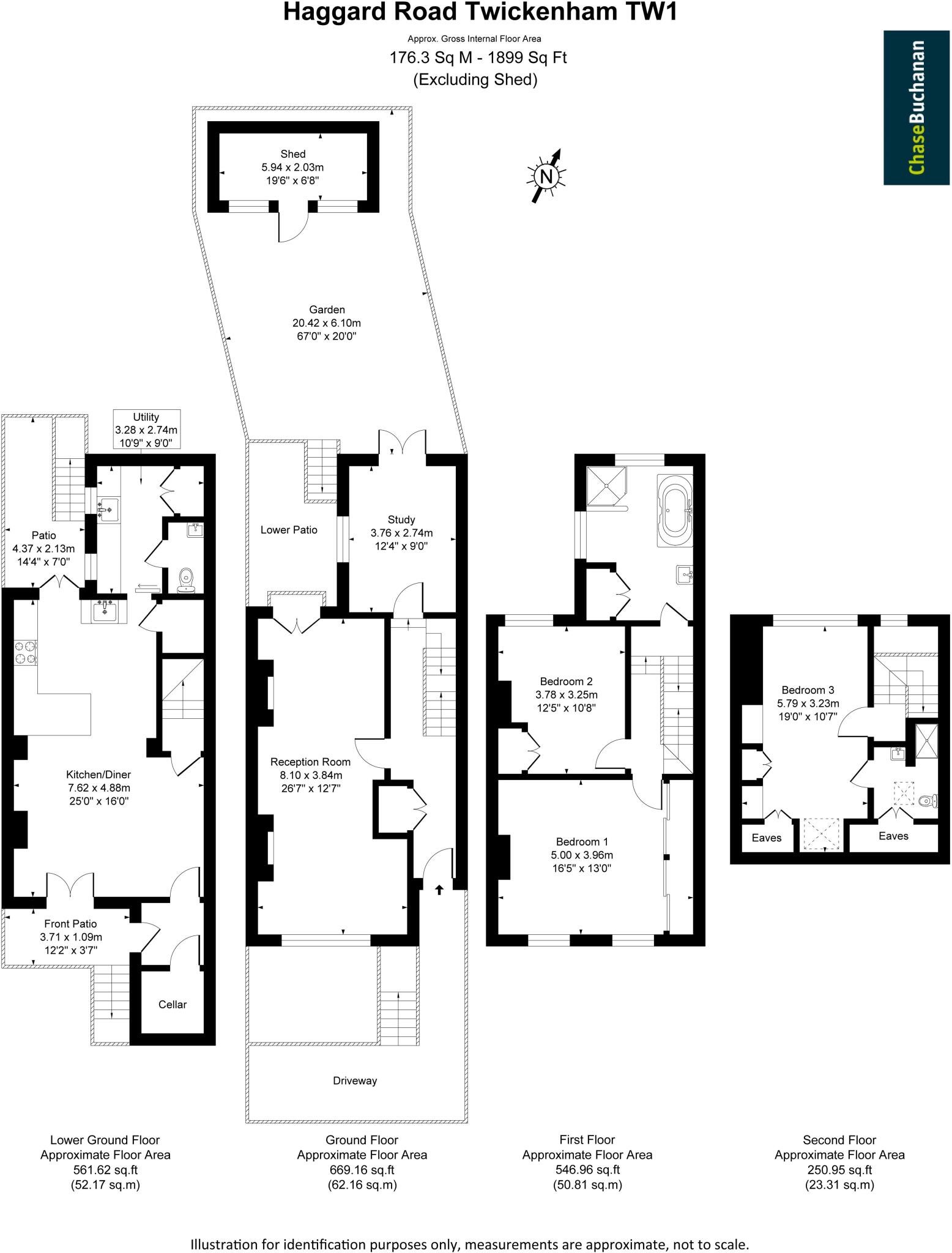
Almost 1,900 sq ft over four levels, generous family accommodation
Lower-ground kitchen/dining, utility room, WC and cellar
Three double bedrooms with luxury bathroom and en‑suite shower
Attractive rear garden with mature planting and two patio areas
Small paved forecourt with off-street parking for one vehicle
Solid brick walls likely without cavity insulation (energy upgrade needed)
Double glazing installed before 2002; may require future replacement
Council tax banding described as expensive
An immaculately presented Victorian mid-terrace arranged over lower ground, ground, first and second floors, this substantial family home offers nearly 1,900 sq ft of flexible living. The lower-ground kitchen/dining layout, useful utility and cellar create a practical hub, while an elegant double-aspect reception and separate study suit family life and home working. The property’s three double bedrooms, luxury bathroom and en-suite deliver comfortable sleeping accommodation for growing families.
Externally the house benefits from a well-kept rear garden with mature planting and two patio areas, plus a small paved forecourt providing off-street parking for one car. The location is a strong asset: close to highly regarded schools (including two Ofsted Outstanding), easy walking access to Twickenham centre, riverside walks and regular rail services into London.
Buyers should note some practical points: the property is a traditional solid-brick Victorian build with assumed no cavity wall insulation, and the double glazing dates from before 2002. The plot is small and front garden space is limited. Council tax is described as expensive. These are common features of period houses and may influence running costs or trigger further improvement work for buyers seeking modern efficiency.
Overall, this is a spacious, characterful family home in a very affluent, low-crime neighbourhood with excellent transport and school links. It will suit a family wanting generous, well-presented period accommodation with scope to personalise energy-efficiency and storage upgrades where desired.
3 bedroom terraced house for sale in Heathfield North, Twickenham, TW2 — £950,000 • 3 bed • 2 bath • 1433 ft²
3 bedroom terraced house for sale in Heathfield North, Twickenham, TW2 — £900,000 • 3 bed • 1 bath • 1149 ft²
3 bedroom terraced house for sale in Heathfield North, Twickenham, TW2 — £1,200,000 • 3 bed • 2 bath • 1046 ft²
4 bedroom semi-detached house for sale in Baronsfield Road, Twickenham, Richmond, TW1 — £2,350,000 • 4 bed • 3 bath • 2186 ft²
5 bedroom end of terrace house for sale in Third Cross Road, Twickenham, TW2 — £1,150,000 • 5 bed • 2 bath • 1562 ft²
3 bedroom house for sale in Staten Gardens, Twickenham, TW1 — £849,950 • 3 bed • 2 bath • 957 ft²


























































































