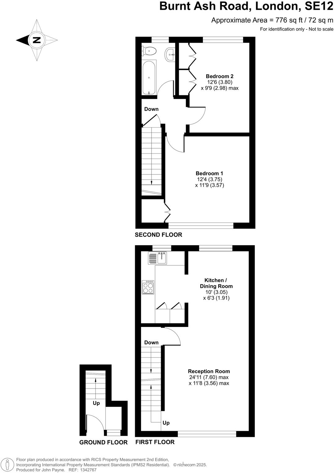
**Standout Features:**
- Two spacious double bedrooms with built-in storage
- Bright open-plan living and dining area with contemporary kitchen
- Excellent transport links via Lee railway station and the new SL4 Superloop service
- Proximity to local amenities, parks, and sports facilities
- Share of Freehold with 975 years remaining on the lease
- Affordable Council Tax Band C
**Potential Downsides:**
- Primarily street-facing outlook, limited exceptional views
- No private garden space
- Average-sized property may not suit those seeking expansive living
Discover your ideal home in this charming split-level maisonette located in a desirable, vibrant community. Spanning about 776 sq ft, this residence boasts a bright, open living space perfect for entertaining, complemented by a fully fitted contemporary kitchen. The upper level features two generous double bedrooms, ideal for small families or professionals seeking ample storage and comfort.
Situated just moments from Lee railway station and multiple bus routes, commuting into London is a breeze, making this property perfect for first-time buyers or investors looking for rental potential. Enjoy the surrounding green spaces of Cator Park and Sutcliffe Park, as well as a plethora of local cafes, supermarkets, and schools. While the communal area lacks a private garden and the outlook is standard, the allure of this modern, well-maintained home far outweighs such minor drawbacks. Internal viewings are essential—opportunities like this don’t last long!



















































