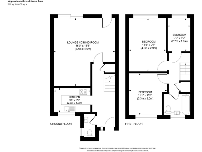
Three bedrooms, efficient two-storey layout
Set in a quiet cul-de-sac in popular Northlands Wood, this three-bedroom semi offers practical family living within easy reach of good primary schools and the Princess Royal Hospital. The L-shaped lounge/diner opens onto an established rear garden that includes a newly built timber studio with air conditioning — ideal for a home office or creative space. A block garage (separately located) and a driveway for two to three cars add useful parking in a pleasant suburban setting.
Internally the house is efficiently laid out over two floors, totalling about 862 sq ft. Accommodation includes an entrance hall with cloakroom, modest kitchen with built-in oven, three bedrooms and a modern white bathroom suite. The property is freehold, benefitted from a new boiler in 2023 and holds an EPC rating of C, offering reasonable running costs in this very low-crime, well-served area with fast broadband and excellent mobile signal.
Buyers should note the home is small-to-average in overall size and sits on a modest plot, so indoor space and garden are limited compared with larger family homes. The single family bathroom and a compact kitchen may prompt buyers to modernise or reconfigure to suit growing-family needs. The garage is in a nearby block (white door, south) rather than attached, which is practical but not directly accessible from the house.
This property will suit families seeking a low-maintenance, well-located home close to schools and amenities, or investors looking for a straightforward suburban three-bed with rental appeal. The garden studio and recent boiler are immediate lifestyle and cost benefits, while the modest footprint and simple kitchen offer scope for value-adding improvements.











































































































