Spacious commercial building with garden and clear redevelopment potential.
Freehold former sports bar close to Gillingham high street
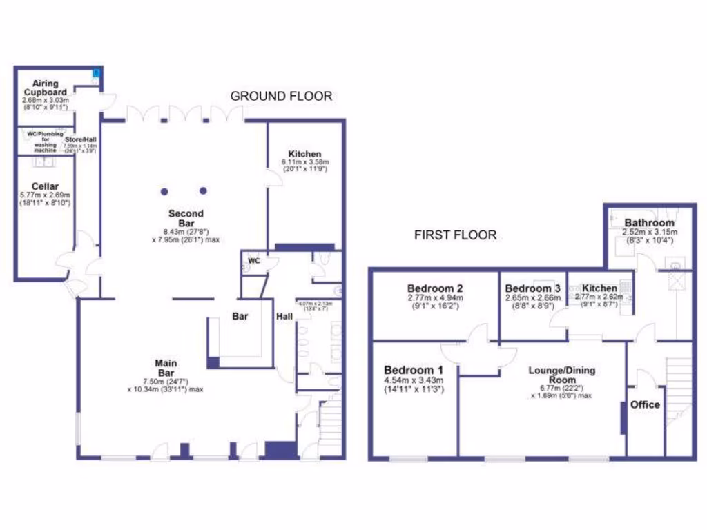
An unusually large freehold former sports bar positioned just off Gillingham high street, offered with substantial internal space and a rear garden with deck. The building’s traditional stone facade and exposed beams give character, while upstairs accommodation provides flexible living or letting options. The property is offered for sale at £380,000 and presents clear scope for conversion or redevelopment, subject to necessary planning permission.
Practical positives include mains services, excellent mobile signal and fast broadband, a cellar for storage, and a compact rear garden suitable for outdoor seating or amenity space. The layout already combines public commercial areas with substantial first-floor rooms and separate service spaces, easing change of use or reconfiguration works.
Buyers should note material concerns plainly. The area records very high crime levels, the plot is small relative to the building footprint, and some external maintenance issues are reported (possible damp and roof attention). All services and fittings are stated as untested; any change of use or redevelopment will require planning and local authority checks. These factors affect timing, insurance and running costs.
This opportunity suits investors, developers or an operator seeking a town-centre site with redevelopment potential. It offers an immediate trading layout or a blank canvas for residential conversion, but prudent purchasers should factor in remedial works, security considerations and planning costs before committing.
High street retail property for sale in Land at Station Road, Station Road, Gillingham, SP8 4QA, SP8 — £1,000,000 • 1 bed • 1 bath
Pub for sale in East Stour, Gillingham, SP8 — £595,000 • 1 bed • 1 bath • 3370 ft²
2 bedroom flat for sale in St Ann's Court, Gillingham, SP8 — £145,000 • 2 bed • 1 bath • 657 ft²
1 bedroom apartment for sale in Queen Street, Gillingham, SP8 — £170,000 • 1 bed • 1 bath • 364 ft²
Shop for sale in The Square, Gillingham, Dorset, SP8 — £325,000 • 1 bed • 1 bath
Commercial property for sale in Bracher House, Newbury, Gillingham, SP8 — £200,000 • 1 bed • 1 bath • 1260 ft²


















