Large south-facing garden and approved extension plans for more space.
Detached Victorian house with private driveway
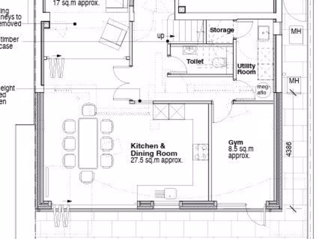
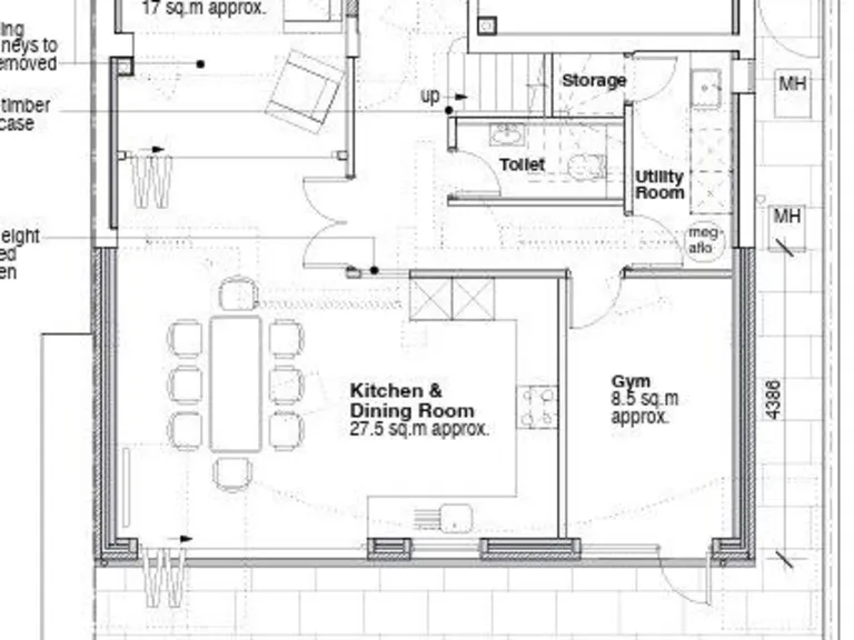
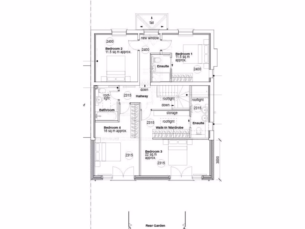
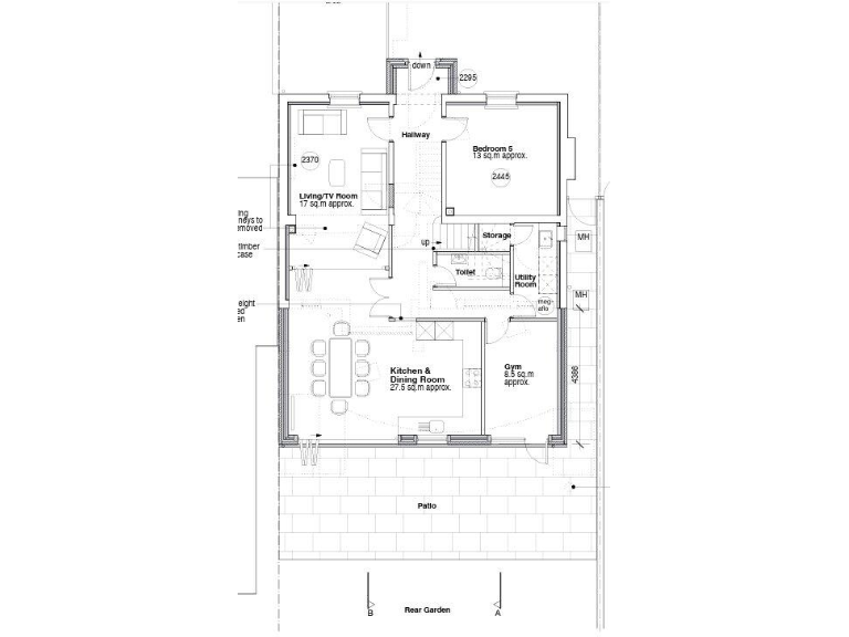
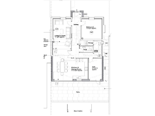
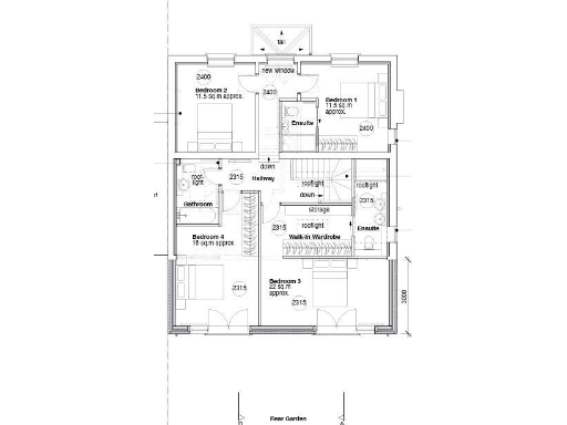
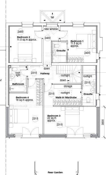
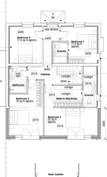
An unusually large detached Victorian house in East Finchley, offered chain-free and ripe for a full refurbishment. The current 1,300 sqft layout provides three bedrooms, multiple reception rooms and a driveway, while an exceptionally long south-facing garden of over 100 ft gives scope for significant extension and landscaping.
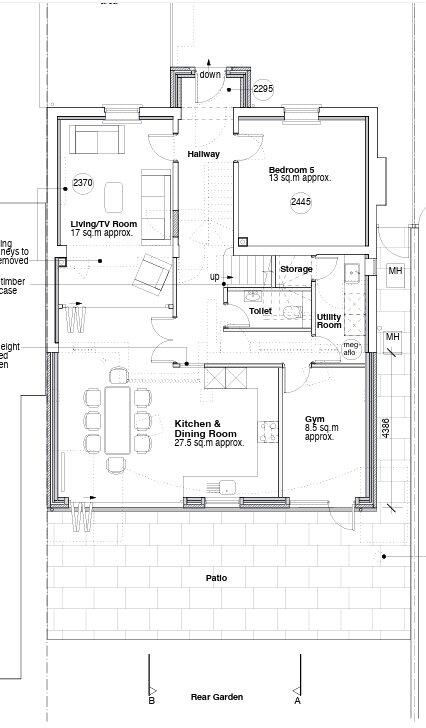
Barnet Council has approved double-storey rear extension (application 25/0259/HSE) to convert the property into a four-bedroom home exceeding 2,000 sqft — a clear value route for families or developers seeking more space. The plot and orientation allow for bright rear living spaces and substantial garden amenity uncommon for this location.
The house requires comprehensive modernization: cosmetic works, services updating, and likely insulation improvements to solid brick walls. EPC rating E and Council Tax Band E reflect the current condition. Buyers should budget for full refurbishment, but the planning permission, freehold tenure and chain-free status reduce transactional friction and increase redevelopment clarity.
This will suit a family wanting a bespoke long-term home close to strong local schools and amenities, or an investor/developer looking to add considerable floor area and uplift value in a very affluent, well-connected neighbourhood.
3 bedroom end of terrace house for sale in Lincoln Road, London, N2 — £1,200,000 • 3 bed • 1 bath • 1447 ft²
4 bedroom house for sale in Aylmer Road, East Finchley, N2 — £1,450,000 • 4 bed • 1 bath • 1908 ft²
5 bedroom semi-detached house for sale in Granville Road, London, N12 — £1,150,000 • 5 bed • 2 bath • 2500 ft²
4 bedroom detached house for sale in North Crescent, London, N3 — £1,250,000 • 4 bed • 1 bath • 1782 ft²
4 bedroom semi-detached house for sale in Grove Avenue, Finchley, London, N3 — £1,250,000 • 4 bed • 2 bath • 1817 ft²
3 bedroom house for sale in Squires Lane, Finchley, London, N3 — £575,000 • 3 bed • 1 bath • 1109 ft²














































































