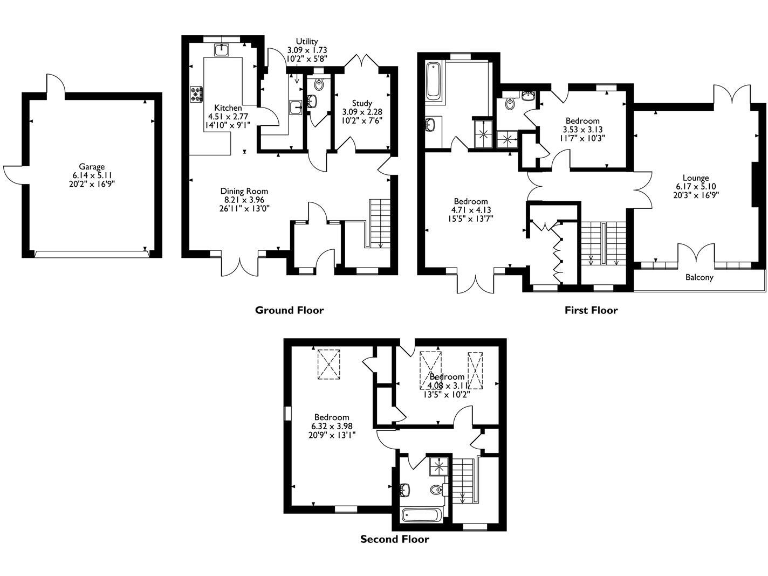
**Standout Features:**
- Four spacious double bedrooms, including two ensuites
- Generous open-plan living kitchen and formal reception room
- Beautifully landscaped rear garden with multiple seating areas
- Integral double garage and ample off-road parking
- Scenic countryside views and proximity to Uppingham town center
- EPC Rating: C
- Freehold tenure, chain-free status
**Property Summary:**
Discover this immaculate four-bedroom detached house in the captivating Campden Close, Uppingham. Offering expansive living with a large open-plan kitchen, ideal for hosting, alongside a separate study and utility room, this home is perfectly designed for modern family life. Enjoy breath-taking countryside views from both the expansive first-floor balcony and the mature rear garden, where beautifully landscaped tiers provide serene relaxation spaces.
The first floor features an inviting living room with dual French doors, while the master suite boasts a walk-in wardrobe and luxurious ensuite. With two additional double bedrooms and a family bathroom on the upper floor, this property provides ample space for families or entertaining guests.
Set within a quiet cul-de-sac and close to excellent schools, shopping, and outdoor amenities, it offers the charm of rural living paired with accessible town conveniences. Don't miss this unique opportunity to own a beautifully presented home in a desirable location, where comfort and style await.
3 bedroom town house for sale in Scott Close, Uppingham, LE15 — £449,950 • 3 bed • 2 bath • 1450 ft²
5 bedroom detached house for sale in Leicester Road, Uppingham, Rutland, LE15 — £900,000 • 5 bed • 4 bath • 2886 ft²
4 bedroom detached house for sale in Seaton Road, Uppingham, LE15 — £970,000 • 4 bed • 2 bath • 5251 ft²
3 bedroom detached house for sale in Southwell Way, Uppingham, Rutland, LE15 — £375,000 • 3 bed • 2 bath • 1142 ft²
4 bedroom detached house for sale in Lime Tree Avenue, Uppingham, Rutland, LE15 — £450,000 • 4 bed • 2 bath • 1529 ft²
4 bedroom detached house for sale in Rees Close, Uppingham, Rutland, LE15 — £375,000 • 4 bed • 2 bath • 1249 ft²






















































