Spacious four-bedroom riverside apartment with first-rate amenities and secure parking.
Panoramic River Thames and landscaped garden views
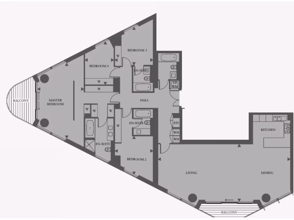
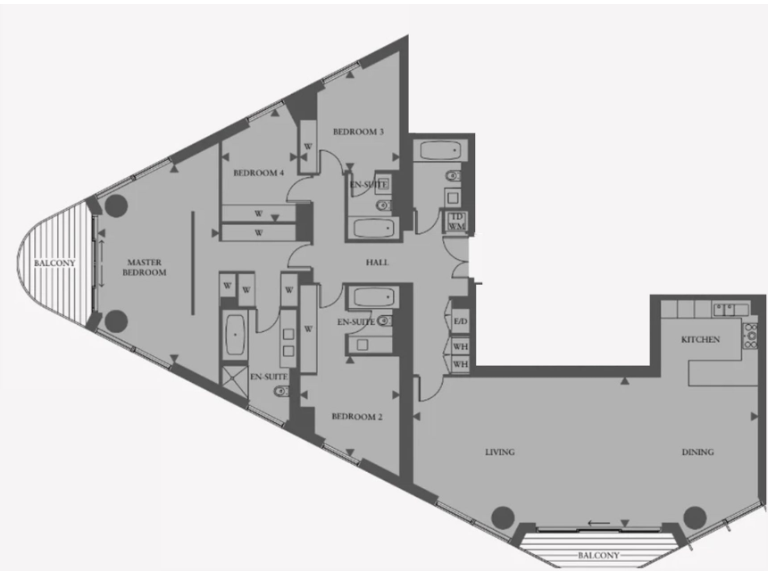
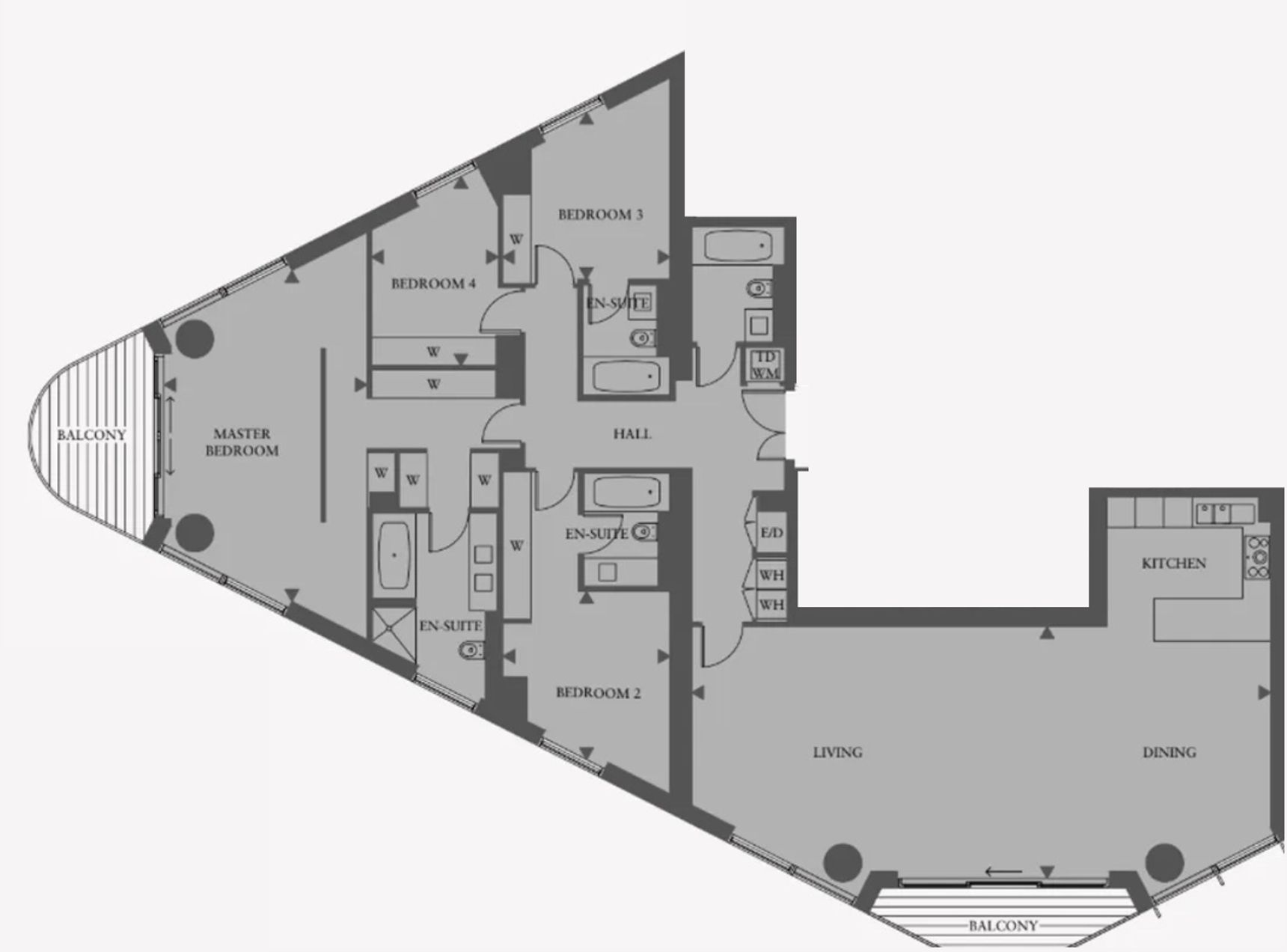
Set on the Chelsea Waterfront with uninterrupted River Thames and landscaped garden views, this generous four-bedroom apartment offers high-spec, contemporary living across approximately 2,166–2,185 sq ft. Floor-to-ceiling windows and high ceilings flood the open-plan living spaces with light, while a private balcony provides a peaceful riverside outlook. Built-in comfort features include underfloor heating and comfort cooling, joined by bespoke kitchen appliances and quality finishes throughout.
Residents benefit from fully appointed, on-site amenities: a 24-hour concierge, a health and wellness club with a 20m pool, sauna, steam room and hydrotherapy spa, a private residents’ lounge, and secure underground parking with electric car charging. The location is well connected — Imperial Wharf station and Chelsea Harbour Pier are short walks away — and local schools and low-crime, high-education demographics support long-term desirability.
This is a strong choice for a family seeking roomy, secure riverside living or an investor targeting prime SW10 capital growth. The apartment’s size, specification and riverside position are standout value drivers. Prospective buyers should note the property is leasehold; confirm specific lease terms, service charges and running costs during due diligence. Overall flood risk is very low and the area offers excellent digital connectivity and transport links.
4 bedroom flat for sale in 1 Waterfront Drive, London, SW10 — £4,700,000 • 4 bed • 4 bath • 2237 ft²
4 bedroom apartment for sale in Chelsea Waterfront, Tower West, One Waterfront Drive, London, SW10 — £4,853,000 • 4 bed • 4 bath • 2166 ft²
4 bedroom apartment for sale in Chelsea Waterfront, London, SW10 — £6,195,000 • 4 bed • 4 bath • 2237 ft²
4 bedroom apartment for sale in Waterfront Drive, London, SW10 — £6,250,000 • 4 bed • 4 bath • 2299 ft²
4 bedroom apartment for sale in Chelsea Waterfront, London, SW10 — £5,332,000 • 4 bed • 4 bath • 2166 ft²
4 bedroom flat for sale in Chelsea Waterfront, Waterfront Drive, London, SW10., SW10 — £5,888,000 • 4 bed • 4 bath • 2327 ft²










































